Pesquisar perto de mim
A aguardar a sua pesquisa
Voltar
Terreno com Projeto Aprovado para a Construção de Duas Moradias – Moreira de Cónegos, Guimarães
Terreno com Projeto Aprovado para a Construção de Duas Moradias – Moreira de Cónegos, Guimarães
Terreno com Projeto Aprovado para a Construção de Duas Moradias – Moreira de Cónegos, Guimarães
Terreno com Projeto Aprovado para a Construção de Duas Moradias – Moreira de Cónegos, Guimarães
Ver galeria (9)
Ver galeria (9)
Seguir
Partilhar

Terreno com Projeto Aprovado para a Construção de Duas Moradias – Moreira de Cónegos, Guimarães

Braga, Guimarães, Moreira de Cónegos Ver no mapa
150 000 €
0 Quartos
0 WC's
Certificação Energética: N/D

Descrição do anúncio

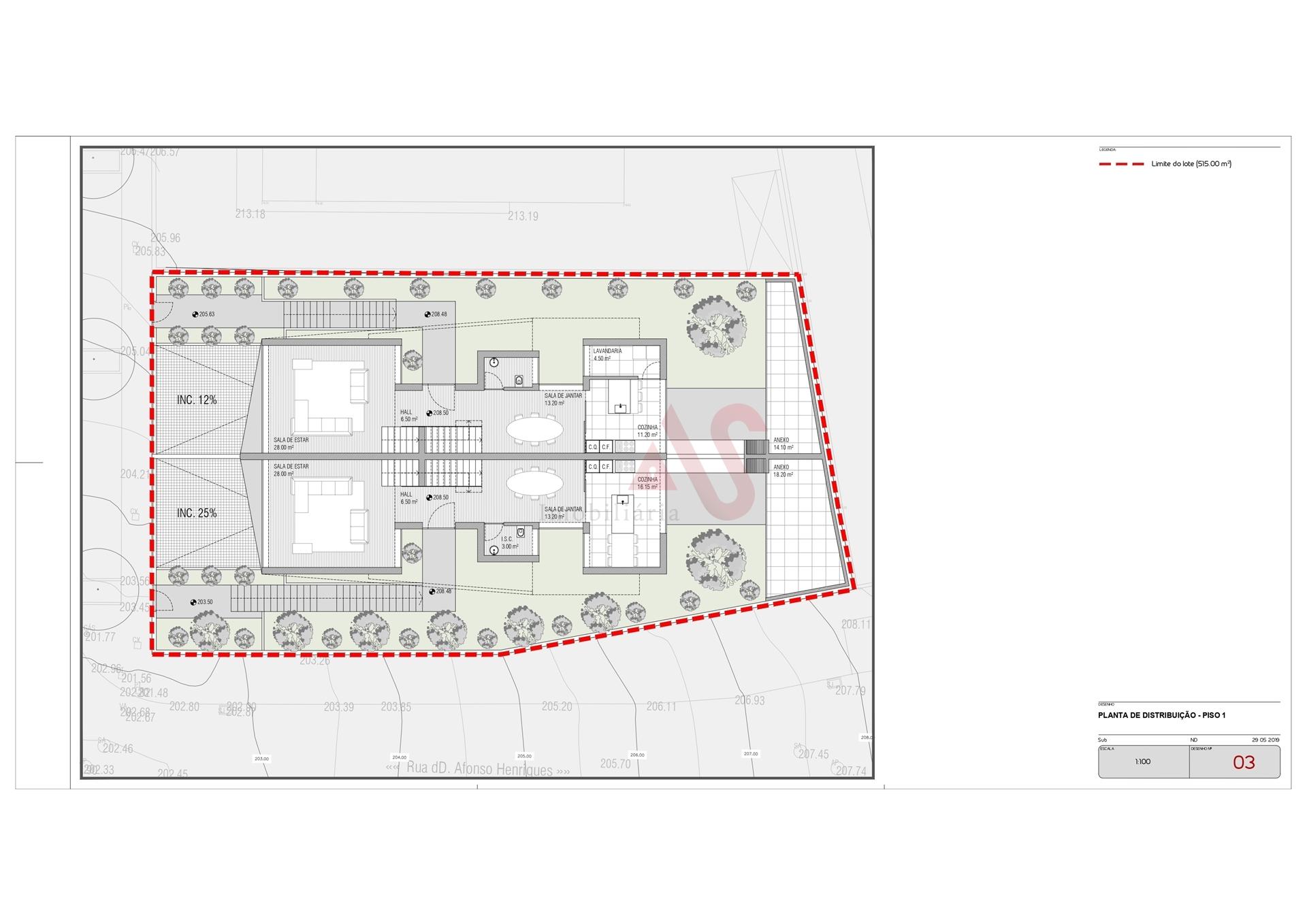
Terreno com Projeto Aprovado para a Construção de Duas Moradias – Moreira de Cónegos, Guimarães.

Este terreno com 515 m², localizado em Moreira de Cónegos, tem um projeto aprovado para a construção de duas moradias. É uma excelente oportunidade para quem deseja construir numa zona tranquila e bem localizada.

Localiza-se:
- em zona habitacional calma.
- a 5 minutos do centro da cidade de Vizela;
- a 15 min. de Guimarães;
- a 31 min. através da A3 e A7 (45,9km) do Aeroporto Francisco Sá Carneiro.

Referência: ASG26062

Por sermos intermediários de crédito devidamente autorizados pelo Banco de Portugal (Reg. 2736) fazemos a gestão de todo o seu processo de financiamento, sempre com as melhores soluções de mercado.

Porquê escolher a AS Imobiliária?
Com mais de 18 anos no ramo imobiliário e milhares de famílias felizes, dispomos de 10 agências estrategicamente localizadas, para o servir com proximidade, corresponder à suas expectativas e ajudá-lo a adquirir a sua casa de sonho. Compromisso, Competência e Confiança são os nossos valores que entregamos aos nossos Clientes na hora de comprar, arrendar ou vender o seu imóvel.

A nossa prioridade é a sua Felicidade!

Na AS Imobiliária somos apaixonados por vender casas!

Especialistas imobiliários em Vizela ; Guimarães ; Felgueiras ; Lousada ; Santo Tirso ; Porto ; Braga ; Trofa; Lisboa ; Fafe

Características Gerais

  • Acesso com Estrada
  • Terreno Urbano

Galeria do imóvel

Terreno com Projeto Aprovado para a Construção de Duas Moradias – Moreira de Cónegos, Guimarães
Terreno com Projeto Aprovado para a Construção de Duas Moradias – Moreira de Cónegos, Guimarães
Terreno com Projeto Aprovado para a Construção de Duas Moradias – Moreira de Cónegos, Guimarães
Terreno com Projeto Aprovado para a Construção de Duas Moradias – Moreira de Cónegos, Guimarães
Terreno com Projeto Aprovado para a Construção de Duas Moradias – Moreira de Cónegos, Guimarães
Terreno com Projeto Aprovado para a Construção de Duas Moradias – Moreira de Cónegos, Guimarães

Localização do imóvel

Braga, Guimarães, Moreira de Cónegos

Referência do anúncio: ASG26062. Última atualização: 05 março 2026.

Relatório de preços praticados nos últimos 8 meses

Braga, Guimarães, Moreira de Cónegos

Simule um Crédito Habitação

Os dados apresentados são meramente indicativos. Condições gerais
Seguir
Partilhar
AS Imobiliária
AMI 13249
253 ...
Chamada para a rede fixa nacional
Mostrar número
Nome
Email
Contacto
Formato inválido
Agende uma visita
Referência do anúncio: ASG26062.
Última atualização: 05 março 2026.
Contactar
Veja também
Anúncios na mesma zona
Lote de terreno 5000m² - Calendário
Braga, Vila Nova de Famalicão, Vila Nova de Famalicão e Calendário
560 000 €
Terreno a 3 km do Centro de Fafe com Vinha e Nascente em Golães- Fafe!
Braga, Fafe, Golães
51 500 €
Terreno Rústico Venda em Esperança e Brunhais,Póvoa de Lanhoso
Braga, Póvoa de Lanhoso, Esperança e Brunhais
45 700 €
Terreno em vilar de veiga – junto ao parque nacional da peneda-gerês
Braga, Terras de Bouro, Vilar da Veiga
350 000 €
Terreno Rústico com 7.900 m2 em Seidões Fafe
Braga, Fafe, Regadas
110 000 €
Terreno à venda em Celorico de Basto para construção de uma moradia de 4 frentes
Braga, Celorico de Basto, Britelo, Gémeos e Ourilhe
40 000 €
Terreno Rústico com 3051m2 Quintiães - Barcelos
Braga, Barcelos, Aborim
77 500 €
Terreno Urbano para Construção com 404 m² – Cepães, Fafe
Braga, Fafe, Cepães e Fareja
40 000 €
Terreno Urbano à Venda em Celorico de Basto
Braga, Celorico de Basto, Britelo, Gémeos e Ourilhe
40 000 €
Terreno para Construção com 410 m² em Travassós, Fafe
Braga, Fafe, Travassós
28 000 €
Partilha o imóvel: Terreno com Projeto Aprovado para a Construção de Duas Moradias – Moreira de Cónegos, Guimarães
Partilha este imóvel nas tuas redes sociais ou envia diretamente para o email dos teus amigos.
Partilhar por email
Adicione uma nota ao imóvel!
Só você é que vê as notas que adiciona. Os imóveis com notas ficam nos favoritos para os poder consultar mais tarde.
Excluíste o anúncio:
Terreno com Projeto Aprovado para a Construção de Duas Moradias – Moreira de Cónegos, Guimarães