Pesquisar perto de mim
A aguardar a sua pesquisa
Voltar
Terreno com projeto aprovado em Santa Luzia
Terreno com projeto aprovado em Santa Luzia
Terreno com projeto aprovado em Santa Luzia
Terreno com projeto aprovado em Santa Luzia
Ver galeria (8)
Ver galeria (8)
Seguir
Partilhar

Terreno com projeto aprovado em Santa Luzia

Faro, Tavira, Santa Luzia Ver no mapa
195 000 €
1 Quartos
2 WC's
Área Bruta: 90m2
Certificação Energética: Isento

Descrição do anúncio

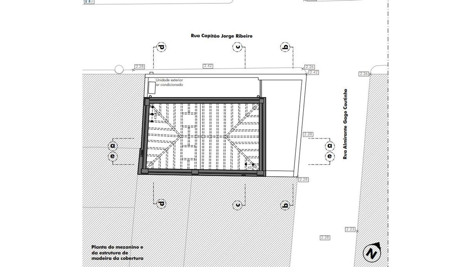
Terreno com projeto aprovado para moradia T1 em Santa Luzia a apenas 50 metros da marginal.

Este terreno de 61.74m2 tem em projeto uma área de construção de cerca de 90 m2.

A licença encontra-se a pagamento.

No projeto prevê-se a construção de uma moradia de tipologia T1 com dois pisos.
No R/C uma sala e cozinha em open Space, casa de banho de serviço e pátio.
No primeiro piso um quarto en-suite.

Localizada na vila piscatória de Santa Luzia onde pode aceder a diferentes opções de comércio local e serviços.

O acesso ao barco para a praia de Santa Luzia está a apenas 5 minutos a pé.

A cidade de Tavira enconta-se a 5 minutos de carro, existindo ainda a possibilidade de fazer o trajeto pela ciclovia.

Contacte-nos para mais informações sobre a sua futura casa de férias!

-----------------

Sobre a vila de Santa Luzia

De natureza piscatória, esta freguesia vive, também, da aposta no turismo, com alojamento, restaurantes e praias de qualidade. Designada como a 'capital do polvo', Santa Luzia proporciona a todos os seus visitantes verdadeiros momentos de harmonia e bem-estar.

Aprecie a vida desta vila e as artes de pesca que convivem num ambiente de harmonia com o turismo e a hospitalidade dos santaluzienses.

Casas do Sotavento é uma empresa familiar, reconhecida no país e no estrangeiro, por clientes, colaboradores, investidores, pela qualidade das nossas acções e dos nossos projecto. A nossa missão é de proporcionar uma experiência fácil e tranquila. A nossa preocupação, tratar toda a gente como gostaríamos de ser tratados.

Galeria do imóvel

Terreno com projeto aprovado em Santa Luzia
Terreno com projeto aprovado em Santa Luzia
Terreno com projeto aprovado em Santa Luzia
Terreno com projeto aprovado em Santa Luzia
Terreno com projeto aprovado em Santa Luzia
Terreno com projeto aprovado em Santa Luzia

Localização do imóvel

Faro, Tavira, Santa Luzia

Referência do anúncio: CS-MOR-90747. Última atualização: 17 abril 2025.

Relatório de preços praticados nos últimos 8 meses

Faro, Tavira, Santa Luzia

Simule um Crédito Habitação

Os dados apresentados são meramente indicativos. Condições gerais
Seguir
Partilhar
Around The Sun - Unip Lda
AMI 10136
Nome
Email
Contacto
Formato inválido
Agende uma visita
Referência do anúncio: CS-MOR-90747.
Última atualização: 17 abril 2025.
Contactar
Veja também
Anúncios na mesma zona
Moradia T3 exclusiva em Tavira, com piscina e estacionamento privados
Faro, Tavira, Tavira (Santa Maria e Santiago)
1 210 000 €
3
3
MORADIA TRADICIONAL, PARA RENOVAR, T2,BAIXA OLHÃO
Faro, Olhão, Olhão
180 000 €
2
1
Moradia T3 de luxo em Tavira com piscina e estacionamento privado
Faro, Tavira, Tavira (Santa Maria e Santiago)
975 000 €
3
4
Moradia t4 mais 3 apartamentos para investimento em lote de 918m2
Faro, Portimão, Portimão
950 000 €
7
7
Moradia V3 Isolada perto de Vilamoura
Faro, Loulé, Boliqueime
1 460 000 €
3
1
Moradia T3 em Resort de Luxo no Algarve!!
Faro, Castro Marim, Castro Marim
475 000 €
3
3
Entre o céu a terra e o mar 300m2 sua moradia de luxo, lagos
Faro, Lagos, Lagos (São Sebastião e Santa Maria)
2 400 000 €
4
4
1
Moradia Moderna com Piscina a 5 Minutos das Praias de Altura
Faro, Castro Marim, Altura
635 000 €
2
1
moradia geminada com piscina a estrear na Praia da Luz, em Lagos
Faro, Lagos, Luz
1 300 000 €
2
3
Moradia T4 de luxo em Tavira, com piscina e garagem privada
Faro, Tavira, Tavira (Santa Maria e Santiago)
2 600 000 €
4
5
Partilha o imóvel: Terreno com projeto aprovado em Santa Luzia
Partilha este imóvel nas tuas redes sociais ou envia diretamente para o email dos teus amigos.
Partilhar por email
Adicione uma nota ao imóvel!
Só você é que vê as notas que adiciona. Os imóveis com notas ficam nos favoritos para os poder consultar mais tarde.
Excluíste o anúncio:
Terreno com projeto aprovado em Santa Luzia