Pesquisar perto de mim
A aguardar a sua pesquisa
Voltar
Terreno com projecto aprovado para Condomínio de luxo em Carnaxide
Terreno com projecto aprovado para Condomínio de luxo em Carnaxide
Terreno com projecto aprovado para Condomínio de luxo em Carnaxide
Terreno com projecto aprovado para Condomínio de luxo em Carnaxide
Ver galeria (25)
Ver galeria (25)
Seguir
Partilhar

Terreno com projecto aprovado para Condomínio de luxo em Carnaxide

Lisboa, Oeiras, Carnaxide e Queijas Ver no mapa
1 800 000 €
0 Quartos
0 WC's
Certificação Energética: N/D

Descrição do anúncio

Atenção!
Oportunidade única na Serra de Carnaxide!

Terreno com Projeto Aprovado e Licenças Pagas
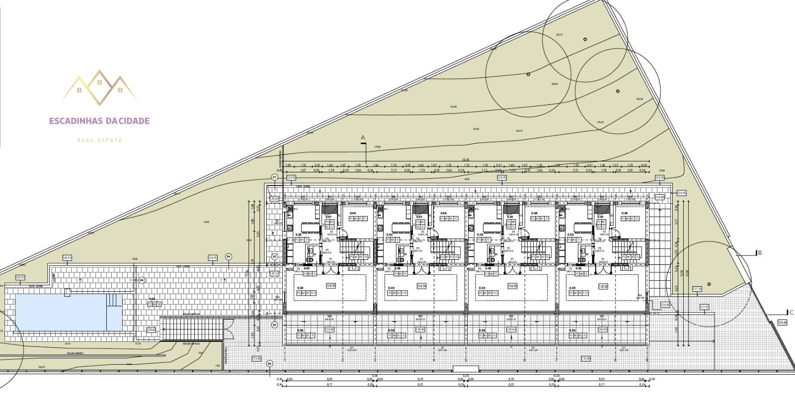
Localizado numa das áreas mais exclusivas de Carnaxide, junto ao Hospital Santa Cruz, este terreno de 1.673,10 m² oferece uma vista deslumbrante sobre o Rio Tejo e o Cristo Rei.

Projeto para Condomínio Fechado de Luxo
Aprovado para a construção de 4 moradias geminadas T4, este projeto exclusivo oferece:
Cave: Espaço para 4 viaturas e casa das máquinas.
R/C: Sala ampla, cozinha moderna, quarto e WC de serviço.
1º Andar: 3 quartos (sendo 1 em suíte com closet) e WC completo.
Cobertura: Terraço com pérgula e ginásio privativo.As moradias terão jardins, sala de condominio e uma piscina comum, proporcionando um estilo de vida exclusivo e confortável.

Cada moradia tem a área de construção bruta de 301,44 m2, área bruta privativa de 167,74m2.

Não perca esta oportunidade!
Entre em contacto agora para mais informações e garanta já o seu lugar neste projeto de sonho!

Valor unitário:1410.79/m2
Certificados Energéticos: Letra A+

Na Escadinhas da Cidade não ajudamos apenas a encontrar a casa perfeita, mas também facilitamos o processo de financiamento através de parceria com serviços de intermediação de crédito. Juntos tornaremos o seu processo mais simples
e acessível.

Agende já a sua visita e descubra o Lar dos seus sonhos!

Visite este e outros imóveis em www.escadinhasdacidade.pt

Escadinhas da Cidade , SMI Lda
Licença AMI 23557

Contacte-me:
Catarina Silva
937624072
[email protected]

Características Gerais

  • Acesso com Estrada
  • Não edificável

Galeria do imóvel

Terreno com projecto aprovado para Condomínio de luxo em Carnaxide
Terreno com projecto aprovado para Condomínio de luxo em Carnaxide
Terreno com projecto aprovado para Condomínio de luxo em Carnaxide
Terreno com projecto aprovado para Condomínio de luxo em Carnaxide
Terreno com projecto aprovado para Condomínio de luxo em Carnaxide
Terreno com projecto aprovado para Condomínio de luxo em Carnaxide

Localização do imóvel

Lisboa, Oeiras, Carnaxide e Queijas

Referência do anúncio: TRI-187-24-CS(1). Última atualização: 20 novembro 2025.

Relatório de preços praticados nos últimos 8 meses

Lisboa, Oeiras, Carnaxide e Queijas

Simule um Crédito Habitação

Os dados apresentados são meramente indicativos. Condições gerais
Seguir
Partilhar
Escadinhas Da Cidade - Mediacao Imobiliaria, Lda
AMI 23557
Nome
Email
Contacto
Formato inválido
Agende uma visita
Referência do anúncio: TRI-187-24-CS(1).
Última atualização: 20 novembro 2025.
Contactar
Veja também
Anúncios na mesma zona
Terreno urbano com benfeitorias- baixa de preço
Lisboa, Loures, Camarate, Unhos e Apelação
91 000 €
Terreno na Ajuda com 2000 m2, junto ao Polo Universitário da Ajuda
Lisboa, Lisboa, Ajuda
3 000 000 €
Terreno Rústico, perto de Bolelas - São João das Lampas
Lisboa, Sintra, São João das Lampas e Terrugem
70 000 €
Terreno urbano para construção de 4 moradias com PIP
Lisboa, Mafra, Mafra
300 000 €
Terreno com pinhal em São João das Lampas
Lisboa, Sintra, São João das Lampas e Terrugem
70 000 €
Terreno rústico - Assafora
Lisboa, Sintra, São João das Lampas e Terrugem
75 000 €
Terreno Urbano para Construção com 183,69 m² na Encosta do Sol (Brandoa), Amadora
Lisboa, Amadora, Mina de Água
175 000 €
Terreno para Construção – Lote 19 - Excelente Oportunidade em Odivelas!
Lisboa, Loures, Santo António dos Cavaleiros e Frielas
298 000 €
Terreno para Construção – Lote 20 - Excelente Oportunidade em Odivelas!
Lisboa, Loures, Santo António dos Cavaleiros e Frielas
298 000 €
Terreno com projeto aprovado para construção de moradia
Lisboa, Lourinhã, Miragaia e Marteleira
79 000 €
Partilha o imóvel: Terreno com projecto aprovado para Condomínio de luxo em Carnaxide
Partilha este imóvel nas tuas redes sociais ou envia diretamente para o email dos teus amigos.
Partilhar por email
Adicione uma nota ao imóvel!
Só você é que vê as notas que adiciona. Os imóveis com notas ficam nos favoritos para os poder consultar mais tarde.
Excluíste o anúncio:
Terreno com projecto aprovado para Condomínio de luxo em Carnaxide