Pesquisar perto de mim
A aguardar a sua pesquisa
Voltar
Terreno com PIP aprovado para Habitação Multifamiliar na Timpeira, Vila Real
Terreno com PIP aprovado para Habitação Multifamiliar na Timpeira, Vila Real
Terreno com PIP aprovado para Habitação Multifamiliar na Timpeira, Vila Real
Terreno com PIP aprovado para Habitação Multifamiliar na Timpeira, Vila Real
Ver galeria (9)
Ver galeria (9)
Seguir
Partilhar

Terreno com PIP aprovado para Habitação Multifamiliar na Timpeira, Vila Real

Vila Real, Vila Real, Vila Real (Nossa Senhora da Conceição, São Pedro e São Dinis) Ver no mapa
1 400 000 €
0 Quartos
0 WC's
3420m2
Área Útil: 3420m2
Área Bruta: 5168m2
Certificação Energética: Isento

Descrição do anúncio

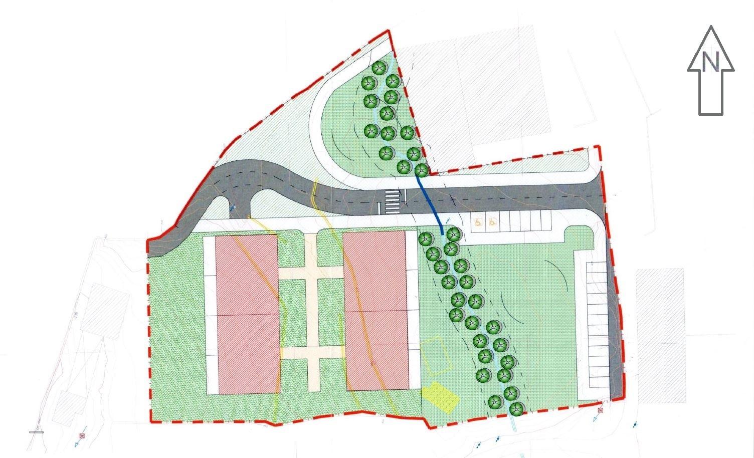
Terreno de 7.600 m2 com Pedido de Informação Prévia (PIP) aprovado pelo Município de Vila Real para construção de imóvel de Habitação Multifamiliar, com 36 apartamentos, na Timpeira, Vila Real


| Dados do PIP |

Área da Parcela: 7.600 m2;
Área de Implantação: 1.748 m2;
Área de impermeabilização: 3.670 m2;
Área de construção: 5.168 m2;
Número de fogos: 36
Altura da fachada: 10 metros;
Estacionamento: 50 privados + 19 públicos;
Acessos: A criar


| Zona Envolvente |

Autoestrada, Espaços Verdes, Hipermercados, Posto de Combustível, Transportes Públicos, Vista para Campo, Vista para Cidade, Vista para Montanha

Galeria do imóvel

Terreno com PIP aprovado para Habitação Multifamiliar na Timpeira, Vila Real
Terreno com PIP aprovado para Habitação Multifamiliar na Timpeira, Vila Real
Terreno com PIP aprovado para Habitação Multifamiliar na Timpeira, Vila Real
Terreno com PIP aprovado para Habitação Multifamiliar na Timpeira, Vila Real
Terreno com PIP aprovado para Habitação Multifamiliar na Timpeira, Vila Real
Terreno com PIP aprovado para Habitação Multifamiliar na Timpeira, Vila Real

Localização do imóvel

Vila Real, Vila Real, Vila Real (Nossa Senhora da Conceição, São Pedro e São Dinis)

Referência do anúncio: TER_1107. Última atualização: 07 janeiro 2026.

Relatório de preços praticados nos últimos 8 meses

Vila Real, Vila Real, Vila Real (Nossa Senhora da Conceição, São Pedro e São Dinis)

Simule um Crédito Habitação

Os dados apresentados são meramente indicativos. Condições gerais
Seguir
Partilhar
Degraus Para O Sol - Unipessoal Lda
AMI 14033
Nome
Email
Contacto
Formato inválido
Agende uma visita
Referência do anúncio: TER_1107.
Última atualização: 07 janeiro 2026.
Contactar
Veja também
Anúncios na mesma zona
Terreno para venda
Vila Real, Montalegre, Negrões
63 000 €
Terreno Industrial - Alijó
Vila Real, Alijó, Alijó
Sob consulta
Terreno com PIP aprovado para Habitação Multifamiliar na Timpeira, Vila Real
Vila Real, Vila Real, Vila Real (Nossa Senhora da Conceição, São Pedro e São Dinis)
1 400 000 €
Lotes Para Moradias Junto às Escolas Morgado Mateus e Jerônimo do Amaral
Vila Real, Vila Real, Vila Real (Nossa Senhora da Conceição, São Pedro e São Dinis)
80 080 €
Ruínas - Douro Vinhateiro
Vila Real, Sabrosa, Sabrosa
Sob consulta
Terreno urbanizável em abaças / vila real
Vila Real, Vila Real, Abaças
55 000 €
Terreno de 9.991 m² em vidago – oportunidade única!
Vila Real, Chaves, Vidago (Vidago, Arcossó, Selhariz e Vilarinho das Paranheiras)
165 000 €
Terreno para venda
Vila Real, Montalegre, Salto
57 000 €
Terreno para venda
Vila Real, Mondim de Basto, Mondim de Basto
67 500 €
Terreno para venda
Vila Real, Chaves, Oura
69 000 €
Partilha o imóvel: Terreno com PIP aprovado para Habitação Multifamiliar na Timpeira, Vila Real
Partilha este imóvel nas tuas redes sociais ou envia diretamente para o email dos teus amigos.
Partilhar por email
Adicione uma nota ao imóvel!
Só você é que vê as notas que adiciona. Os imóveis com notas ficam nos favoritos para os poder consultar mais tarde.
Excluíste o anúncio:
Terreno com PIP aprovado para Habitação Multifamiliar na Timpeira, Vila Real