Pesquisar perto de mim
A aguardar a sua pesquisa
Voltar
Terreno com PIP aprovado, na melhor localização de Almada
Terreno com PIP aprovado, na melhor localização de Almada
Terreno com PIP aprovado, na melhor localização de Almada
Terreno com PIP aprovado, na melhor localização de Almada
Ver galeria (13)
Ver galeria (13)
Seguir
Partilhar

Terreno com PIP aprovado, na melhor localização de Almada

Setúbal, Almada, Almada, Cova da Piedade, Pragal e Cacilhas Ver no mapa
2 900 000 €
0 Quartos
0 WC's
Certificação Energética: N/D
Estado: Em Projecto

Descrição do anúncio

Terreno com Pedido de Informação Prévia (PIP) aprovado, na melhor localização de Almada.

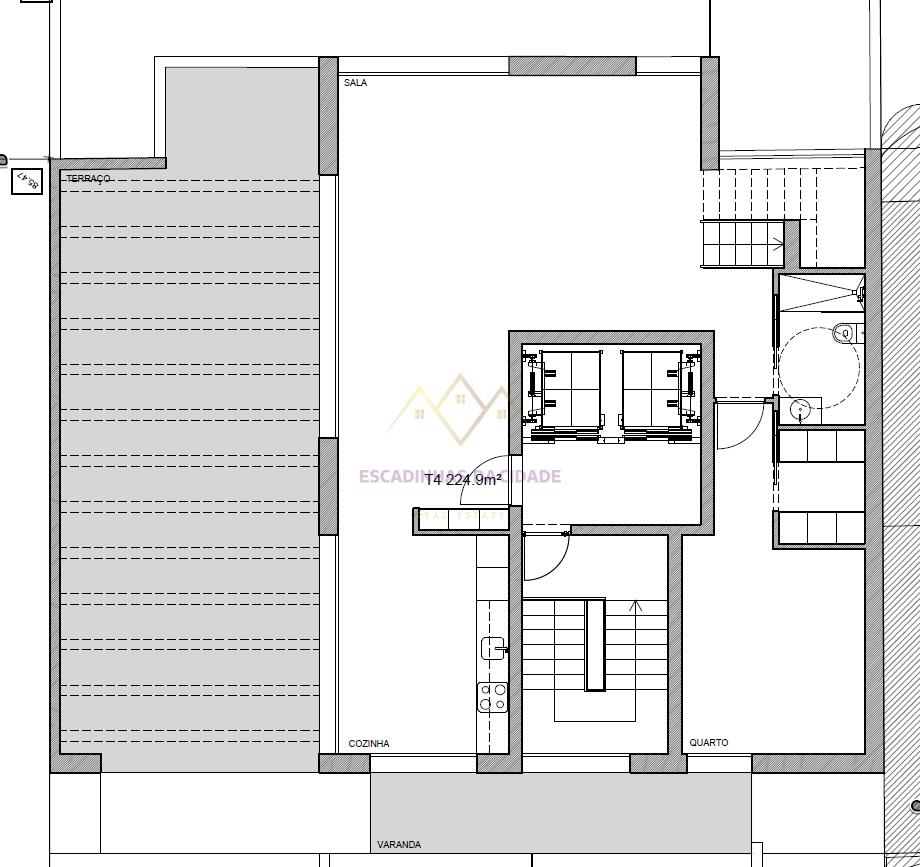
O PIP aprovado, teve por base um projeto para 18 apartamentos:
4 Apartamentos T1
6 Apartamentos T2
7 Apartamentos T3
1 Apartamento T4 com Terraço.
 Existe ainda outro estudo realizado para 26 apartamentos (15 apartamentos T1 + 11 apartamentos T2).

Características:

Área do Lote de Terreno: 300 m2
Área de Implantação: 262 m2
Área Bruta de construção: 2.540 m2
18 apartamentos + 1 Loja
20 lugares de estacionamento
10 pisos acima do solo (sendo 4 recuados) + 2 pisos abaixo do solo

Se procura um investimento seguro ou um local perfeito para construir o seu próximo projeto, este terreno é a escolha certa!
Localização Premium: Situado numa das zonas mais valorizadas e procuradas de Almada, com acessos rápidos a Lisboa, praias da Costa da Caparica e todos os serviços essenciais.
Área útil: 2.278 m2
Valor unitário: 1.273/m2€
Certificado energético: Isento

Escadinhas da Cidade – Mediação Imobiliária, Lda
AMI 23557
Alexandra Silva
+351937624073
[email protected] 
 

Características Gerais

  • Acesso com Estrada
  • Terreno Urbano

Galeria do imóvel

Terreno com PIP aprovado, na melhor localização de Almada
Terreno com PIP aprovado, na melhor localização de Almada
Terreno com PIP aprovado, na melhor localização de Almada
Terreno com PIP aprovado, na melhor localização de Almada
Terreno com PIP aprovado, na melhor localização de Almada
Terreno com PIP aprovado, na melhor localização de Almada

Localização do imóvel

Setúbal, Almada, Almada, Cova da Piedade, Pragal e Cacilhas

Referência do anúncio: TRI-040-25-AS. Última atualização: 09 outubro 2025.

Relatório de preços praticados nos últimos 8 meses

Setúbal, Almada, Almada, Cova da Piedade, Pragal e Cacilhas

Simule um Crédito Habitação

Os dados apresentados são meramente indicativos. Condições gerais
Seguir
Partilhar
Escadinhas Da Cidade - Mediacao Imobiliaria, Lda
AMI 23557
Nome
Email
Contacto
Formato inválido
Agende uma visita
Referência do anúncio: TRI-040-25-AS.
Última atualização: 09 outubro 2025.
Contactar
Veja também
Anúncios na mesma zona
Terreno Corte das Cheiras com cerca de 28.000 m2 | Estrada real, Montijo
Setúbal, Alcochete, São Francisco
350 000 €
Lote de terreno urbano na baixa da banheira
Setúbal, Moita, Baixa da Banheira e Vale da Amoreira
96 500 €
Terreno rustico de 7.320m2 em cabanas, palmela
Setúbal, Palmela, Quinta do Anjo
374 900 €
Terreno nas Portas da Cidade do Montijo com cerca de 20.000 m2
Setúbal, Montijo, Atalaia e Alto Estanqueiro-Jardia
800 000 €
Terreno em zona central de setúbal, para construção de edifício de r/c e 5 andares c./ 3 andares para garagens.
Setúbal, Setúbal, Setúbal (São Julião, Nossa Senhora da Anunciada e Santa Maria da Graça)
380 000 €
Terreno Urbano nas Quintinhas - Charneca da Caparica
Setúbal, Almada, Charneca de Caparica e Sobreda
450 000 €
Terreno Gaveto com Estrada Nacional
Setúbal, Montijo, Pegões
75 000 €
Terreno para construção de Prédio em Almoinha Sesimbra
Setúbal, Sesimbra, Sesimbra (Castelo)
144 000 €
Terreno urbano para prédio, comércio e ou escritórios
Setúbal, Sesimbra, Quinta do Conde
112 000 €
Terreno com 75.000 m2 para construção de armazéns no MONTIJO, Lisboa
Setúbal, Montijo, Sarilhos Grandes
6 500 000 €
Partilha o imóvel: Terreno com PIP aprovado, na melhor localização de Almada
Partilha este imóvel nas tuas redes sociais ou envia diretamente para o email dos teus amigos.
Partilhar por email
Adicione uma nota ao imóvel!
Só você é que vê as notas que adiciona. Os imóveis com notas ficam nos favoritos para os poder consultar mais tarde.
Excluíste o anúncio:
Terreno com PIP aprovado, na melhor localização de Almada