Pesquisar perto de mim
A aguardar a sua pesquisa
Voltar
Terreno cidade da maia para construção 3 moradias
Terreno cidade da maia para construção 3 moradias
Terreno cidade da maia para construção 3 moradias
Terreno cidade da maia para construção 3 moradias
Ver galeria (18)
Ver galeria (18)
Seguir
Partilhar

Terreno cidade da maia para construção 3 moradias

Porto, Maia, Cidade da Maia Ver no mapa
380 000 €
0 Quartos
0 WC's
Certificação Energética: Isento

Descrição do anúncio

Terreno
para Construção  de 3 moradias na Cidade
da Maia
Excelente
oportunidade de investimento na cidade da Maia, numa zona residencial tranquila
e de grande valorização, junto aos Maninhos
Este
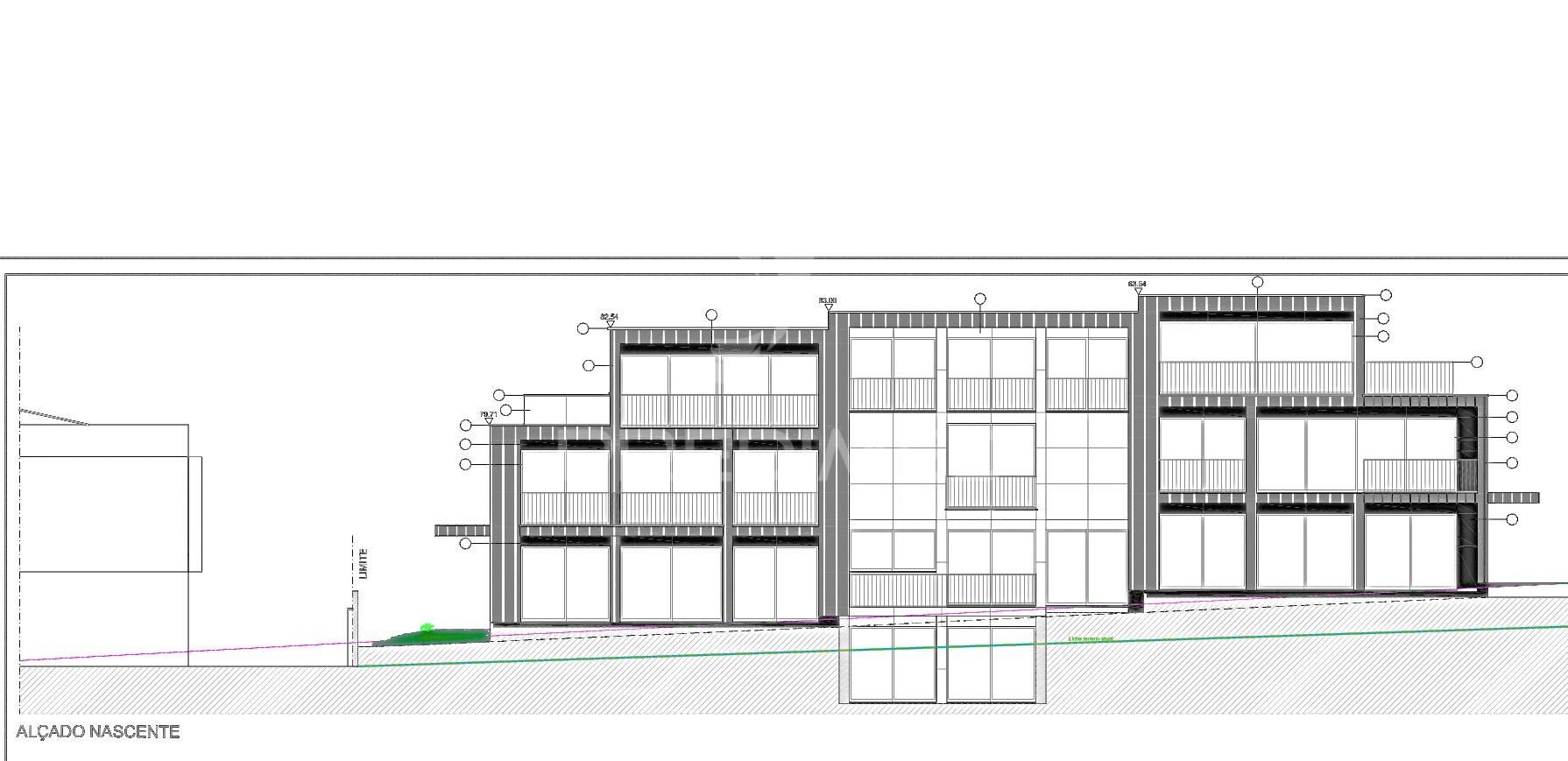
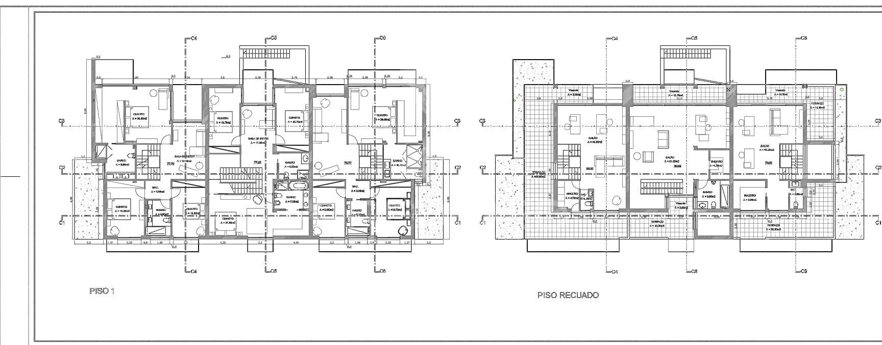
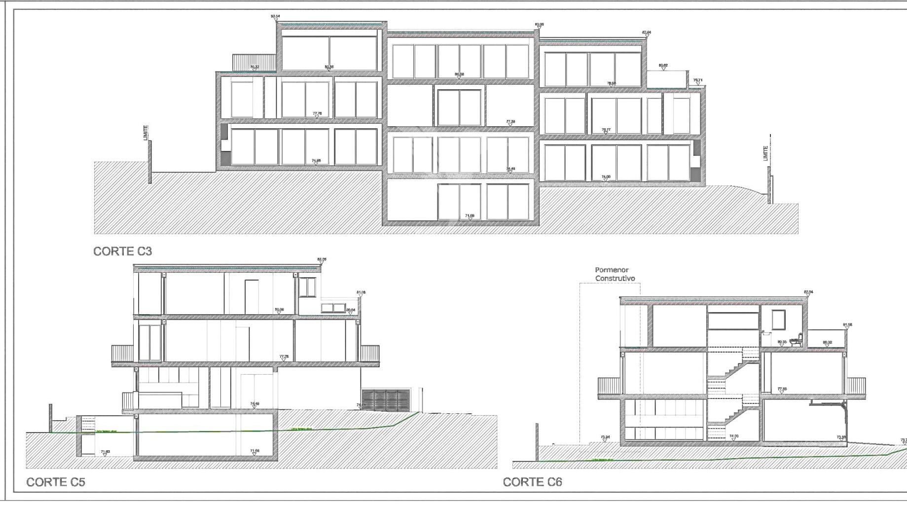
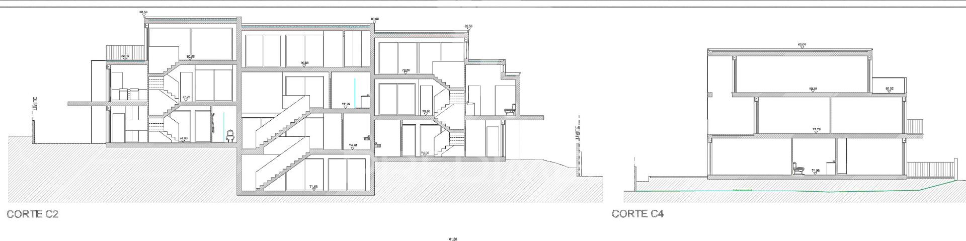
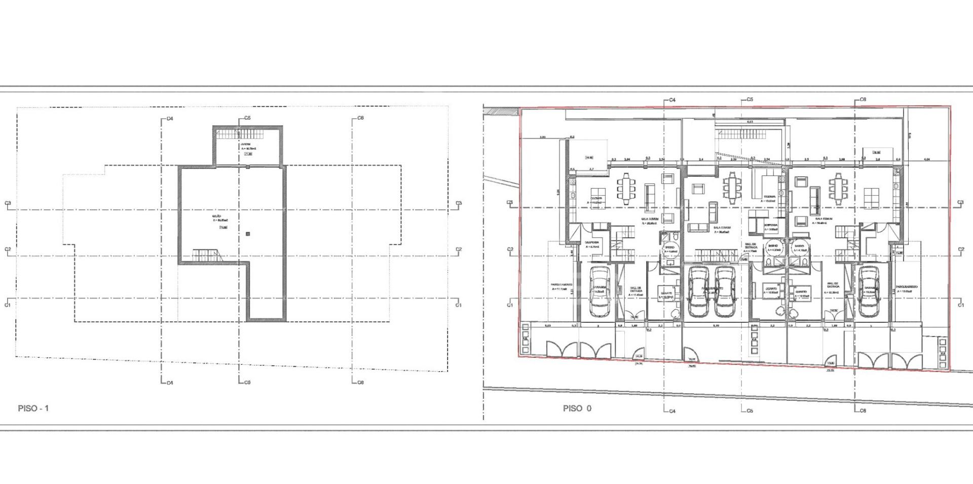
terreno com 951,50 m² oferece viabilidade para construção de três moradias
geminadas, uni ou multifamiliares, compostas por cave, rés-do-chão, primeiro
piso e rooftop
Devido à
sua versatilidade e localização privilegiada, o terreno também permite a
construção de um prédio em altura, com cave, rés-do-chão e primeiro piso, desde
que respeitada a morfotipologia dominante da zona
Existe
projeto aprovado para o terreno contíguo, sendo que as plantas são meramente
informativas e elucidativas do potencial de construção do terreno à venda
Este
projeto tem viabilidade para construção de 3 moradias T4, com cave(opcional),
rés-do-cão, primeiro piso e rooftop, destribuído da seguinte formaNo
rés-do-chão – cozinha, sala, 1 quarto e 1 casa de banhoNo
primeiro piso – 3 quartos, sala TV e 2 casas de banhoNo rooftop
– sala ampla, arrumos, lavandaria e 1 casa de banho
ÁreasÁrea
total do terreno: 951,50 m²Área
bruta de construção: 655 m²Área
bruta dependente: 85 m² Zona
EnvolventeLocalizado
numa das áreas mais procuradas da Maia, o terreno beneficia de:Comércio
e serviços nas proximidades (supermercados, cafés, escolas e farmácias);Excelentes
acessos viários, próximo das principais vias de ligação à EN14, A41 e A3;Transportes
públicos a curta distância, estação metro 
da Maia, garantindo fácil acesso ao centro da Maia e ao Porto;Ambiente
residencial e tranquilo, ideal para famílias ou projetos habitacionais. 









































Uma oportunidade única
para construir o seu projeto num local de referência, com forte potencial de
valorização


Predimed Imobiliária, Mediação Imobiliária, Lda.
Avenida Brasil 43, 12º Andar, 1700-062 Lisboa
Licença AMI nº 22503
Pessoa Coletiva nº 517 239 345
Seguro Responsabilidade Civil: Nº de Apólice RC65379424 Fidelidade

Galeria do imóvel

Terreno cidade da maia para construção 3 moradias
Terreno cidade da maia para construção 3 moradias
Terreno cidade da maia para construção 3 moradias
Terreno cidade da maia para construção 3 moradias
Terreno cidade da maia para construção 3 moradias
Terreno cidade da maia para construção 3 moradias

Localização do imóvel

Porto, Maia, Cidade da Maia

Referência do anúncio: 052609. Última atualização: 11 novembro 2025.

Relatório de preços praticados nos últimos 8 meses

Porto, Maia, Cidade da Maia

Simule um Crédito Habitação

Os dados apresentados são meramente indicativos. Condições gerais
Seguir
Partilhar
Predimed Imobiliaria Mediacao Imobiliaria Lda
AMI 22503
Nome
Email
Contacto
Formato inválido
Agende uma visita
Referência do anúncio: 052609.
Última atualização: 11 novembro 2025.
Contactar
Veja também
Anúncios na mesma zona
Terreno e ruína com vistas para o rio Douro
Porto, Penafiel, Canelas
Sob consulta
Terreno com potencial de construção | Senhora dos Chãos, Valongo, Porto
Porto, Valongo, Valongo
1 969 000 €
Invista em terreno com área construível em zona rural com bons acessos
Porto, Vila Nova de Gaia, Sandim, Olival, Lever e Crestuma
34 100 €
Terreno com 6500m2 com projeto aprovado em Avintes!!
Porto, Vila Nova de Gaia, Avintes
600 000 €
Terreno para construção de moradia 4 frentes em grijó, vila nova de gaia ver id 44868
Porto, Vila Nova de Gaia, Grijó e Sermonde
107 000 €
Terreno para construção em Vila Nova de Gaia
Porto, Vila Nova de Gaia, Santa Marinha e São Pedro da Afurada
475 000 €
Terreno para Construção de uma ou duas Moradias, localizado perto do campo de futebol de Crestuma!
Porto, Vila Nova de Gaia, Sandim, Olival, Lever e Crestuma
85 000 €
Terreno rústico com vistas para o Rio
Porto, Penafiel, Irivo
Sob consulta
🌿 Terreno para construção em...
Porto, Amarante, Amarante (São Gonçalo), Madalena, Cepelos e Gatão
69 500 €
Terreno para venda
Porto, Felgueiras, Revinhade
80 000 €
Partilha o imóvel: Terreno cidade da maia para construção 3 moradias
Partilha este imóvel nas tuas redes sociais ou envia diretamente para o email dos teus amigos.
Partilhar por email
Adicione uma nota ao imóvel!
Só você é que vê as notas que adiciona. Os imóveis com notas ficam nos favoritos para os poder consultar mais tarde.
Excluíste o anúncio:
Terreno cidade da maia para construção 3 moradias