Pesquisar perto de mim
A aguardar a sua pesquisa
Voltar
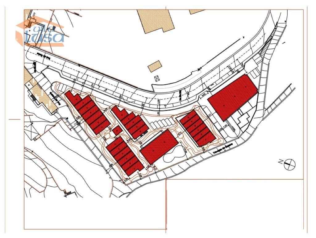
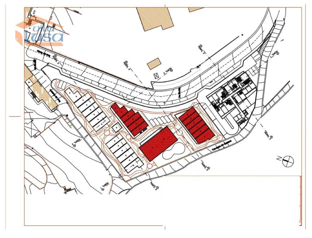
Terreno c/ 5883m2  com projeto para residências, em Sobreira, Paredes.
Terreno c/ 5883m2  com projeto para residências, em Sobreira, Paredes.
Terreno c/ 5883m2  com projeto para residências, em Sobreira, Paredes.
Terreno c/ 5883m2  com projeto para residências, em Sobreira, Paredes.
Ver galeria (22)
Ver galeria (22)
Seguir
Partilhar

Terreno c/ 5883m2 com projeto para residências, em Sobreira, Paredes.

Porto, Paredes, Sobreira Ver no mapa
270 000 €
0 Quartos
0 WC's
Certificação Energética: Isento
Estado: Usado

Descrição do anúncio

Terreno em Sobreira Paredes.

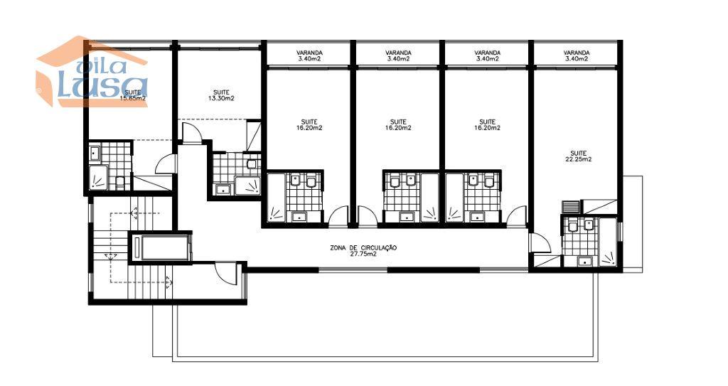
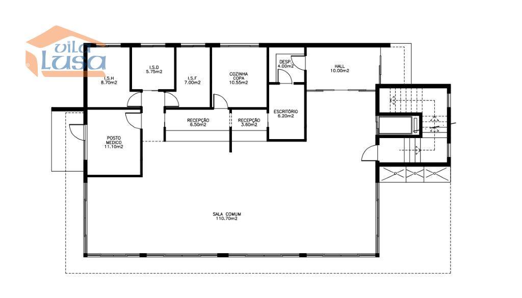
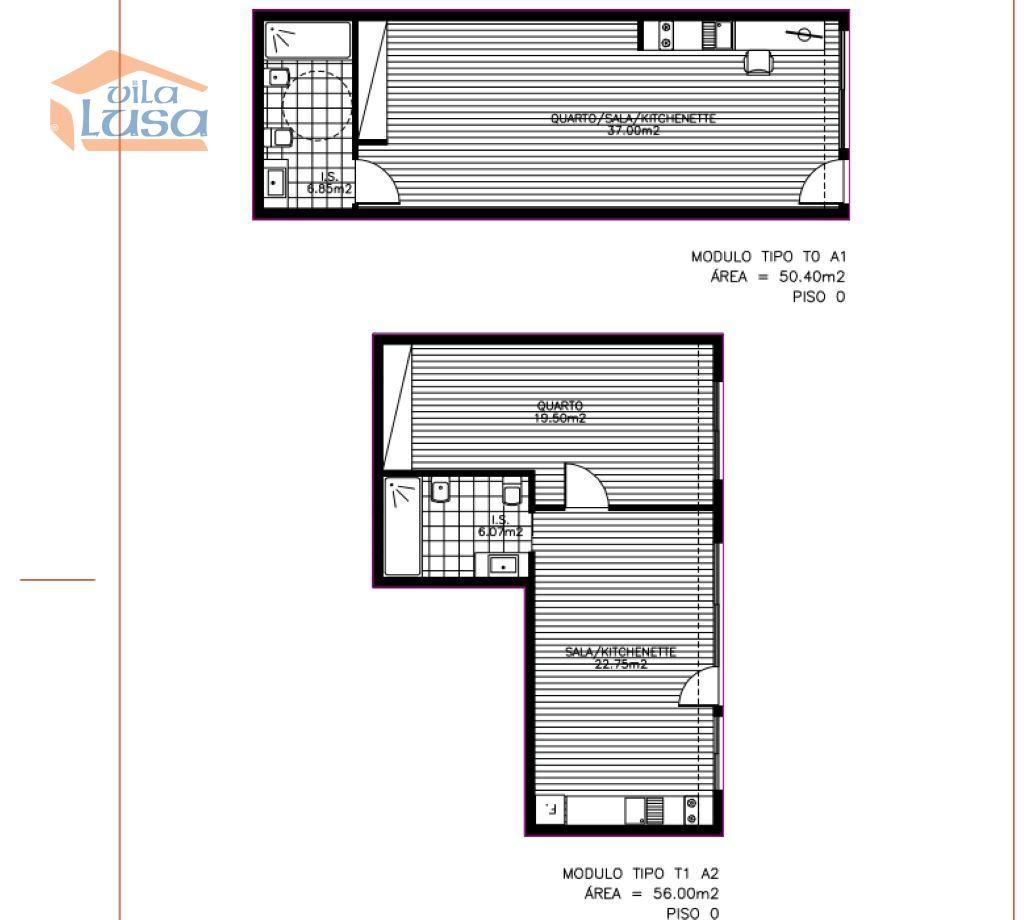
Terreno com 5883m2 em Sobreira Paredes com projeto para residências sénior.
Projeto para turismo incluindo residências sénior.

Área de implantação total: 1699.78 m2
Área Bruta de Construção quartos: 3628.81 m2
Área garagem - piso -1: 1457.50 m2

Este projecto pretende alargar a oferta de alojamento, para o segmento de utilizadores muito específicos seniores, com ou sem cuidados especiais, que procuram, qualidade de vida, tranquilidade e uma proximidade com a cidade do Porto.

Com 58 quartos com várias tipologias, desde T0 a T3 e estacionamento coberto para 49 lugares.

Está previsto para todos os quartos e apartamentos, quarto de banho privativo, internet, tv, telefone e ar condicionado.

Ligue para mais informações.

Se está a procurar ajuda com serviços de mediação de crédito, veio ao lugar certo! A nossa equipa especializada em mediação de crédito está aqui para oferecer suporte e orientação durante todo o processo.
Oferecemos uma variedade de serviços para atender às suas necessidades financeiras, incluindo:
1 - Análise e aconselhamento financeiro: os nossos especialistas irão analisar a sua situação financeira atual e oferecer conselhos personalizados para ajudá-lo a tomar decisões informadas.
2- Pesquisa de opções de crédito: faremos uma pesquisa abrangente das opções de crédito disponíveis no mercado, identificando as melhores soluções para você, conforme as suas necessidades e capacidade financeira.
3- Apoio na obtenção de crédito. Orientaremos durante todo o processo de obtenção de crédito, auxiliando na preparação de documentação, submissão de pedidos e acompanhamento junto às instituições financeiras.
4- Negociação de condições favoráveis. Utilizaremos a nossa experiência e conhecimento para negociar as melhores condições de crédito no seu nome, buscando taxas de juros competitivas e prazos adequados.
Acompanhamento contínuo: a nossa equipa estará disponível para responder a todas as suas dúvidas e fornecer suporte contínuo ao longo do seu relacionamento com a instituição financeira.
Independentemente das suas necessidades financeiras, estamos comprometidos em ajudá-lo a encontrar as melhores soluções de crédito. A nossa experiência e conhecimento do mercado nos permitem oferecer um serviço profissional e personalizado.
Entre em contacto connosco hoje mesmo para agendar uma consulta e descobrir como podemos ajudá-lo a obter o crédito de que precisa. Estamos aqui para orientá-lo e simplificar o processo, tornando a sua experiência mais fácil e tranquila.


Características Gerais

  • Acesso com Estrada
  • Terreno Urbano

Galeria do imóvel

Terreno c/ 5883m2  com projeto para residências, em Sobreira, Paredes.
Terreno c/ 5883m2  com projeto para residências, em Sobreira, Paredes.
Terreno c/ 5883m2  com projeto para residências, em Sobreira, Paredes.
Terreno c/ 5883m2  com projeto para residências, em Sobreira, Paredes.
Terreno c/ 5883m2  com projeto para residências, em Sobreira, Paredes.
Terreno c/ 5883m2  com projeto para residências, em Sobreira, Paredes.

Localização do imóvel

Porto, Paredes, Sobreira

Referência do anúncio: 808241015. Última atualização: 14 março 2024.

Relatório de preços praticados nos últimos 8 meses

Porto, Paredes, Sobreira

Simule um Crédito Habitação

Os dados apresentados são meramente indicativos. Condições gerais
Seguir
Partilhar
Vila Lusa - Forma Régia - Med Imob Unip., Lda
AMI 7917
910 ...
Chamada para a rede fixa nacional
Mostrar número
Nome
Email
Contacto
Formato inválido
Agende uma visita
Referência do anúncio: 808241015.
Última atualização: 14 março 2024.
Contactar
Veja também
Anúncios na mesma zona
Terreno Para Construção Venda em Monte Córdova,Santo Tirso
Porto, Santo Tirso, Monte Córdova
50 000 €
Terreno para construção em altura
Porto, Maia, Pedrouços
650 000 €
? terreno à venda em pedroso – vila nova de gaia ? área total: 660 m²
Porto, Vila Nova de Gaia, Pedroso e Seixezelo
88 000 €
Terreno Para Construção Venda em Monte Córdova,Santo Tirso
Porto, Santo Tirso, Monte Córdova
50 000 €
Terreno para construção em Paço de Sousa
Porto, Penafiel, Paço de Sousa
40 000 €
Terreno para construção de armazéns com 12300 m2 - Matosinhos
Porto, Matosinhos, Perafita, Lavra e Santa Cruz do Bispo
3 300 000 €
Terreno Para Construção Venda em Póvoa de Varzim, Beiriz e Argivai,Póvoa de Varzim
Porto, Póvoa de Varzim, Póvoa de Varzim, Beiriz e Argivai
199 000 €
Fábrica com Terrenos em Crestuma
Porto, Vila Nova de Gaia, Sandim, Olival, Lever e Crestuma
7 500 000 €
Terreno com 3 artigos e área total de 3000m2 com PIP aprovado em Pedroso!!
Porto, Vila Nova de Gaia, Pedroso e Seixezelo
750 000 €
Lote de terreno com 425 m
Porto, Vila Nova de Gaia, Pedroso e Seixezelo
105 000 €
Partilha o imóvel: Terreno c/ 5883m2 com projeto para residências, em Sobreira, Paredes.
Partilha este imóvel nas tuas redes sociais ou envia diretamente para o email dos teus amigos.
Partilhar por email
Adicione uma nota ao imóvel!
Só você é que vê as notas que adiciona. Os imóveis com notas ficam nos favoritos para os poder consultar mais tarde.
Excluíste o anúncio:
Terreno c/ 5883m2 com projeto para residências, em Sobreira, Paredes.