Pesquisar perto de mim
A aguardar a sua pesquisa
Voltar
Terreno - Azenhas, Sta. Joana
Terreno - Azenhas, Sta. Joana
Terreno - Azenhas, Sta. Joana
Terreno - Azenhas, Sta. Joana
Ver galeria (6)
Ver galeria (6)
Seguir
Partilhar

Terreno - Azenhas, Sta. Joana

Aveiro, Aveiro, Santa Joana Ver no mapa
105 000 €
0 Quartos
0 WC's
Certificação Energética: N/D

Descrição do anúncio

Terreno em  Azenhas, Sta. Joana

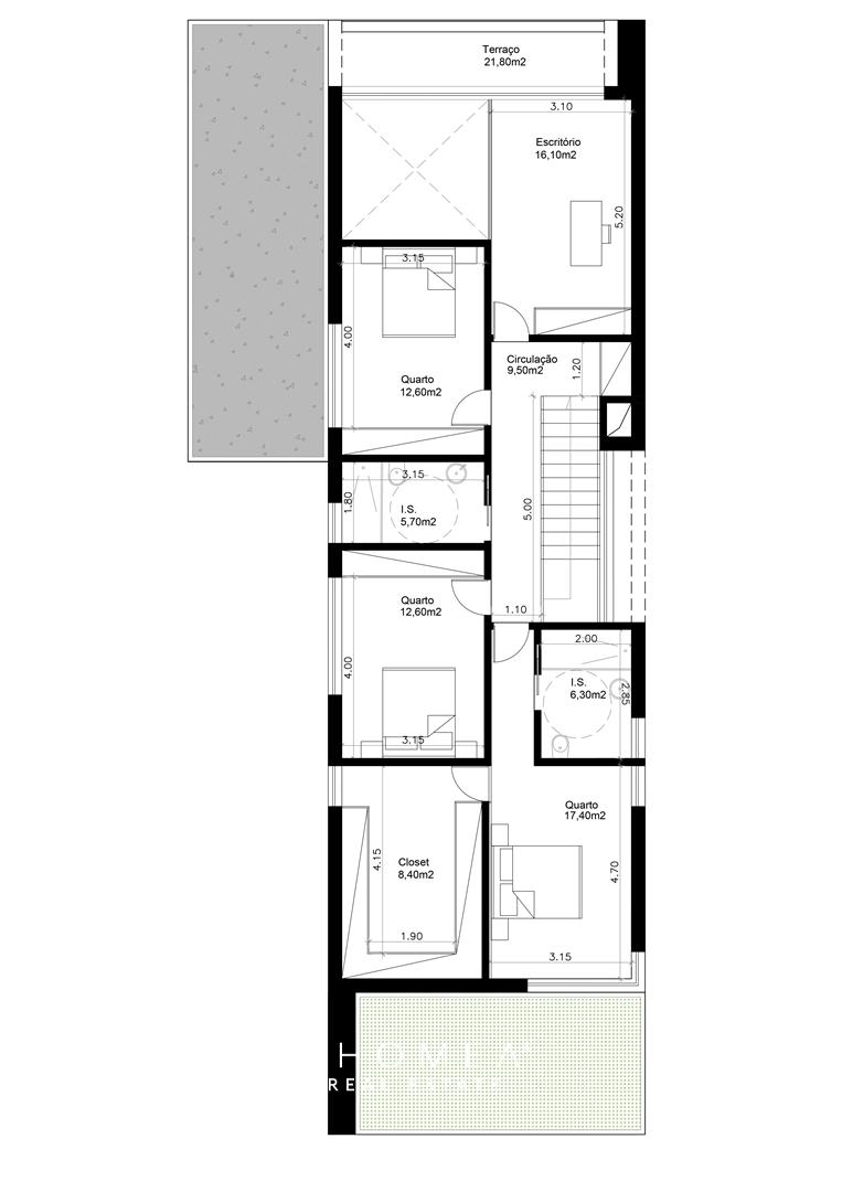
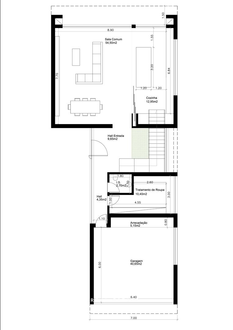
Lote de terreno para construção de moradia unifamiliar de r/c e 1º andar.

Com uma área total de 507 m2, este lote prevê uma área bruta de construção de 360m2, repartida por uma área bruta privativa de 317.5m2 com uma área bruta dependente de 42.5m2.

Situado na Rua da Azenha, Sta. Joana e com todas as infraestruturas já garantidas o terreno usufrui de uma excelente orientação solar e uma facilidade de acesso ao centro da cidade de Aveiro.
Está a decorrer um processo de licenciamento para o mesmo, pelo que o terreno pode ser vendido com o projeto aprovado e o alvará de construção concluído, o que permite o início da construção de imediato. Caso os projetos não forem do interesse do cliente, o valor será negociável.

Contacte para mais informações.
 

Características Gerais

  • Acesso com Estrada
  • Terreno Urbano

Galeria do imóvel

Terreno - Azenhas, Sta. Joana
Terreno - Azenhas, Sta. Joana
Terreno - Azenhas, Sta. Joana
Terreno - Azenhas, Sta. Joana
Terreno - Azenhas, Sta. Joana
Terreno - Azenhas, Sta. Joana

Localização do imóvel

Aveiro, Aveiro, Santa Joana

Referência do anúncio: CRTER_STJOANA. Última atualização: 06 fevereiro 2026.

Relatório de preços praticados nos últimos 8 meses

Aveiro, Aveiro, Santa Joana

Simule um Crédito Habitação

Os dados apresentados são meramente indicativos. Condições gerais
Seguir
Partilhar
JHOMEA INVEST, UNIPESSOAL LDA
AMI 16355
915 ...
Chamada para a rede fixa nacional
Mostrar número
Nome
Email
Contacto
Formato inválido
Agende uma visita
Referência do anúncio: CRTER_STJOANA.
Última atualização: 06 fevereiro 2026.
Contactar
Veja também
Anúncios na mesma zona
Terreno Oliveira Do Bairro
Aveiro, Oliveira do Bairro, Oliveira do Bairro
12 000 €
Terreno
Aveiro, Oliveira de Azeméis, Cesar
229 200 €
Terreno para construção em Fiães
Aveiro, Santa Maria da Feira, Santa Maria da Feira, Travanca, Sanfins e Espargo
179 000 €
Terreno Oliveira do Bairro
Aveiro, Oliveira do Bairro, Oliveira do Bairro
43 700 €
Lotes de terrenos urbanos em São Marinho da Gândara, Oliveira de Azeméis
Aveiro, Oliveira de Azeméis, São Martinho da Gândara
13 000 €
Terreno Rústico Venda em Vila de Cucujães,Oliveira de Azeméis
Aveiro, Oliveira de Azeméis, Vila de Cucujães
96 000 €
Terreno para venda Em Paredes do Bairro
Aveiro, Anadia, Amoreira da Gândara, Paredes do Bairro e Ancas
59 000 €
Terreno para venda Em Paredes do Bairro
Aveiro, Anadia, Amoreira da Gândara, Paredes do Bairro e Ancas
34 000 €
Terreno Rústico Venda em Recardães e Espinhel,Águeda
Aveiro, Águeda, Recardães e Espinhel
87 000 €
Terreno Oliveira Do Bairro
Aveiro, Oliveira do Bairro, Oliveira do Bairro
36 700 €
Partilha o imóvel: Terreno - Azenhas, Sta. Joana
Partilha este imóvel nas tuas redes sociais ou envia diretamente para o email dos teus amigos.
Partilhar por email
Adicione uma nota ao imóvel!
Só você é que vê as notas que adiciona. Os imóveis com notas ficam nos favoritos para os poder consultar mais tarde.
Excluíste o anúncio:
Terreno - Azenhas, Sta. Joana