Pesquisar perto de mim
A aguardar a sua pesquisa
Voltar
T3 Sul com garagem e varanda – Trofa
T3 Sul com garagem e varanda – Trofa
T3 Sul com garagem e varanda – Trofa
T3 Sul com garagem e varanda – Trofa
Ver galeria (15)
Ver galeria (15)
Seguir
Partilhar

T3 Sul com garagem e varanda – Trofa

Porto, Trofa, Bougado (São Martinho e Santiago) Ver no mapa
370 000 €
3 Quartos
3 WC's
124m2
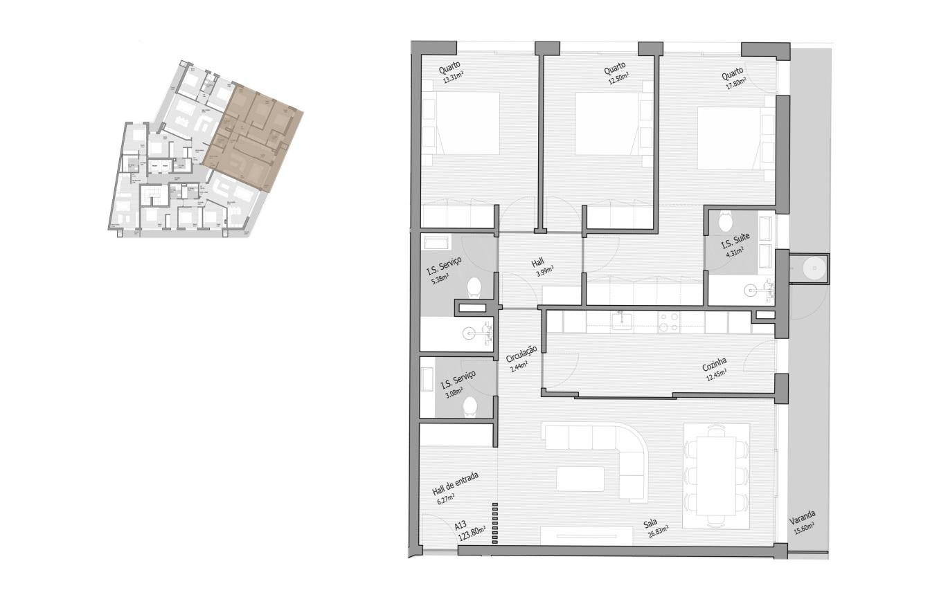
Área Útil: 124m2
Área Bruta: 139m2
Ano de Construção: 2028
Certificação Energética: B
Estado: Em Construção

Descrição do anúncio

T3 novo com exposição Sul, varanda e garagem no centro da Trofa
Uma fração orientada para quem valoriza luminosidade e área interior: 123,80 m² no interior, complementados por 15,60 m² de varanda, numa exposição Sul que acrescenta conforto e luz natural ao longo do dia.

A distribuição foi pensada para um uso familiar prolongado, com separação clara entre zona social e zona privada — ideal para famílias que querem comprar para ficar, para quem precisa de um espaço dedicado a teletrabalho ou para quem procura um T3 com organização e privacidade.

Em construção com padrão atual de conforto e eficiência: caixilharia com vidro duplo e corte térmico, estores elétricos, pré-instalação de ar condicionado, pré-instalação para painéis solares e AQS por bomba de calor. A cozinha é entregue equipada com eletrodomésticos essenciais e o edifício dispõe de elevador.

Inclui lugar em garagem com área afeta 27,05 m². No centro da Trofa, com comércio, serviços e escolas por perto e acessos rápidos à A3 / A4 / N14, esta é uma proposta forte para habitação própria, com excelente leitura de valorização.

Conclusão prevista até final de 2028, com pagamento faseado por marcos de obra: 15% CPCV + 15% início obra + 15% fim estrutura + 15% fim especialidades + 40% escritura.
#128073; Peça já a planta e a disponibilidade por piso/orientação, e agende a sua visita/briefing privado para assegurar a melhor combinação de piso e exposição.

Características Gerais

  • Ar Condicionado
  • Cozinha Equipada
  • Guarda Roupa
  • Varandas

Galeria do imóvel

T3 Sul com garagem e varanda – Trofa
T3 Sul com garagem e varanda – Trofa
T3 Sul com garagem e varanda – Trofa
T3 Sul com garagem e varanda – Trofa
T3 Sul com garagem e varanda – Trofa
T3 Sul com garagem e varanda – Trofa

Localização do imóvel

Porto, Trofa, Bougado (São Martinho e Santiago)

Referência do anúncio: 230303 - T3B. Última atualização: 16 fevereiro 2026.

Relatório de preços praticados nos últimos 8 meses

Porto, Trofa, Bougado (São Martinho e Santiago)

Simule um Crédito Habitação

Os dados apresentados são meramente indicativos. Condições gerais
Seguir
Partilhar
INSTAIMÓVEL - MEDIAÇÃO IMOBILIÁRIA, LDA
AMI 15297
252 ...
Chamada para a rede fixa nacional
Mostrar número
Nome
Email
Contacto
Formato inválido
Agende uma visita
Referência do anúncio: 230303 - T3B.
Última atualização: 16 fevereiro 2026.
Contactar
Veja também
Anúncios na mesma zona
Apartamento duplex T3 totalmente remodelado. - Boavista
Porto, Porto, Lordelo do Ouro e Massarelos
480 000 €
3
2
Apartamento T1 Venda em Vila do Conde,Vila do Conde
Porto, Vila do Conde, Vila do Conde
Sob consulta
1
1
Apartamento T3 Venda em Canidelo,Vila Nova de Gaia
Porto, Vila Nova de Gaia, Canidelo
750 000 €
3
3
1
T2 c/ garagem no centro do Porto
Porto, Porto, Paranhos
528 000 €
2
1
Apartamento T4 Novo | Vistas Panorâmicas Mar e Rio
Porto, Vila Nova de Gaia, Madalena
630 000 €
4
3
Apartamento T1 Venda em Vila do Conde,Vila do Conde
Porto, Vila do Conde, Vila do Conde
Sob consulta
1
1
T2 em Leça da Palmeira
Porto, Matosinhos, Matosinhos e Leça da Palmeira
275 000 €
2
2
Apartamento T1+1 com varanda
Porto, Porto, Cedofeita, Santo Ildefonso, Sé, Miragaia, São Nicolau e Vitória
514 000 €
1
2
Apartamento T2 novo, com terraço e piscina.
Porto, Vila Nova de Gaia, Madalena
675 000 €
2
2
Apartamento T4 Venda em Canidelo,Vila Nova de Gaia
Porto, Vila Nova de Gaia, Canidelo
830 000 €
4
3
1
Partilha o imóvel: T3 Sul com garagem e varanda – Trofa
Partilha este imóvel nas tuas redes sociais ou envia diretamente para o email dos teus amigos.
Partilhar por email
Adicione uma nota ao imóvel!
Só você é que vê as notas que adiciona. Os imóveis com notas ficam nos favoritos para os poder consultar mais tarde.
Excluíste o anúncio:
T3 Sul com garagem e varanda – Trofa