Pesquisar perto de mim
A aguardar a sua pesquisa
Voltar
T3 em frente ao mar
T3 em frente ao mar
T3 em frente ao mar
T3 em frente ao mar
Ver galeria (17)
Ver galeria (17)
Seguir
Partilhar

T3 em frente ao mar

Porto, Vila Nova de Gaia, Canidelo Ver no mapa
750 000 €
3 Quartos
3 WC's
127m2
Área Útil: 127m2
Área Bruta: 190m2
Ano de Construção: 2023
Certificação Energética: A
Estado: Em Construção

Descrição do anúncio

T3 de luxo primeira linha de mar no Canidelo em Gaia
Situado na Marginal de Canidelo, junto à Reserva Natural Local do Estuário do Douro.
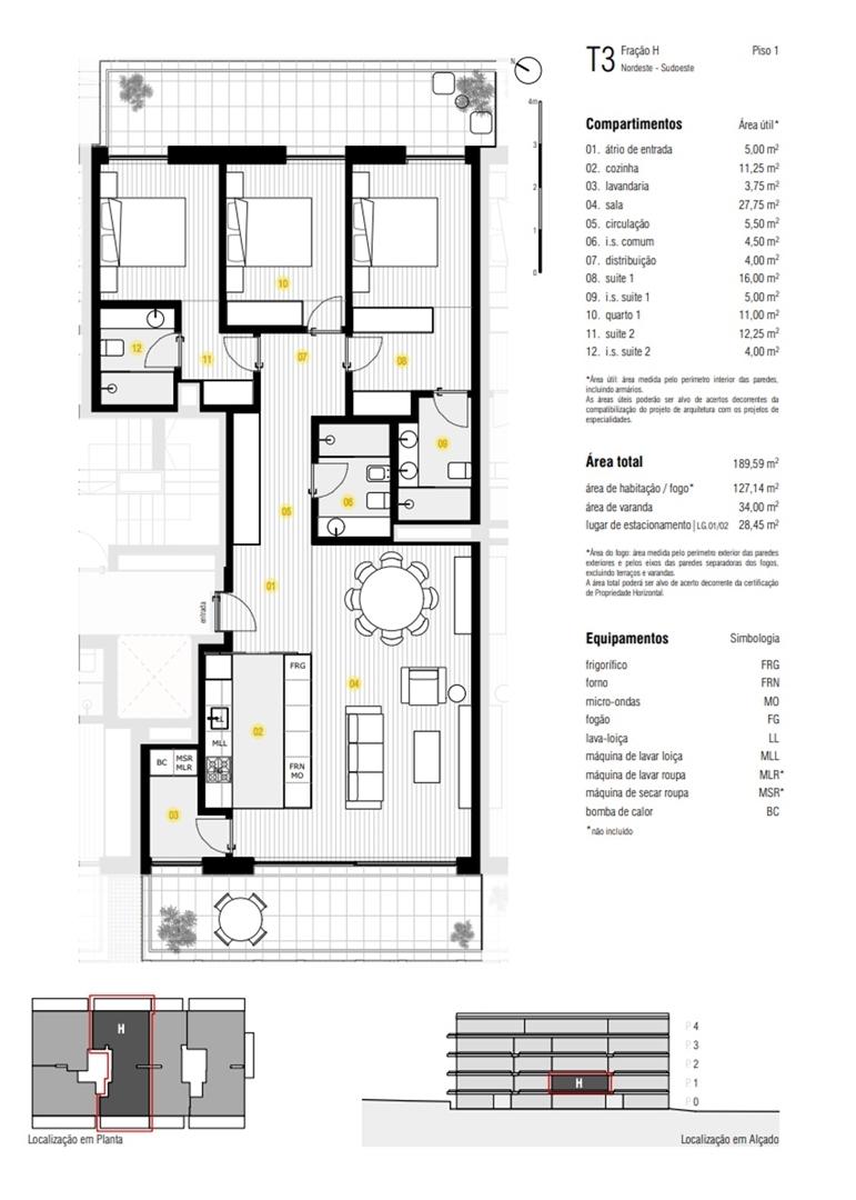
Apartamento, orientado a nordeste/sudoeste, no 1º piso, com uma área útil de 127, 14m2, e 34m2 para duas varandas, beneficiando todas as divisões de vista mar e rio e uma luz ímpar; tem ainda dois lugares de garagem (28,45m2) no piso -1.
O hall de entrada 5m2, acede a uma simpática sala de 27.75m2 com varanda. Liga também à parte dos serviços com a cozinha equipada (11,25 m2) e lavandaria (3,75m2) com usufruto da varanda.
Para o lado dos quartos um outro hall de 5.5m2, com acesso a um wc (4.5m2) de visitas e apoio ao quarto (11m2); seguem-se as duas suites (16m2 + 5m2 de wc e 12.25m2 + 4m2 de wc); todos os quartos usufruem da varanda.
Integrado no empreendimento Douro Atlântico II; ainda em construção tem previsão de entrega em outubro 2024.

É um projeto que se destaca pela sua arquitetura moderna e pela excelente localização, colocando o Rio e o Mar numa só paisagem. Distinguido pela atenção a cada detalhe, o interior dos apartamentos beneficia da luz natural, de um ótimo isolamento acústico e térmico e de amplos espaços que se estendem em varandas espaçosas e requintadas. Os apartamentos do Douro Atlântico II têm tudo o que precisa para uma vivência de qualidade, como sempre sonhou.
Com uma excelente qualidade de construção e um nível de acabamentos superior, tendo atenção aos detalhes que lhe proporcionam um ambiente confortável, sofisticado e moderno.

As vistas para o rio e para o mar conferem a todos os apartamentos a tranquilidade, bem-estar e privacidade tão desejadas. De frente para a nascente do Rio Douro e para o Oceano Atlântico, o Douro Atlântico está situado num dos sítios mais emblemáticos do Porto: a marginal de Vila Nova de Gaia.

A excelente localização deste empreendimento coloca os serviços e os acessos ainda mais perto. Conheça algumas das regalias de morar na maior cidade do Norte de Portugal: Cais de Gaia, vários bares, Arrábida e Gaia Shopping, Caves de Vinho do Porto, WOW, Antiga Seca do Bacalhau, Parque de S. Paio e Parque de Lavadores.

Características Gerais

  • Ar Condicionado
  • Cozinha Equipada
  • Garagem
  • Guarda Roupa
  • Varandas

Galeria do imóvel

T3 em frente ao mar
T3 em frente ao mar
T3 em frente ao mar
T3 em frente ao mar
T3 em frente ao mar
T3 em frente ao mar

Localização do imóvel

Porto, Vila Nova de Gaia, Canidelo

Referência do anúncio: R21386. Última atualização: 16 dezembro 2023.

Relatório de preços praticados nos últimos 8 meses

Porto, Vila Nova de Gaia, Canidelo

Simule um Crédito Habitação

Os dados apresentados são meramente indicativos. Condições gerais
Seguir
Partilhar
PINTO LEITE & MACHADO VAZ - MEDIAÇÃO IMOBILIÁRIA, LDA
AMI 19489
351 ...
Chamada para a rede fixa nacional
Mostrar número
Nome
Email
Contacto
Formato inválido
Agende uma visita
Referência do anúncio: R21386.
Última atualização: 16 dezembro 2023.
Contactar
Veja também
Anúncios na mesma zona
Apartamento T3 com varanda na Foz
Porto, Porto, Aldoar, Foz do Douro e Nevogilde
1 000 000 €
3
3
Apartamento T2 Venda em Póvoa de Varzim, Beiriz e Argivai,Póvoa de Varzim
Porto, Póvoa de Varzim, Póvoa de Varzim, Beiriz e Argivai
Sob consulta
2
1
Apartamento T2 em Serralves.
Porto, Porto, Lordelo do Ouro e Massarelos
434 000 €
2
2
1
T3 como Novo c/ 170m2 Junto ao Centro da Póvoa de Varzim
Porto, Póvoa de Varzim, Póvoa de Varzim, Beiriz e Argivai
490 000 €
3
3
T3 exclusivo na boavista: conforto e localização imbatíveis
Porto, Porto, Cedofeita, Santo Ildefonso, Sé, Miragaia, São Nicolau e Vitória
580 000 €
3
3
Apartamento T3 com varanda em Matosinhos Sul
Porto, Matosinhos, Matosinhos e Leça da Palmeira
875 000 €
3
2
Apartamento T4, de Luxo em Construção, Matosinhos Sul
Porto, Matosinhos, Matosinhos e Leça da Palmeira
90 000 €
4
1
1
Apartamento T3 em Matosinhos, junto ao metro, pronto a habitar.
Porto, Matosinhos, Matosinhos e Leça da Palmeira
440 000 €
3
2
1
Apartamento T1, Mobilado e Equipado, Próximo ao Mercado Matosinhos
Porto, Matosinhos, Matosinhos e Leça da Palmeira
260 000 €
1
1
1
Apartamento T0 de luxo em Matosinhos com 33m2 e varanda de 21m2
Porto, Matosinhos, Matosinhos e Leça da Palmeira
245 000 €
1
1
Partilha o imóvel: T3 em frente ao mar
Partilha este imóvel nas tuas redes sociais ou envia diretamente para o email dos teus amigos.
Partilhar por email
Adicione uma nota ao imóvel!
Só você é que vê as notas que adiciona. Os imóveis com notas ficam nos favoritos para os poder consultar mais tarde.
Excluíste o anúncio:
T3 em frente ao mar