Pesquisar perto de mim
A aguardar a sua pesquisa
Voltar
T3, elegância contemporânea a estrear no coração de cascais
T3, elegância contemporânea a estrear no coração de cascais
T3, elegância contemporânea a estrear no coração de cascais
T3, elegância contemporânea a estrear no coração de cascais
Ver galeria (35)
Ver galeria (35)
Seguir
Partilhar

T3, elegância contemporânea a estrear no coração de cascais

Lisboa, Cascais, Cascais e Estoril Ver no mapa
1 250 000 €
3 Quartos
3 WC's
156,5m2
Área Útil: 156,5m2
Área Bruta: 220,83m2
Ano de Construção: 2025
Certificação Energética: A+
Estado: Novo

Descrição do anúncio

No centro vibrante de Cascais, nasce um edifício singular, com apenas um apartamento por piso, que combina arquitetura contemporânea, materiais de excelência e um design pensado para o bem-estar.
Com painéis solares, varandas e terraços com vistas tranquilizantes e uma exposição solar perfeita, cada detalhe foi concebido para oferecer conforto, elegância e serenidade.
Situado a poucos passos das praias, da marina, dos campos de golf, do centro histórico e estação ferroviária CP, dos jardins, do comércio local, da vida cultural e gastronómica que fazem da Vila de Cascais um dos destinos mais elegantes e desejados de Portugal.
O acesso rápido à A5 ou à Marginal para a ligação rodoviária à Lisboa e ao aeroporto, completa este privilégio.
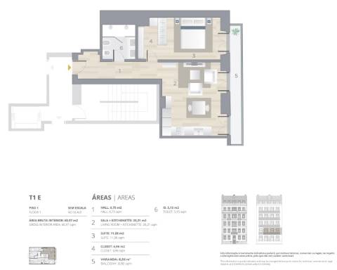
A fração T3 disponível no 2º andar, com 220,83m2 de área total, conta com:- varanda de 11 m2 com acesso pela sala e outra varanda de 11 m2 com acesso pelos quarto- sala com 36 m2- cozinha com 12 m2 equipada com eletrodomésticos encastráveis SMEG incluindo refrigerador para vinhos;- 2 suítes com 22 m2 e 23 m2 e 1 quarto com 21 m2;- 3 casas de banho com revestimento Porcelanosa;- ar condicionado Mitsubishi;- 1 grande arrecadação ou espaço multiuso com 25 m2 e luz natural;- 3 estacionamentos, sendo 2 em garagem + 1 parqueamento
Uma oportunidade única para viver ou investir no melhor que Cascais tem para oferecer — entre o charme do Atlântico e a tranquilidade de um estilo de vida exclusivo. 
Para informações de outras tipologias disponíveis no edifício, não hesite em contactar.
Informações e visitas:
Margarida TavaresConsultora Prime / Real Estate AdvisorTel & Wpp: +351 914 710 [email protected]
Mais soluções imobiliárias em:www.predimed.pt/margarida.tavares



Predimed Imobiliária, Mediação Imobiliária, Lda.
Avenida Brasil 43, 12º Andar, 1700-062 Lisboa
Licença AMI nº 22503
Pessoa Coletiva nº 517 239 345
Seguro Responsabilidade Civil: Nº de Apólice RC65379424 Fidelidade

Características Gerais

  • Ar Condicionado
  • Video Porteiro
  • Cozinha Equipada
  • Garagem
  • Elevador
  • Arrumos
  • Terraço
  • Guarda Roupa
  • Varandas
  • Nº de Estacionamentos 3

Galeria do imóvel

T3, elegância contemporânea a estrear no coração de cascais
T3, elegância contemporânea a estrear no coração de cascais
T3, elegância contemporânea a estrear no coração de cascais
T3, elegância contemporânea a estrear no coração de cascais
T3, elegância contemporânea a estrear no coração de cascais
T3, elegância contemporânea a estrear no coração de cascais

Localização do imóvel

Lisboa, Cascais, Cascais e Estoril

Referência do anúncio: 056083. Última atualização: 31 outubro 2025.

Relatório de preços praticados nos últimos 8 meses

Lisboa, Cascais, Cascais e Estoril

Simule um Crédito Habitação

Os dados apresentados são meramente indicativos. Condições gerais
Seguir
Partilhar
Predimed Imobiliaria Mediacao Imobiliaria Lda
AMI 22503
Nome
Email
Contacto
Formato inválido
Agende uma visita
Referência do anúncio: 056083.
Última atualização: 31 outubro 2025.
Contactar
Veja também
Anúncios na mesma zona
Apartamento T1 em condominio exclusivo em zona privilegiada em Lisboa
Lisboa, Lisboa, Campo de Ourique
515 000 €
1
2
Apartamento T3 em Benfica, mobilado e com varanda
Lisboa, Lisboa, Benfica
529 900 €
3
2
Apartamento T3 no Centro de Lisboa
Lisboa, Lisboa, Estrela
1 450 000 €
3
2
Apartamento no Parque das Nações
Lisboa, Lisboa, Parque das Nações
3 000 000 €
3
4
Apartamento no empreendimento RESIDENCE 45
Lisboa, Lisboa, Estrela
420 000 €
1
Apartamento T2 + 1 junto às Amoreiras
Lisboa, Lisboa, Campolide
850 000 €
2
2
Apartamento T2+1 na Estrela
Lisboa, Lisboa, Campo de Ourique
985 000 €
2
3
Apartamento T3 em Alcântara
Lisboa, Lisboa, Belém
2 500 000 €
3
Apartamento T2+1 na Estrela
Lisboa, Lisboa, Estrela
845 000 €
2
3
Apartamento T1 em condominio exclusivo em zona privilegiada em Lisboa
Lisboa, Lisboa, Campo de Ourique
535 000 €
1
2
Partilha o imóvel: T3, elegância contemporânea a estrear no coração de cascais
Partilha este imóvel nas tuas redes sociais ou envia diretamente para o email dos teus amigos.
Partilhar por email
Adicione uma nota ao imóvel!
Só você é que vê as notas que adiciona. Os imóveis com notas ficam nos favoritos para os poder consultar mais tarde.
Excluíste o anúncio:
T3, elegância contemporânea a estrear no coração de cascais