Pesquisar perto de mim
A aguardar a sua pesquisa
Voltar
T3 Duplex – Residencial 555
T3 Duplex – Residencial 555
T3 Duplex – Residencial 555
T3 Duplex – Residencial 555
Ver galeria (7)
Ver galeria (7)
Seguir
Partilhar

T3 Duplex – Residencial 555

Porto, Porto, Bonfim Ver no mapa
390 000 €
3 Quartos
3 WC's
90m2
Área Útil: 90m2
Área Bruta: 90m2
Certificação Energética: A+
Estado: Em Construção

Descrição do anúncio

T3 Duplex – Residencial 555

Exclusivo apartamento, integrado no moderno Residencial 555, um empreendimento que combina conforto, qualidade e localização privilegiada.

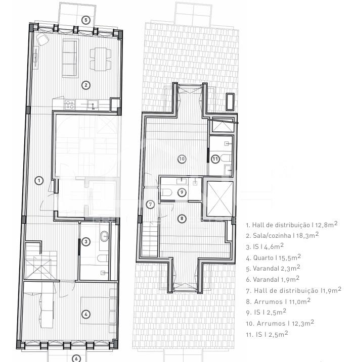
Distribuição do Apartamento

Piso 1:

Sala ampla e luminosa em open space com a cozinha, criando um ambiente moderno e funcional

1 quarto com excelente exposição solar

1 casa de banho completa

Piso 2:

2 suítes espaçosas, cada uma com a sua casa de banho privativa, oferecendo privacidade e conforto


Com duas frentes, este duplex garante ótima luminosidade natural ao longo do dia e uma vivência agradável em todas as divisões.

Conforto e Qualidade

O apartamento está equipado com:

Ar condicionado Bosch (ou equivalente) na sala e quartos

Cozinha equipada com eletrodomésticos Bosch ou similar (placa, forno e exaustor), tampos em compact quartz e lava-loiça Teka

Isolamento térmico e acústico de elevada qualidade

Pré-instalação de blackout elétrico em todas as divisões

Pavimento flutuante AC5 nas zonas sociais e quartos e grés porcelânico nas instalações sanitárias

O Edifício

O Residencial 555 distingue-se pela sua construção moderna e acabamentos de excelência:

Elevador elétrico silencioso, classe A

Portas de entrada com fechadura de segurança de 3 pontos e sistema eletrónico

Videoporteiro a cores com ligação a smartphone

Estrutura robusta em betão armado, dimensionada para resistência a vento e sismos

Localização de Excelência

Situado numa zona central e bem servida, o empreendimento conta com ótima rede de transportes públicos (autocarro a 100m e Metro a 700m) e uma envolvente repleta de comércio e serviços.
Pontos de interesse nas proximidades:

EB1 Fernão de Magalhães (280m)

Parque Paulo Vallada (290m)

Piscinas Municipais de Campanhã (750m)

Parque de São Roque (950m)

Estação de Campanhã (1300m)

Este T3 Duplex no Residencial 555 é a opção ideal para quem procura um lar moderno, espaçoso e confortável, com acabamentos de qualidade e uma localização privilegiada.

Porquê comprar com a ELEVE?

A ELEVE REAL ESTATE é uma empresa de mediação imobiliária, criada com o objetivo de prestar serviços de qualidade e excelência, no aconselhamento das melhores soluções imobiliárias para os nossos clientes, que consiste numa análise seletiva dos imóveis que comercializamos.

A ELEVE REAL ESTATE é uma marca de confiança focada na simplificação do processo de transação imobiliária, traduzindo-se numa experiência simples, transparente e eficiente.

Conta com uma equipa experiente, cujo objetivo principal é a satisfação e a fidelização dos nossos clientes.

Como para nós o importante são as pessoas, a ELEVE REAL ESTATE eleva os teus sonhos.

Características Gerais

  • Ar Condicionado
  • Cozinha Equipada
  • Garagem
  • Jardim
  • Estacionamento
  • Guarda Roupa
  • Varandas
  • Duplex

Galeria do imóvel

T3 Duplex – Residencial 555
T3 Duplex – Residencial 555
T3 Duplex – Residencial 555
T3 Duplex – Residencial 555
T3 Duplex – Residencial 555
T3 Duplex – Residencial 555

Localização do imóvel

Porto, Porto, Bonfim

Referência do anúncio: ELV517. Última atualização: 10 setembro 2025.

Relatório de preços praticados nos últimos 8 meses

Porto, Porto, Bonfim

Simule um Crédito Habitação

Os dados apresentados são meramente indicativos. Condições gerais
Seguir
Partilhar
Andreia Marques dos Santos
AMI 21921
225 ...
Chamada para a rede fixa nacional
Mostrar número
Nome
Email
Contacto
Formato inválido
Agende uma visita
Referência do anúncio: ELV517.
Última atualização: 10 setembro 2025.
Contactar
Veja também
Anúncios na mesma zona
Apartamento T3 Venda em Cedofeita, Santo Ildefonso, Sé, Miragaia, São Nicolau e Vitória,Porto
Porto, Porto, Cedofeita, Santo Ildefonso, Sé, Miragaia, São Nicolau e Vitória
1 183 000 €
3
3
1
Apartamento T1 Venda em Cedofeita, Santo Ildefonso, Sé, Miragaia, São Nicolau e Vitória,Porto
Porto, Porto, Cedofeita, Santo Ildefonso, Sé, Miragaia, São Nicolau e Vitória
390 000 €
1
1
1
Apartamento T3+1 Venda em Mafamude e Vilar do Paraíso,Vila Nova de Gaia
Porto, Vila Nova de Gaia, Mafamude e Vilar do Paraíso
581 630 €
1
Apartamento T1 com Varanda em Canidelo no Arrábida Green Avenue
Porto, Vila Nova de Gaia, Canidelo
260 000 €
1
1
1
Apartamento T2 Venda em Bonfim,Porto
Porto, Porto, Bonfim
360 000 €
2
1
Apartamento T1+1 em Condomínio Fechado na Asprela
Porto, Porto, Paranhos
265 000 €
1
2
1
Apartamento T2 em Paranhos
Porto, Porto, Bonfim
315 000 €
2
2
Apartamento T1 Venda em Cedofeita, Santo Ildefonso, Sé, Miragaia, São Nicolau e Vitória,Porto
Porto, Porto, Cedofeita, Santo Ildefonso, Sé, Miragaia, São Nicolau e Vitória
290 000 €
1
1
1
T3 Novo com L. de Garagem e Varanda
Porto, Gondomar, Fânzeres e São Pedro da Cova
222 500 €
2
2
Apartamento T0 DUPLEX Venda em Paranhos,Porto
Porto, Porto, Paranhos
215 000 €
1
Partilha o imóvel: T3 Duplex – Residencial 555
Partilha este imóvel nas tuas redes sociais ou envia diretamente para o email dos teus amigos.
Partilhar por email
Adicione uma nota ao imóvel!
Só você é que vê as notas que adiciona. Os imóveis com notas ficam nos favoritos para os poder consultar mais tarde.
Excluíste o anúncio:
T3 Duplex – Residencial 555