Pesquisar perto de mim
A aguardar a sua pesquisa
Voltar
T2, segunda linha de monte gordo, vista mar, praia a 100m
T2, segunda linha de monte gordo, vista mar, praia a 100m
T2, segunda linha de monte gordo, vista mar, praia a 100m
T2, segunda linha de monte gordo, vista mar, praia a 100m
Ver galeria (10)
Ver galeria (10)
Seguir
Partilhar

T2, segunda linha de monte gordo, vista mar, praia a 100m

Faro, Vila Real de Santo António, Monte Gordo Ver no mapa
500 000 €
2 Quartos
1 WC's
60m2
Área Útil: 60m2
Área Bruta: 89m2
Ano de Construção: 2026
Certificação Energética: A
Estado: Em Construção

Descrição do anúncio

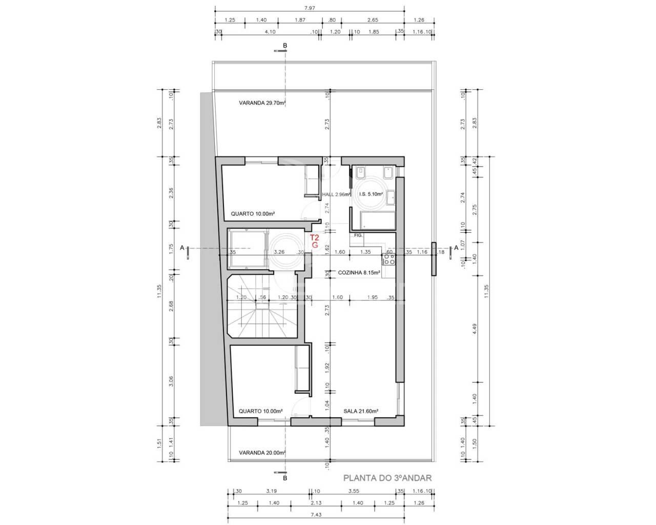
T2 em Monte Gordo, no Edifício Mar, em Monte Gordo, na segunda linha a contar da praia, com vista de mar lateral a partir da varanda, e a cerca de 100 metros da praia. Esta é a fracção G, com 89 m2 de área bruta e 60 m2 de área útil e ainda com uma enorme varanda com 50m2. Situa-se no terceiro andar com elevador e está virada a sul, a nascente e a norte e é composto por uma sala com cozinha integrada, dois quartos e uma casa de banho. Em termos de características de construção, o Edifício Mar vai contar com Caixilharia em alumínio com corte térmico, estores eléctricos, pré-instalação de ar condicionado, instalações sanitárias com sanita, bidé e lavatório suspensos, Paineis solares para água quente e cozinha equipada com placa vitrocerâmica, forno, exaustor, frigorífico e máquina de lavar roupa ou máquina de lavar loiça.Trata-se de uma excelente oportunidade para uma casa de férias ou para investimento.


Predimed Imobiliária, Mediação Imobiliária, Lda.
Avenida Brasil 43, 12º Andar, 1700-062 Lisboa
Licença AMI nº 22503
Pessoa Coletiva nº 517 239 345
Seguro Responsabilidade Civil: Nº de Apólice RC65379424 Fidelidade

Características Gerais

  • Elevador

Galeria do imóvel

T2, segunda linha de monte gordo, vista mar, praia a 100m
T2, segunda linha de monte gordo, vista mar, praia a 100m
T2, segunda linha de monte gordo, vista mar, praia a 100m
T2, segunda linha de monte gordo, vista mar, praia a 100m
T2, segunda linha de monte gordo, vista mar, praia a 100m
T2, segunda linha de monte gordo, vista mar, praia a 100m

Localização do imóvel

Faro, Vila Real de Santo António, Monte Gordo

Referência do anúncio: 054062. Última atualização: 13 março 2026.

Relatório de preços praticados nos últimos 8 meses

Faro, Vila Real de Santo António, Monte Gordo

Simule um Crédito Habitação

Os dados apresentados são meramente indicativos. Condições gerais
Seguir
Partilhar
Predimed Imobiliaria Mediacao Imobiliaria Lda
AMI 22503
Nome
Email
Contacto
Formato inválido
Agende uma visita
Referência do anúncio: 054062.
Última atualização: 13 março 2026.
Contactar
Veja também
Anúncios na mesma zona
75 apartamentos T2 e T3 num cenário natural perto do centro de Benahavís.
Faro, Vila Real de Santo António, Vila Real de Santo António
249 000 €
3
2
Apartamento T3 junto da praia.
Faro, Vila Real de Santo António, Vila Real de Santo António
490 000 €
3
2
Apartamento T1+2 com jardim inserido em prestigiado Resort
Faro, Lagoa (Algarve), Estômbar e Parchal
455 000 €
1
2
Apartamentos T3 Duplex, desde 2.200.000€, no empreendimento LUMARE, edifício WAVE - ALGARVE
Faro, Loulé, Quarteira
2 200 000 €
3
4
1
Condomínio privado em lagos perto da praia com piscina
Faro, Lagos, Lagos (São Sebastião e Santa Maria)
575 000 €
2
2
Apartamento T3 novo, perto da praia.
Faro, Vila Real de Santo António, Vila Real de Santo António
299 000 €
3
2
Algarve - Apartamentos de luxo, amplos, com muita luz, frente ao mar - Um produto promovido por Casas do Sotavento
Faro, Faro, Conceição e Estoi
720 000 €
2
2
Apartamentos T2, desde 975.000€, no empreendimento LUMARE, edifício WAVE - Quarteira, ALGARVE
Faro, Loulé, Quarteira
975 000 €
2
3
LAR Bay - O mar em sua casa
Faro, Vila Real de Santo António, Vila Real de Santo António
318 000 €
3
2
Apartamento T3 duplex novo, perto da praia.
Faro, Vila Real de Santo António, Vila Real de Santo António
389 000 €
3
2
Partilha o imóvel: T2, segunda linha de monte gordo, vista mar, praia a 100m
Partilha este imóvel nas tuas redes sociais ou envia diretamente para o email dos teus amigos.
Partilhar por email
Adicione uma nota ao imóvel!
Só você é que vê as notas que adiciona. Os imóveis com notas ficam nos favoritos para os poder consultar mais tarde.
Excluíste o anúncio:
T2, segunda linha de monte gordo, vista mar, praia a 100m