Pesquisar perto de mim
A aguardar a sua pesquisa
Voltar
T2 - NOVO - ao Parque do Covelo - Centro do Porto!
T2 - NOVO - ao Parque do Covelo - Centro do Porto!
T2 - NOVO - ao Parque do Covelo - Centro do Porto!
T2 - NOVO - ao Parque do Covelo - Centro do Porto!
Ver galeria (16)
Ver galeria (16)
Seguir
Partilhar

T2 - NOVO - ao Parque do Covelo - Centro do Porto!

Porto, Porto, Paranhos Ver no mapa
375 000 €
2 Quartos
2 WC's
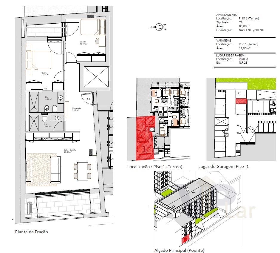
80m2
Área Útil: 80m2
Área Bruta: 84m2
Ano de Construção: 2026
Certificação Energética: A
Estado: Novo

Descrição do anúncio

T2 - NOVO - ao Parque do Covelo - Centro do Porto!

Refª.: 3268

Apartamento NOVO, inserido em condomínio residencial composto por 3 edifícios modernos, localizado junto à Quinta do Covelo, na freguesia de Paranhos, no Porto.

Condomínio composto por apartamentos de tipologia T1 e T2, que beneficiarão da tranquilidade de estar junto ao parque do Covelo, mas ao mesmo tempo a poucos passos da movimentada Rua de Faria Guimarães e centro do Porto.

Empreendimento em fase inicial de construção, com previsibilidade de conclusão a março de 2026.

Situado numa zona residencial, a dois passos da Avenida dos Combatentes, do Marquês / Constituição e do Polo Universitário.
Muito bem servida de transportes públicos (autocarros e metro – Marquês, Combatentes e Salgueiros), o que potencializa a sua constante valorização.

MAPA DE ACABAMENTOS
PAVIMENTOS
Zonas secas: soalho flutuante Swiss Krono ou equivalente
Zonas húmidas: mosaico porcelânicoPAREDES
Zonas secas: gesso cartonado pintado
Zonas húmidas:– Cozinha: aglomerado de mármore compacto no tampo e entre móveis
– WC: mosaico porcelânico e gesso cartonado pintado

TECTOS
Zonas secas: tetos falsos em gesso cartonado; — Zonas húmidas: tetos falsos em gesso cartonado hidrófugoISOLAMENTOS entre FRAÇÕES
Paredes entre habitações contíguas em bloco térmico
Placas de gesso cartonado e isolamentoCARPINTARIAS
Portas e armários: MDF Lacado
Cozinhas: MDF LacadoINSTALAÇÕES SANITÁRIAS
Louça sanitária suspensa Sanindusa ou equivalente
Lavatório de embutir Valadares ou equivalente e armário em MDF lacado
Duche em mosaico porcelânico e resguardo em vidro
Espelho
Torneiras misturadoras monocomando OFA ou equivalenteEQUIPAMENTOS DIVERSOS
Portas de segurança Portrisa ou equivalente.
Caixilharia de alumínio anodisado com vidro duplo e corte térmico
Eletrodomésticos Candy ou equivalente
Material elétrico de manobra da EFAPEL ou equivalente
Projetores de LED
Videoporteiro
Aquecimento das águas sanitárias por bomba de calor
Lava-louça em inox e misturadora monocomando OFA ou equivalente
Elevadores Orona ou equivalente
Pré-instalação de ar condicionado
Observações:

*Empreendimento em construção. Preços de lançamento. Já em venda!
Valores podem sofrer alterações. É necessário confirmação de disponibilidades e preços mediante avanço da obra. Consulte-nos.

* O mapa de acabamento apresentado é meramente indicativo, pode sofrer modificações decorrentes de alterações de projeto, determinadas pelo promotor, pela indisponibilidade de fornecimento ou termo de produção. No item climatização, apenas se encontra incluída a pré instalação do ar condicionado, devendo as restantes opções serem orçamentadas.
As eventuais substituições serão efetuadas respeitando os padrões de qualidade idênticos aos previstos e em concordância com o cliente.

* Imagens meramente ilustrativas.

O Parque do Covelo com cerca de 8 hectares resulta da antiga Quinta de Paranhos, comprada no século XX por um comerciante, José do Covelo, que lhe deu o nome atual. A quinta foi doada à CMP que gere o espaço disponível ao público.
Em 1987/88 a quinta foi recuperada a partir dum projeto do Arqt. Castro Calapes. O Parque Infantil é um projeto da arquiteta Célia Peralta. Acolhe ainda um centro de educação ambiental e um parque canino numa área delimitada com mobiliário urbano e algumas valências, que tornam a passagem dos animais e dos seus donos por este local muito agradável. 

 

Características Gerais

  • Cozinha Equipada
  • Garagem
  • Estacionamento
  • Varandas

Galeria do imóvel

T2 - NOVO - ao Parque do Covelo - Centro do Porto!
T2 - NOVO - ao Parque do Covelo - Centro do Porto!
T2 - NOVO - ao Parque do Covelo - Centro do Porto!
T2 - NOVO - ao Parque do Covelo - Centro do Porto!
T2 - NOVO - ao Parque do Covelo - Centro do Porto!
T2 - NOVO - ao Parque do Covelo - Centro do Porto!

Localização do imóvel

Porto, Porto, Paranhos

Referência do anúncio: 3268. Última atualização: 25 março 2026.

Relatório de preços praticados nos últimos 8 meses

Porto, Porto, Paranhos

Simule um Crédito Habitação

Os dados apresentados são meramente indicativos. Condições gerais
Seguir
Partilhar
Viplar - Sociedade De Mediação Imobiliária, Lda
AMI 11665
228 ...
Chamada para a rede fixa nacional
Mostrar número
Nome
Email
Contacto
Formato inválido
Agende uma visita
Referência do anúncio: 3268.
Última atualização: 25 março 2026.
Contactar
Veja também
Anúncios na mesma zona
São Brás Residences T3 No Porto
Porto, Porto, Cedofeita, Santo Ildefonso, Sé, Miragaia, São Nicolau e Vitória
530 450 €
3
3
Apartamento T3 junto ao centro de Gondomar
Porto, Gondomar, Gondomar (São Cosme), Valbom e Jovim
352 500 €
3
3
1
Apartamento T1 Venda em Póvoa de Varzim, Beiriz e Argivai,Póvoa de Varzim
Porto, Póvoa de Varzim, Póvoa de Varzim, Beiriz e Argivai
125 000 €
1
1
Apartamento T0 Venda em Santa Marinha e São Pedro da Afurada,Vila Nova de Gaia
Porto, Vila Nova de Gaia, Santa Marinha e São Pedro da Afurada
235 000 €
1
1
Apartamento T3 - Novo
Porto, Gondomar, Gondomar (São Cosme), Valbom e Jovim
360 000 €
3
3
1
Apartamento T3 - A 2 minutos do Rio Douro
Porto, Gondomar, Gondomar (São Cosme), Valbom e Jovim
352 500 €
3
3
1
T3 com 122.53 m2 e varanda, em condomínio de luxo, Matosinhos Sul
Porto, Matosinhos, Matosinhos e Leça da Palmeira
750 000 €
3
3
1
Apartamento T5 DUPLEX Venda em Santa Marinha e São Pedro da Afurada,Vila Nova de Gaia
Porto, Vila Nova de Gaia, Santa Marinha e São Pedro da Afurada
875 000 €
5
4
1
Apartamento T3 - a 5 minutos da cidade do Porto
Porto, Gondomar, Gondomar (São Cosme), Valbom e Jovim
360 000 €
3
3
1
Apartamento T2 Venda em Santa Marinha e São Pedro da Afurada,Vila Nova de Gaia
Porto, Vila Nova de Gaia, Santa Marinha e São Pedro da Afurada
370 000 €
2
2
1
Partilha o imóvel: T2 - NOVO - ao Parque do Covelo - Centro do Porto!
Partilha este imóvel nas tuas redes sociais ou envia diretamente para o email dos teus amigos.
Partilhar por email
Adicione uma nota ao imóvel!
Só você é que vê as notas que adiciona. Os imóveis com notas ficam nos favoritos para os poder consultar mais tarde.
Excluíste o anúncio:
T2 - NOVO - ao Parque do Covelo - Centro do Porto!