Pesquisar perto de mim
A aguardar a sua pesquisa
Voltar
T1 R/C Novo com parqueamento
T1 R/C Novo com parqueamento
T1 R/C Novo com parqueamento
T1 R/C Novo com parqueamento
Ver galeria (9)
Ver galeria (9)
Seguir
Partilhar

T1 R/C Novo com parqueamento

Setúbal, Montijo, Montijo e Afonsoeiro Ver no mapa
250 000 €
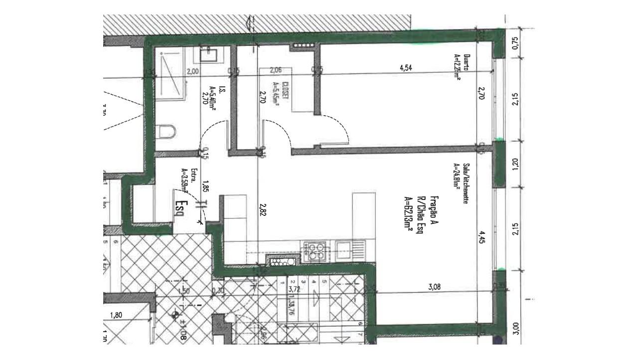
1 Quartos
1 WC's
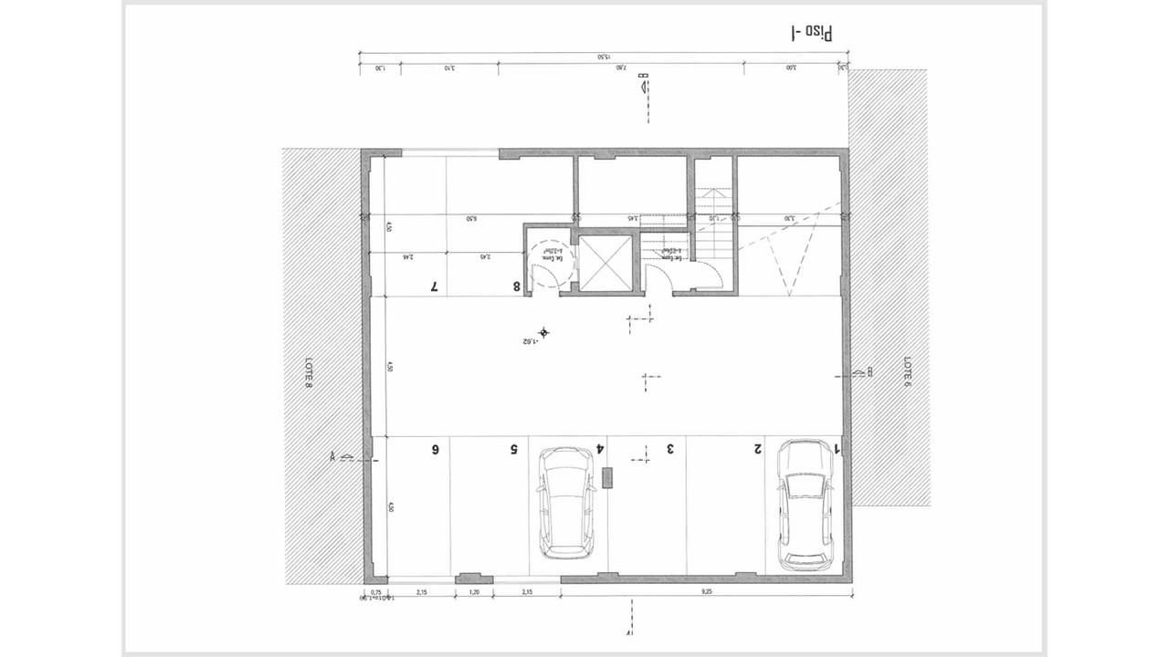
63m2
Área Útil: 63m2
Área Bruta: 75m2
Certificação Energética: A+

Descrição do anúncio

CE: A+
Cozinhas equipadas com eletrodomésticos encastrados da marca Bosch ou Siemens (máquina de lavar roupa, máquina de lavar louça, placa de indução, forno, micro-ondas, exaustor e frigorifico combinado),
- Cozinha com móveis com portas termolaminadas em branco com apontamentos beje,
- Bancada da cozinha e ilha/península com tampo em silestone com cor clara a definir,
- Painéis solares da marca Vulcano com termossifão e compensação com esquentador a gás, com depósito independente para cada fração,
- Ar condicionado nos quartos e sala, com splits individuais da marca LG ou similar,
- Janelas PVC com vidros duplos com controlo térmico de baixa emissividade,
- Porta de entrada do apartamento de alta segurança da marca 'Dierre' ou equivalente,
- Roupeiros com portas brancas termolaminadas e interior cor linho,
- Portas e rodapés cor branco,
- Pavimento vinílico cor beje nos quartos, sala e cozinha
- Paredes estucadas,
- Casas de banho com mosaico tipo 'terracota' ou similar, e revestimento nas paredes cerâmico,
- Louças sanitárias suspensas, móvel e espelho com iluminação, bases de duche extra-planas e torneiras cromadas, de marca a definir,
- Aspiração central,
- Guardas das varandas em vidro,
- Churrasqueira na varanda e um pequeno lava louça de apoio (só nos pisos a partir do 1º andar).
- Paredes duplas com isolamento 'Wallmate', interiormente estucadas e pintadas cor clara,

Intermediário de crédito vinculado - Registo Banco de Portugal nº 7695

Galeria do imóvel

T1 R/C Novo com parqueamento
T1 R/C Novo com parqueamento
T1 R/C Novo com parqueamento
T1 R/C Novo com parqueamento
T1 R/C Novo com parqueamento
T1 R/C Novo com parqueamento

Localização do imóvel

Setúbal, Montijo, Montijo e Afonsoeiro

Referência do anúncio: APA_293 (2). Última atualização: 07 outubro 2025.

Relatório de preços praticados nos últimos 8 meses

Setúbal, Montijo, Montijo e Afonsoeiro

Simule um Crédito Habitação

Os dados apresentados são meramente indicativos. Condições gerais
Seguir
Partilhar
Gazetacortes Lda
AMI 15447
Nome
Email
Contacto
Formato inválido
Agende uma visita
Referência do anúncio: APA_293 (2).
Última atualização: 07 outubro 2025.
Contactar
Veja também
Anúncios na mesma zona
Apartamento T4 DUPLEX Venda em Montijo e Afonsoeiro,Montijo
Setúbal, Montijo, Montijo e Afonsoeiro
845 000 €
4
1
Apartamento T2 totalmente remodelado e com mobílias na Baixa de Setúbal.
Setúbal, Setúbal, Setúbal (São Julião, Nossa Senhora da Anunciada e Santa Maria da Graça)
215 000 €
2
1
Duplex T2+2 - 3 Suites
Setúbal, Montijo, Montijo e Afonsoeiro
535 000 €
4
4
Duplex T2+2 Novo em construção.
Setúbal, Montijo, Montijo e Afonsoeiro
490 000 €
4
3
Magnífico estúdio em condomínio único - Comporta
Setúbal, Grândola, Grândola e Santa Margarida da Serra
280 000 €
1
Penthouse T4+1 Terraço Panorâmico
Setúbal, Montijo, Montijo e Afonsoeiro
650 000 €
4
2
Empreendimento ARCA DE NOÉ - T3 NOVO com terraço e parqueamento - Bairro Salgado(Setúbal)
Setúbal, Setúbal, Setúbal (São Julião, Nossa Senhora da Anunciada e Santa Maria da Graça)
480 000 €
3
2
Apartamento T3 Venda em Costa da Caparica,Almada
Setúbal, Almada, Costa da Caparica
550 000 €
3
1
Duplex T3+2 Terraço e Box 2 carros
Setúbal, Montijo, Montijo e Afonsoeiro
535 000 €
4
4
T3 renovado em Setúbal.
Setúbal, Setúbal, Setúbal (São Julião, Nossa Senhora da Anunciada e Santa Maria da Graça)
265 000 €
3
2
Partilha o imóvel: T1 R/C Novo com parqueamento
Partilha este imóvel nas tuas redes sociais ou envia diretamente para o email dos teus amigos.
Partilhar por email
Adicione uma nota ao imóvel!
Só você é que vê as notas que adiciona. Os imóveis com notas ficam nos favoritos para os poder consultar mais tarde.
Excluíste o anúncio:
T1 R/C Novo com parqueamento