Pesquisar perto de mim
A aguardar a sua pesquisa
Voltar
T1 num 1º andar, edifício em construção, central - fracção e
T1 num 1º andar, edifício em construção, central - fracção e
T1 num 1º andar, edifício em construção, central - fracção e
T1 num 1º andar, edifício em construção, central - fracção e
Ver galeria (27)
Ver galeria (27)
Seguir
Partilhar

T1 num 1º andar, edifício em construção, central - fracção e

Faro, Vila Real de Santo António, Vila Real de Santo António Ver no mapa
200 000 €
1 Quartos
1 WC's
41,24m2
Área Útil: 41,24m2
Área Bruta: 57,07m2
Certificação Energética: A
Estado: Em Construção

Descrição do anúncio

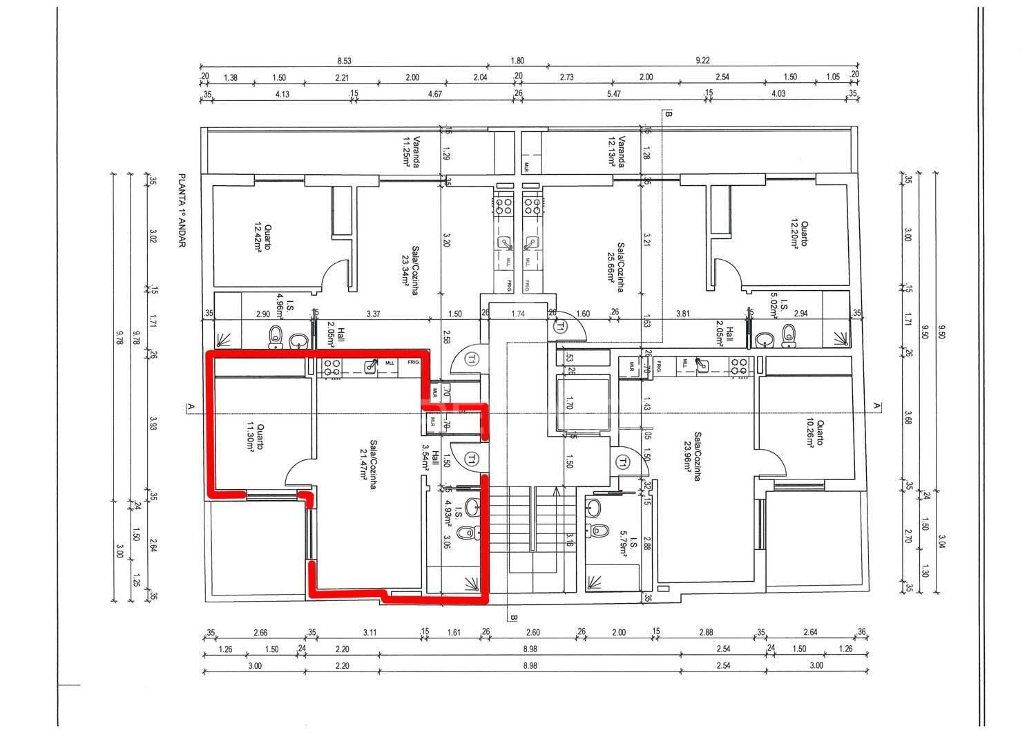
Aproveite esta excelente oportunidade de adquirir um apartamento T1 em planta, num edifício de localização central, que que está em fase inicial de construção e que estima-se estar pronto no prazo de 2 anos. Esta fração (E) está situada no primeiro andar do edifício e está virada a nascente, contando com uma área aproximada de 57 m2 de área bruta e 41 m2 de área útil. A sala conta com uma cozinha integrada toda equipada e o quarto inclui um roupeiro embutido.O edifício localiza-se perto do mercado municipal de Vila Real de Santo António e está a apenas cinco minutos a pé do centro histórico. A praia mais próxima está a cerca de 3 kms e a ponte para Espanha está a cerca de 5 kms. O aeroporto de Faro está a cerca de 50 minutos de distância e o aeroporto de Sevilha a cerca de 1h40m, ambos acessíveis por via rápida.As imagens 3D são apenas ilustrativas e correspondentes a várias fracções do edifício, estando sujeitas a possíveis alterações. 
Temos mais opções de apartamentos em edifícios em construção neste empreendimento e em outros, sujeito à disponibilidade a cada momento. Não hesite em contactar-nos para mais informações.


Predimed Imobiliária, Mediação Imobiliária, Lda.
Avenida Brasil 43, 12º Andar, 1700-062 Lisboa
Licença AMI nº 22503
Pessoa Coletiva nº 517 239 345
Seguro Responsabilidade Civil: Nº de Apólice RC65379424 Fidelidade

Características Gerais

  • Ar Condicionado
  • Cozinha Equipada
  • Elevador

Galeria do imóvel

T1 num 1º andar, edifício em construção, central - fracção e
T1 num 1º andar, edifício em construção, central - fracção e
T1 num 1º andar, edifício em construção, central - fracção e
T1 num 1º andar, edifício em construção, central - fracção e
T1 num 1º andar, edifício em construção, central - fracção e
T1 num 1º andar, edifício em construção, central - fracção e

Localização do imóvel

Faro, Vila Real de Santo António, Vila Real de Santo António

Referência do anúncio: 059433. Última atualização: 27 março 2026.

Relatório de preços praticados nos últimos 8 meses

Faro, Vila Real de Santo António, Vila Real de Santo António

Simule um Crédito Habitação

Os dados apresentados são meramente indicativos. Condições gerais
Seguir
Partilhar
Predimed Imobiliaria Mediacao Imobiliaria Lda
AMI 22503
Nome
Email
Contacto
Formato inválido
Agende uma visita
Referência do anúncio: 059433.
Última atualização: 27 março 2026.
Contactar
Veja também
Anúncios na mesma zona
Apartamento T2+1 em construção na Urb. Casas da Alcaria - Altura
Faro, Castro Marim, Altura
350 000 €
3
2
Apartamento T1, Faro, Faro
Faro, Faro, Faro (Sé e São Pedro)
255 000 €
1
2
1
Apartamento T2 Venda em Guia,Albufeira
Faro, Albufeira, Guia
637 000 €
2
2
1
T3 em olhão, novo, para férias e para investimento
Faro, Olhão, Olhão
560 000 €
3
2
Apartamento T3 com terraço privativo - em Construção - Fuseta - Olhão
Faro, Olhão, Moncarapacho e Fuseta
646 275 €
3
3
Apartamento T3 Venda em São Brás de Alportel,São Brás de Alportel
Faro, São Brás de Alportel, São Brás de Alportel
360 000 €
3
2
Apartamentos T2 Novo, com garagem e piscina em Olhão
Faro, Olhão, Quelfes
320 000 €
2
2
1
Apartamento T2 Venda em Quarteira,Loulé
Faro, Loulé, Quarteira
695 000 €
2
2
Apartamento T2 Novo, com garagem e piscina em Olhão
Faro, Olhão, Quelfes
370 000 €
2
2
1
Apartamento novo t2 em faro
Faro, Faro, Faro (Sé e São Pedro)
386 000 €
2
2
Partilha o imóvel: T1 num 1º andar, edifício em construção, central - fracção e
Partilha este imóvel nas tuas redes sociais ou envia diretamente para o email dos teus amigos.
Partilhar por email
Adicione uma nota ao imóvel!
Só você é que vê as notas que adiciona. Os imóveis com notas ficam nos favoritos para os poder consultar mais tarde.
Excluíste o anúncio:
T1 num 1º andar, edifício em construção, central - fracção e