Pesquisar perto de mim
A aguardar a sua pesquisa
Voltar
T1 leça de palmeira em contrução com terraço
T1 leça de palmeira em contrução com terraço
T1 leça de palmeira em contrução com terraço
T1 leça de palmeira em contrução com terraço
Ver galeria (38)
Ver galeria (38)
Seguir
Partilhar

T1 leça de palmeira em contrução com terraço

Porto, Matosinhos, Matosinhos e Leça da Palmeira Ver no mapa
334 650 €
1 Quartos
2 WC's
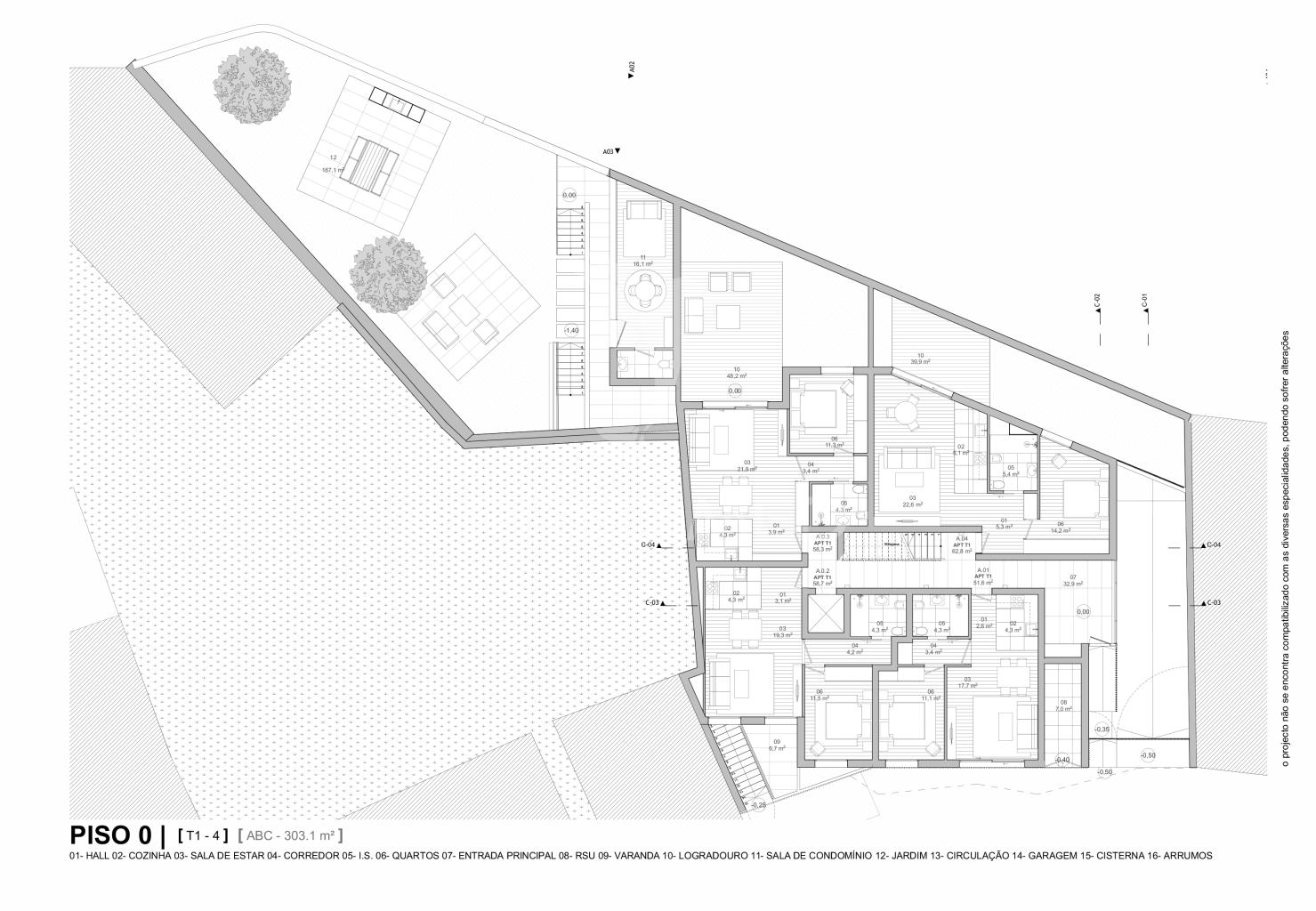
58m2
Área Útil: 58m2
Área Bruta: 121m2
Ano de Construção: 2025
Certificação Energética: A+
Estado: Em Construção

Descrição do anúncio

O projeto Las Palmeiras é um edifício residencial único, localizado no coração da zona mais desenvolvida de Leça da Palmeira.
O edifício é composto  em diferentes tipologias sendo T1/T2
O projeto é uma combinação de ótima localização, apartamentos modernos e acessibilidade.
Las Palmeiras proporciona uma experiência com mais requinte, numa mistura entre uma cidade moderna, em crescimento e um ambiente tranquilo e solarengo à da praia.

Leça da Palmeira é uma charmosa cidade no norte da cidade do Porto, com praias conhecidas, o famoso recinto de feiras internacional Exponor e um dos portos náuticos mais movimentados da Europa.
Há algumas centenas de anos, a sua população, na sua maioria rural, começou a fazer uso dos recursos hídricos em volta da cidade e iniciou a pesca e a construção naval.
Isso permitiu à cidade crescer exponencialmente, tornando-se mais tarde num resort para visitantes.

Empreendimento iniciou construção 2025 Prazo conclusão obra inicio 2027


Predimed Imobiliária, Mediação Imobiliária, Lda.
Avenida Brasil 43, 12º Andar, 1700-062 Lisboa
Licença AMI nº 22503
Pessoa Coletiva nº 517 239 345
Seguro Responsabilidade Civil: Nº de Apólice RC65379424 Fidelidade

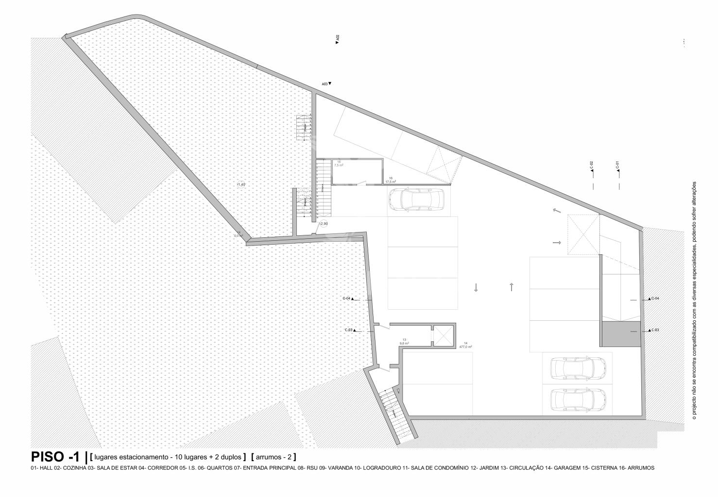
Características Gerais

  • Video Porteiro
  • Cozinha Equipada
  • Elevador
  • Guarda Roupa

Galeria do imóvel

T1 leça de palmeira em contrução com terraço
T1 leça de palmeira em contrução com terraço
T1 leça de palmeira em contrução com terraço
T1 leça de palmeira em contrução com terraço
T1 leça de palmeira em contrução com terraço
T1 leça de palmeira em contrução com terraço

Localização do imóvel

Porto, Matosinhos, Matosinhos e Leça da Palmeira

Referência do anúncio: 052502. Última atualização: 02 outubro 2025.

Relatório de preços praticados nos últimos 8 meses

Porto, Matosinhos, Matosinhos e Leça da Palmeira

Simule um Crédito Habitação

Os dados apresentados são meramente indicativos. Condições gerais
Seguir
Partilhar
Predimed Imobiliaria Mediacao Imobiliaria Lda
AMI 22503
Nome
Email
Contacto
Formato inválido
Agende uma visita
Referência do anúncio: 052502.
Última atualização: 02 outubro 2025.
Contactar
Veja também
Anúncios na mesma zona
Apartamento T1 Venda em Cedofeita, Santo Ildefonso, Sé, Miragaia, São Nicolau e Vitória,Porto
Porto, Porto, Cedofeita, Santo Ildefonso, Sé, Miragaia, São Nicolau e Vitória
511 500 €
1
1
Apartamento T3, em construção, na Póvoa de Varzim
Porto, Póvoa de Varzim, Aver-o-Mar, Amorim e Terroso
Sob consulta
3
2
Apartamentos​​​​​​​ T3 em Construção no Centro de Freamunde
Porto, Paços de Ferreira, Freamunde
244 400 €
3
3
T1 DUPLEX
Porto, Porto, Cedofeita, Santo Ildefonso, Sé, Miragaia, São Nicolau e Vitória
389 000 €
1
1
Apartamento T2
Porto, Porto, Cedofeita, Santo Ildefonso, Sé, Miragaia, São Nicolau e Vitória
460 000 €
2
2
Apartamento T0+1 Venda em Cedofeita, Santo Ildefonso, Sé, Miragaia, São Nicolau e Vitória,Porto
Porto, Porto, Cedofeita, Santo Ildefonso, Sé, Miragaia, São Nicolau e Vitória
282 150 €
1
1
T5 p/ remodelar e investimento no coração do Porto
Porto, Porto, Cedofeita, Santo Ildefonso, Sé, Miragaia, São Nicolau e Vitória
650 000 €
5
1
Andar Moradia de luxo c/ jardim na Foz do Douro
Porto, Porto, Aldoar, Foz do Douro e Nevogilde
1 600 000 €
3
4
Apartamento T3 Venda em Moreira,Maia
Porto, Maia, Moreira
299 000 €
3
1
Apartamento T3 Venda em Canidelo,Vila Nova de Gaia
Porto, Vila Nova de Gaia, Canidelo
485 000 €
3
1
Partilha o imóvel: T1 leça de palmeira em contrução com terraço
Partilha este imóvel nas tuas redes sociais ou envia diretamente para o email dos teus amigos.
Partilhar por email
Adicione uma nota ao imóvel!
Só você é que vê as notas que adiciona. Os imóveis com notas ficam nos favoritos para os poder consultar mais tarde.
Excluíste o anúncio:
T1 leça de palmeira em contrução com terraço