Pesquisar perto de mim
A aguardar a sua pesquisa
Voltar
T1, elegância contemporânea a estrear no coração de cascais
T1, elegância contemporânea a estrear no coração de cascais
T1, elegância contemporânea a estrear no coração de cascais
T1, elegância contemporânea a estrear no coração de cascais
Ver galeria (25)
Ver galeria (25)
Seguir
Partilhar

T1, elegância contemporânea a estrear no coração de cascais

Lisboa, Cascais, Cascais e Estoril Ver no mapa
575 000 €
1 Quartos
2 WC's
76,05m2
Área Útil: 76,05m2
Área Bruta: 102m2
Ano de Construção: 2025
Certificação Energética: A+
Estado: Novo

Descrição do anúncio

No centro vibrante de Cascais, nasce um edifício singular, com apenas um apartamento por piso, que combina arquitetura contemporânea, materiais de excelência e um design pensado para o bem-estar.
Com painéis solares, varandas e terraços com vistas tranquilizantes e uma exposição solar perfeita, cada detalhe foi concebido para oferecer conforto, elegância e serenidade. 
Situado a poucos passos das praias, da marina, dos campos de golf, do centro histórico e estação ferroviária CP, dos jardins, do comércio local, da vida cultural e gastronómica que fazem da Vila de Cascais um dos destinos mais elegantes e desejados de Portugal.O acesso rápido à A5 ou à Marginal para a ligação rodoviária à Lisboa e ao aeroporto, completa este privilégio.
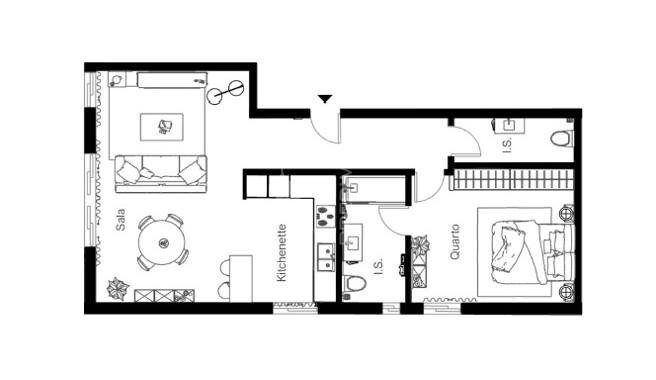
A fração T1 disponível no Rés do Chão alto, com 102 m2 de área total, conta com:
- sala com cozinha integrada – com 35 m2- cozinha equipada com eletrodomésticos encastráveis SMEG- 1 suíte com 21,55 m2 - 2 casas de banho com revestimento e louças sanitárias Porcelanosa; - ar condicionado Mitsubishi;- 1 grande arrecadação ou espaço multiuso com 15 m2 e luz natural;- 1 estacionamento
Uma oportunidade única para viver ou investir no melhor que Cascais tem para oferecer - entre o charme do Atlântico e a tranquilidade de um estilo de vida exclusivo. 
Para informações de outras tipologias disponíveis no edifício, não hesite em contactar.
Informações e visitas:
Margarida TavaresConsultora Prime / Real Estate AdvisorTel & Wpp: +351 914 710 [email protected]
Mais soluções imobiliárias em:www.predimed.pt/margarida.tavares


Predimed Imobiliária, Mediação Imobiliária, Lda.
Avenida Brasil 43, 12º Andar, 1700-062 Lisboa
Licença AMI nº 22503
Pessoa Coletiva nº 517 239 345
Seguro Responsabilidade Civil: Nº de Apólice RC65379424 Fidelidade

Características Gerais

  • Ar Condicionado
  • Video Porteiro
  • Cozinha Equipada
  • Elevador
  • Arrumos
  • Guarda Roupa
  • Nº de Estacionamentos 1

Galeria do imóvel

T1, elegância contemporânea a estrear no coração de cascais
T1, elegância contemporânea a estrear no coração de cascais
T1, elegância contemporânea a estrear no coração de cascais
T1, elegância contemporânea a estrear no coração de cascais
T1, elegância contemporânea a estrear no coração de cascais
T1, elegância contemporânea a estrear no coração de cascais

Localização do imóvel

Lisboa, Cascais, Cascais e Estoril

Referência do anúncio: 056081. Última atualização: 25 novembro 2025.

Relatório de preços praticados nos últimos 8 meses

Lisboa, Cascais, Cascais e Estoril

Simule um Crédito Habitação

Os dados apresentados são meramente indicativos. Condições gerais
Seguir
Partilhar
Predimed Imobiliaria Mediacao Imobiliaria Lda
AMI 22503
Nome
Email
Contacto
Formato inválido
Agende uma visita
Referência do anúncio: 056081.
Última atualização: 25 novembro 2025.
Contactar
Veja também
Anúncios na mesma zona
Apartamento T3 DUPLEX Venda em Algés, Linda-a-Velha e Cruz Quebrada-Dafundo,Oeiras
Lisboa, Oeiras, Algés, Linda-a-Velha e Cruz Quebrada-Dafundo
1 368 670 €
3
4
Apartamento T3 DUPLEX Venda em Algés, Linda-a-Velha e Cruz Quebrada-Dafundo,Oeiras
Lisboa, Oeiras, Algés, Linda-a-Velha e Cruz Quebrada-Dafundo
1 448 544 €
3
3
Apartamento T1 Venda em Algés, Linda-a-Velha e Cruz Quebrada-Dafundo,Oeiras
Lisboa, Oeiras, Algés, Linda-a-Velha e Cruz Quebrada-Dafundo
430 000 €
1
1
Apartamento T3 DUPLEX Venda em Algés, Linda-a-Velha e Cruz Quebrada-Dafundo,Oeiras
Lisboa, Oeiras, Algés, Linda-a-Velha e Cruz Quebrada-Dafundo
1 443 215 €
3
4
Apartamento T3 DUPLEX Venda em Cascais e Estoril,Cascais
Lisboa, Cascais, Cascais e Estoril
2 790 000 €
3
3
1
Apartamento t3, 4 assoalhadas na rua angelina vidal, penha de frança
Lisboa, Lisboa, Arroios
499 900 €
3
2
Apartamento T3 DUPLEX Venda em Algés, Linda-a-Velha e Cruz Quebrada-Dafundo,Oeiras
Lisboa, Oeiras, Algés, Linda-a-Velha e Cruz Quebrada-Dafundo
1 385 186 €
3
3
Apartamento T2 em Alcântara
Lisboa, Lisboa, Alcântara
909 000 €
2
Apartamento T2 Venda em Cascais e Estoril,Cascais
Lisboa, Cascais, Cascais e Estoril
1 790 000 €
2
2
1
Apartamento T3 em Alcântara
Lisboa, Lisboa, Alcântara
918 000 €
3
Partilha o imóvel: T1, elegância contemporânea a estrear no coração de cascais
Partilha este imóvel nas tuas redes sociais ou envia diretamente para o email dos teus amigos.
Partilhar por email
Adicione uma nota ao imóvel!
Só você é que vê as notas que adiciona. Os imóveis com notas ficam nos favoritos para os poder consultar mais tarde.
Excluíste o anúncio:
T1, elegância contemporânea a estrear no coração de cascais