Pesquisar perto de mim
A aguardar a sua pesquisa
Voltar
T1+1 Novo com varanda c/ 13.70m2,  a 300mt da praia de Armação de Pera.
T1+1 Novo com varanda c/ 13.70m2,  a 300mt da praia de Armação de Pera.
T1+1 Novo com varanda c/ 13.70m2,  a 300mt da praia de Armação de Pera.
T1+1 Novo com varanda c/ 13.70m2,  a 300mt da praia de Armação de Pera.
Ver galeria (27)
Ver galeria (27)
Seguir
Partilhar

T1+1 Novo com varanda c/ 13.70m2, a 300mt da praia de Armação de Pera.

Faro, Silves, Armação de Pêra Ver no mapa
372 000 €
2 Quartos
1 WC's
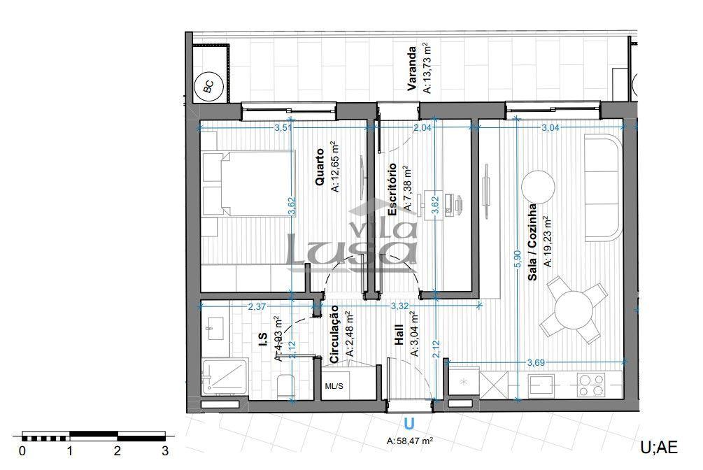
58m2
Área Útil: 58m2
Área Bruta: 58m2
Ano de Construção: 2027
Certificação Energética: A
Estado: Em Projecto

Descrição do anúncio

Apartamento T1+1 Novo a 300m da Praia Armação de Pêra
Com lugar de garagem e varanda de 13.70 m2

Descubra o equilíbrio perfeito entre conforto, modernidade e localização privilegiada neste apartamento T1+1 inserido em edifício novo e exclusivo, com apenas 39 habitações, a escassos 300 metros da deslumbrante praia de Armação de Pêra.

Com uma excecional exposição solar e uma ampla varanda, este estúdio oferece o melhor da vida à beira-mar, ideal para habitação própria, férias ou investimento.

Destaques do imóvel:
Piscina na cobertura
Fachada ventilada para melhor desempenho térmico
Caixilharia em PVC com vidro duplo
Cozinha totalmente equipada com eletrodomésticos modernos
Iluminação embutida para um ambiente elegante
Carpintaria lacada de alta qualidade
Pavimento vinílico resistente e de fácil manutenção
WC com móveis e louças suspensas
Estores elétricos
Ar condicionado instalado
Sistema de bomba de calor
Painéis fotovoltaicos para maior eficiência energética

Com acabamentos de elevada qualidade e soluções sustentáveis, este apartamento foi pensado para proporcionar uma experiência de vida confortável e sofisticada, a poucos passos do mar e de todos os serviços.

Características Gerais

  • Cozinha Equipada
  • Piscina
  • Varandas
  • Nº de Estacionamentos 1

Galeria do imóvel

T1+1 Novo com varanda c/ 13.70m2,  a 300mt da praia de Armação de Pera.
T1+1 Novo com varanda c/ 13.70m2,  a 300mt da praia de Armação de Pera.
T1+1 Novo com varanda c/ 13.70m2,  a 300mt da praia de Armação de Pera.
T1+1 Novo com varanda c/ 13.70m2,  a 300mt da praia de Armação de Pera.
T1+1 Novo com varanda c/ 13.70m2,  a 300mt da praia de Armação de Pera.
T1+1 Novo com varanda c/ 13.70m2,  a 300mt da praia de Armação de Pera.

Localização do imóvel

Faro, Silves, Armação de Pêra

Referência do anúncio: 808251021. Última atualização: 07 novembro 2025.

Relatório de preços praticados nos últimos 8 meses

Faro, Silves, Armação de Pêra

Simule um Crédito Habitação

Os dados apresentados são meramente indicativos. Condições gerais
Seguir
Partilhar
Vila Lusa - Forma Régia - Med Imob Unip., Lda
AMI 7917
910 ...
Chamada para a rede fixa nacional
Mostrar número
Nome
Email
Contacto
Formato inválido
Agende uma visita
Referência do anúncio: 808251021.
Última atualização: 07 novembro 2025.
Contactar
Veja também
Anúncios na mesma zona
Apartamento T3 novo com Garagem e Piscina em Conceição de Tavira
Faro, Tavira, Conceição e Cabanas de Tavira
460 000 €
3
3
Apartamento t3 luxo, condomínio fechado, em lagos
Faro, Lagos, Lagos (São Sebastião e Santa Maria)
620 000 €
3
2
1
Apartamento T3 novo, perto da praia.
Faro, Vila Real de Santo António, Vila Real de Santo António
259 000 €
3
2
Apartamento T3 novo com Garagem e Piscina em Conceição de Tavira
Faro, Tavira, Conceição e Cabanas de Tavira
440 000 €
3
3
Apartamento t3 em edifício pombalino, frente rio, 195m2
Faro, Vila Real de Santo António, Vila Real de Santo António
750 000 €
3
2
Apartamento T3 Venda em Loulé (São Clemente),Loulé
Faro, Loulé, Loulé (São Clemente)
813 200 €
3
1
T5 Duplex , Nova Construção - São Brás de Alportel
Faro, São Brás de Alportel, São Brás de Alportel
480 000 €
3
3
Nereidas - Um lugar para sonhar e viver
Faro, Vila Real de Santo António, Vila Real de Santo António
218 000 €
2
2
Premium Residences - Apartamento T2
Faro, Loulé, Loulé (São Clemente)
1 036 100 €
2
2
Apartamento T3 de elevada qualidade em Portimão
Faro, Portimão, Portimão
505 000 €
3
2
Partilha o imóvel: T1+1 Novo com varanda c/ 13.70m2, a 300mt da praia de Armação de Pera.
Partilha este imóvel nas tuas redes sociais ou envia diretamente para o email dos teus amigos.
Partilhar por email
Adicione uma nota ao imóvel!
Só você é que vê as notas que adiciona. Os imóveis com notas ficam nos favoritos para os poder consultar mais tarde.
Excluíste o anúncio:
T1+1 Novo com varanda c/ 13.70m2, a 300mt da praia de Armação de Pera.