Pesquisar perto de mim
A aguardar a sua pesquisa
Voltar
Studio, em prédio recuperado com elevador no Chiado
Studio, em prédio recuperado com elevador no Chiado
Studio, em prédio recuperado com elevador no Chiado
Studio, em prédio recuperado com elevador no Chiado
Ver galeria (31)
Ver galeria (31)
Seguir
Partilhar

Studio, em prédio recuperado com elevador no Chiado

Lisboa, Lisboa, Misericórdia Ver no mapa
650 000 €
0 Quartos
1 WC's
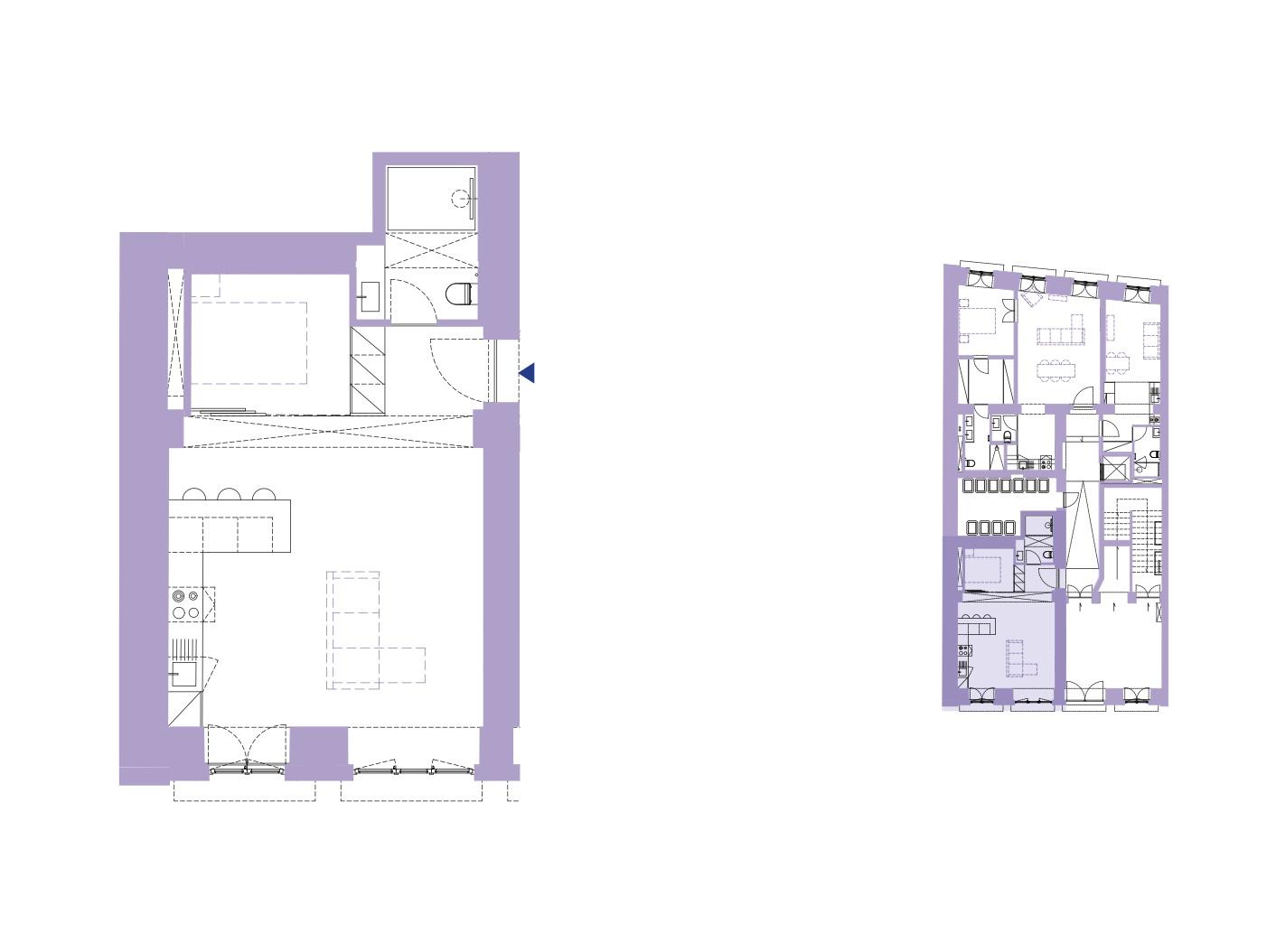
Área Bruta: 64,77m2
Certificação Energética: A

Descrição do anúncio

Studio com charme, em prédio recuperado com elevador no Chiado

Situado no coração do bairro cosmopolita do Chiado, em Lisboa, este requintado apartamento oferece uma mistura sofisticada de vida contemporânea e charme clássico Português. Inserido num edifício totalmente renovado, o apartamento uma estética moderna, preservando a essência histórica dos seus arredores.

Ao entrar, é recebido por uma sala de estar espaçosa e luminosa, projetada tanto para relaxamento como para entretenimento. O apartamento possui um quarto generoso com casa de banho privativa, proporcionando um refúgio privado e confortável. A cozinha totalmente equipada, com eletrodomésticos de última geração, satisfaz os entusiastas da culinária.

A acrescentar ao carácter único do apartamento estão os tetos altos trabalhados, meticulosamente preservados, um aceno à arquitetura tradicional portuguesa. Estes detalhes elegantes criam uma atmosfera de elegância refinada, integrando perfeitamente o passado com o presente. Esta joia do Chiado oferece uma experiência de vida verdadeiramente excecional, combinando confortos modernos com o fascínio intemporal do património cultural de Lisboa.

Características Gerais:
- Sala de estar com zona de refeições;
- Zona de quarto;
- Cozinha totalmente equipada;
- Casa de banho completa com chuveiro.

Outras Características;
- Prédio totalmente renovado;
- Prédio com elevador;
- Apartamento num RC alto com uma boa exposição solar, virado para a Rua do Alecrim;
- Pé direito de 4,09 metros e tectos trabalhados;
- Chão da sala de estar e dos quartos em pinho maciço;
- As pedras utilizadas das casas de banho são lioz natural;
- As bancadas e o chão da cozinha são a corian;
- Projecto da autoria do conceituado atelier de arquitectos Fragmentos;
- Conclusão da obra June 2025.

Inserido num prédio de 5 andares com 15 apartamentos, com elevador. 14 dos apartamentos de tipologias que variam entre T0 e T3 são espaços versáteis com tectos altos, arcos de tijolo e colunas centenárias.

Esta é uma oportunidade única de viver numa casa de charme em zona prime de Lisboa.



Descrição do Bairro do Chiado:

Um dos bairros mais emblemáticos da cidade de Lisboa e o centro histórico da cidade.

Tornou-se no século XIX no centro do romantismo português, frequentado por grandes escritores como Eça de Queiróz ou Fernando Pessoa (este último eternizado em escultura na esplanada d'A Brasileira). O Chiado é um importante centro de comércio de Lisboa, sendo uma das zonas mais cosmopolitas e movimentadas da cidade. É o bairro onde se cruzam diariamente todo o tipo de pessoas, numa mistura de lojas antigas tradicionais com lojas de estilistas portugueses e marcas internacionais. Há um pouco de tudo, não falta animação, seja verão ou inverno. É um bairro cheio de palacetes, onde a maioria dos edifícios estão restaurados, com fachadas muito bonitas, é hoje considerada a zona mais 'prime' de Lisboa.

Aeroporto Internacional de Lisboa 9,1km

Jardim Botânico de Lisboa 1,3km

Marquês de Pombal 2,1km

Cascais 33,9km

Galeria do imóvel

Studio, em prédio recuperado com elevador no Chiado
Studio, em prédio recuperado com elevador no Chiado
Studio, em prédio recuperado com elevador no Chiado
Studio, em prédio recuperado com elevador no Chiado
Studio, em prédio recuperado com elevador no Chiado
Studio, em prédio recuperado com elevador no Chiado

Localização do imóvel

Lisboa, Lisboa, Misericórdia

Referência do anúncio: APA_7374. Última atualização: 17 março 2026.

Relatório de preços praticados nos últimos 8 meses

Lisboa, Lisboa, Misericórdia

Simule um Crédito Habitação

Os dados apresentados são meramente indicativos. Condições gerais
Seguir
Partilhar
Lince Real Estate Lda
AMI 10207
Nome
Email
Contacto
Formato inválido
Agende uma visita
Referência do anúncio: APA_7374.
Última atualização: 17 março 2026.
Contactar
Veja também
Anúncios na mesma zona
Apartamento t2 com parqueamento, piscina e jardim- rua das farinhas - santa maria maior - lisboa - 998.000€
Lisboa, Lisboa, Santa Maria Maior
998 000 €
2
2
1
VIVER NESTE MARAVILHOSO E ESPAÇOSO T4 TRANSFORMADO EM T3 EM ALMADA, CACILHAS), É VIVER ONDE O TEJO ENCONTRA A MODERNIDADE..........................
Lisboa, Lisboa, Misericórdia
524 000 €
3
2
Espaçoso Apartamento de 3 Frentes com Varanda Panorâmica em Benfica a 7 minutos a pé do Centro Comercial Colombo
Lisboa, Lisboa, Benfica
599 900 €
3
2
T1 Novo em Condomínio Exclusivo à Beira do Tejo - Lisboa
Lisboa, Lisboa, Marvila
860 000 €
1
2
T0 Novo em Condomínio Exclusivo à Beira do Tejo - Lisboa
Lisboa, Lisboa, Marvila
510 000 €
1
Apartamento T3 com terraço de 80m2 na Quinta da Bela Vista
Lisboa, Cascais, Carcavelos e Parede
700 000 €
3
2
T1 Novo em Condomínio Exclusivo à Beira do Tejo - Lisboa
Lisboa, Lisboa, Marvila
535 000 €
1
1
T3 Novo em Condomínio Exclusivo à Beira do Tejo - Lisboa
Lisboa, Lisboa, Marvila
1 480 000 €
3
3
T1 Novo em Condomínio Exclusivo à Beira do Tejo - Lisboa
Lisboa, Lisboa, Marvila
800 000 €
1
2
T0 Novo em Condomínio Exclusivo à Beira do Tejo - Lisboa
Lisboa, Lisboa, Marvila
490 000 €
1
Partilha o imóvel: Studio, em prédio recuperado com elevador no Chiado
Partilha este imóvel nas tuas redes sociais ou envia diretamente para o email dos teus amigos.
Partilhar por email
Adicione uma nota ao imóvel!
Só você é que vê as notas que adiciona. Os imóveis com notas ficam nos favoritos para os poder consultar mais tarde.
Excluíste o anúncio:
Studio, em prédio recuperado com elevador no Chiado