Pesquisar perto de mim
A aguardar a sua pesquisa
Voltar
Projeto aprovado para construção de Hotel de 146 quartos, em Faro, inserido em terreno com 14,69 hectares
Projeto aprovado para construção de Hotel de 146 quartos, em Faro, inserido em terreno com 14,69 hectares
Projeto aprovado para construção de Hotel de 146 quartos, em Faro, inserido em terreno com 14,69 hectares
Projeto aprovado para construção de Hotel de 146 quartos, em Faro, inserido em terreno com 14,69 hectares
Ver galeria (21)
Ver galeria (21)
Seguir
Partilhar

Projeto aprovado para construção de Hotel de 146 quartos, em Faro, inserido em terreno com 14,69 hectares

Faro, Faro, Santa Bárbara de Nexe Ver no mapa
3 500 000 €
0 Quartos
150 WC's
7800m2
Área Útil: 7800m2
Área Bruta: 8327m2
Certificação Energética: Isento

Descrição do anúncio

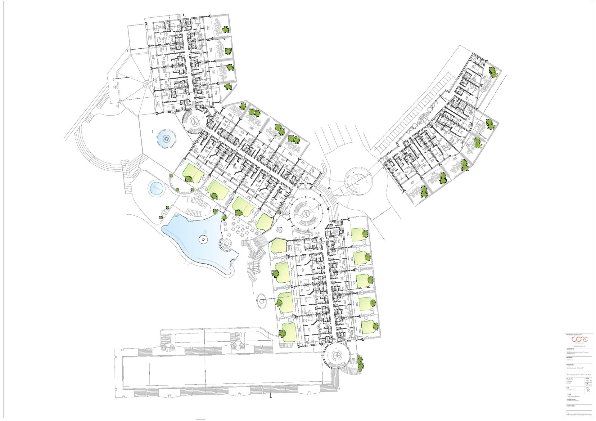
Projeto aprovado, pelo município de Faro, para construção de hotel com 146 quartos, aparthotel com 83 apartamentos e campo de golfe de 9 buracos, a apenas 10 minutos do centro histórico de Faro, da praia e do Aeroporto internacional, na capital de distrito.

O tamanho do lote gira em torno de 146 915 m 2, incluindo implantação de Hotel com 8327 m2.
O Apart-Hotel terá 83 Apartamentos e 146 Quartos de Hotel.

O valor da taxa de emissão do alvará de licença de construção ronda os 170.000 €. Quanto às cedências a prestar à Câmara Municipal de Faro, o montante é de 830.000

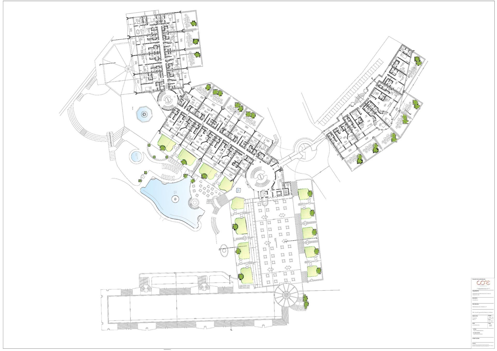
Descrição do empreendimento
O projecto apresentado propõe a alteração ao nível de interiores dos quartos, reconfigurando o seu
espaço por forma a podermos ter mais unidades de alojamento, no entanto, esta alteração, em nada altera
o valor máximo previsto no PDM - 160 camas distribuídas pelas 83 unidades de alojamento. Estas 83 UA,
compõem-se por 77 T1 duplos, e 6 T1 singles, sendo 2 deles adaptados a utentes com mobilidade
condicionada.
O piso -3, mantém-se, e irá ser caracterizado por áreas comuns com lugares de estacionamento, 5
reservados a utentes de mobilidade condicionada (UMC), recepção das salas de conferência, salas de
conferência, instalações sanitárias divididas por sexos de apoio às salas de conferência e áreas de serviço
que contém áreas técnicas, arrumo de bicicletas depósito de lixo, rouparia, arrumos e cozinha de apoio às
salas de conferencia.
No piso -2, as áreas comuns mantém-se sem qualquer alteração, e iremos ter o átrio de entrada, recepção,
bar, restaurante gourmet, restaurante principal com cozinha aberta, restaurante asiático com cozinha
aberta e bar, instalações sanitárias divididas por sexos, havendo uma delas adaptada a utentes de
mobilidade condicionada, sala de estar, biblioteca, internet, café, loja, recinto de espectáculos, bilheteira,
bar, outro bloco de instalações sanitárias havendo uma delas adaptada a utentes de mobilidade
condicionada, pista de dança com bar. As unidades de alojamento, sofreram alteração de 7UA (5 T1 duplo
e 2 T2 Duplos), para 9UA (9 T1 Duplos). Como áreas de serviços temos cozinha de apoio aos restaurantes
(copas, dispensas, economatos, zonas de preparação), copa de piso, segurança, depósito de lixos,
cantina do pessoal, instalações sanitárias/ balneários/ vestiários de pessoal feminino e masculino, áreas
Anabela Polido Macieira | KEY Zen Arquitetura, Lda | + (telefone) | + (telefone) | (email)
técnicas, arquivo, arrecadações, dispensas, áreas técnicas, apoio ao recinto de espectáculos e discoteca
(instalações sanitárias, sala de pessoal, cozinha, sala de ensaio, bastidores, garrafeira).
No piso -1 como áreas comuns está projectado 2 lojas, cabeleireiro, SPA com recepção, instalações
sanitárias para ambos os sexos, caldarium, sala de relaxamento, sala de terapia, salas de vapores,
hamam, piscina semi-coberta, jacuzzi, mar morto, bar de apoio, hidromassagens, saunas, I.S. UMC, salas
de massagens asiáticas, piscina infantil interior, sala de indoor golfe, sala de jogos, ginásios com salas de
massagem e instalações sanitárias/balnearios (M/F/UMC), espaço infantil, piso superior do recinto de
espectáculo, instalações sanitárias de apoio à piscina exterior, zona de armazenamento de bugies, I.S./
Vestiários/balneários M/F/UMC. Nas áreas de serviço temos instalações sanitárias de apoio ao serviço (M/
F), dispensas, serviço de toalhas, cozinha de apoio ao bar da piscina semi-coberta, dispensa de bilheteira,
arquivo, zona de lavandaria, zona de 1º socorros, arrumos, áreas técnicas, arrecadação da loja do golfe,
arrecadação de ferramentas e copas de piso. As unidades de alojamento, sofreram alteração de 15 UA
(13 T1 duplos e 2 T2 duplos), para 18 UA (1 T1 single e 17 T1 duplos).
No piso 0 como áreas comuns teremos o hall de entrada, recepção, instalação sanitária (M/F/UMC), e as
unidades de alojamento que passaram de 27 UA (20 T1 duplos, dos quais 3 são adaptados a UMC, 6 T2
duplo + single e 1 T3 2 duplos + single) para 33 UA (4 T1 singles, dos quais 2 são adaptados a UMC, e 29
T1 duplos).
O piso 1 está destinado, como áreas comuns, a restaurante-esplanada, bar, a nível de áreas de serviço
contém a cozinha, dispensas, arrumos, copa de piso e arrecadação de mobiliário. As unidades de
alojamento passaram de 18 UA (13 T1 duplo dos quais 3 são adaptados a UMC, 2 T2 duplo, 2 T2 duplo +
single e 1 T3 2 duplo + single), para 23 UA (1 T1 single e 22 T1 duplos).
Todas as alterações de arquitectura apresentadas cumprem o decreto de lei 163/2006, de 8 de Agosto.

Classificação e capacidade do Hotel
No que diz respeito à capacidade do hotel, pretendeu-se não exceder o regulamentado no Artigo 22º - E,
disposto no Regulamento do Plano Director Municipal de Faro, com a redacção actual, bem como a
proposta anterior, sendo a capacidade máxima de 160 camas (respeitada e mantida, tal como no projecto
anterior), e 152...

Galeria do imóvel

Projeto aprovado para construção de Hotel de 146 quartos, em Faro, inserido em terreno com 14,69 hectares
Projeto aprovado para construção de Hotel de 146 quartos, em Faro, inserido em terreno com 14,69 hectares
Projeto aprovado para construção de Hotel de 146 quartos, em Faro, inserido em terreno com 14,69 hectares
Projeto aprovado para construção de Hotel de 146 quartos, em Faro, inserido em terreno com 14,69 hectares
Projeto aprovado para construção de Hotel de 146 quartos, em Faro, inserido em terreno com 14,69 hectares
Projeto aprovado para construção de Hotel de 146 quartos, em Faro, inserido em terreno com 14,69 hectares

Localização do imóvel

Faro, Faro, Santa Bárbara de Nexe

Referência do anúncio: CS-HOT-85155. Última atualização: 21 fevereiro 2025.

Relatório de preços praticados nos últimos 8 meses

Faro, Faro, Santa Bárbara de Nexe

Simule um Crédito Habitação

Os dados apresentados são meramente indicativos. Condições gerais
Seguir
Partilhar
Around The Sun - Unip Lda
AMI 10136
Nome
Email
Contacto
Formato inválido
Agende uma visita
Referência do anúncio: CS-HOT-85155.
Última atualização: 21 fevereiro 2025.
Contactar
Veja também
Anúncios na mesma zona
Loja de 35 m² no Edifício Varandas do Mar em Albufeira
Faro, Albufeira, Albufeira e Olhos de Água
77 000 €
Loja de 49 m² no Edifício Varandas do Mar em Albufeira
Faro, Albufeira, Albufeira e Olhos de Água
110 000 €
Loja de 29,65 m² no Edifício Varandas do Mar em Albufeira
Faro, Albufeira, Albufeira e Olhos de Água
75 000 €
Loja de 24,40 m² no Edifício Varandas do Mar em Albufeira
Faro, Albufeira, Albufeira e Olhos de Água
75 000 €
trespasse de loja, Pastelaria a funcionar
Faro, Loulé, Quarteira
180 000 €
Loja Venda em Albufeira e Olhos de Água,Albufeira
Faro, Albufeira, Albufeira e Olhos de Água
265 000 €
Loja Venda em Quarteira,Loulé
Faro, Loulé, Quarteira
450 000 €
1
1
Restaurante com Café e Bar com Estacionamento privado e terreno Monte Francisco
Faro, Castro Marim, Castro Marim
850 000 €
Loja de 9,5 m² no Edifício Varandas do Mar em Albufeira
Faro, Albufeira, Albufeira e Olhos de Água
50 000 €
Loja de 56,90 m² no Edifício Varandas do Mar em Albufeira
Faro, Albufeira, Albufeira e Olhos de Água
120 000 €
Partilha o imóvel: Projeto aprovado para construção de Hotel de 146 quartos, em Faro, inserido em terreno com 14,69 hectares
Partilha este imóvel nas tuas redes sociais ou envia diretamente para o email dos teus amigos.
Partilhar por email
Adicione uma nota ao imóvel!
Só você é que vê as notas que adiciona. Os imóveis com notas ficam nos favoritos para os poder consultar mais tarde.
Excluíste o anúncio:
Projeto aprovado para construção de Hotel de 146 quartos, em Faro, inserido em terreno com 14,69 hectares