Pesquisar perto de mim
A aguardar a sua pesquisa
Voltar
Projeto Aprovado para 46 Apartamentos em Quarteira
Projeto Aprovado para 46 Apartamentos em Quarteira
Projeto Aprovado para 46 Apartamentos em Quarteira
Projeto Aprovado para 46 Apartamentos em Quarteira
Ver galeria (20)
Ver galeria (20)
Seguir
Partilhar

Projeto Aprovado para 46 Apartamentos em Quarteira

Faro, Loulé, Quarteira Ver no mapa
5 980 000 €
0 Quartos
0 WC's
1500m2
Área Útil: 1500m2
Área Bruta: 1500m2
Certificação Energética: Isento

Descrição do anúncio

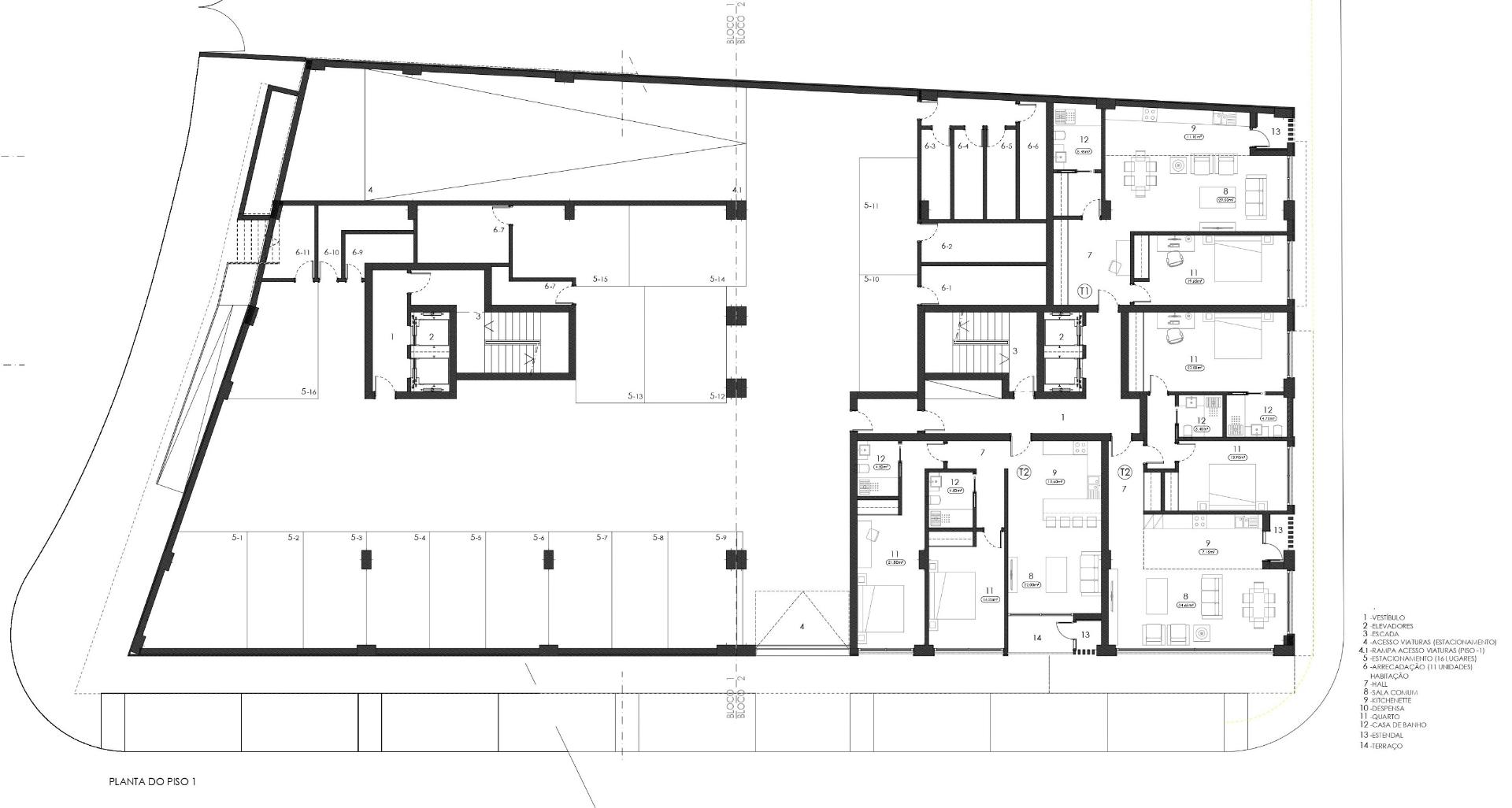
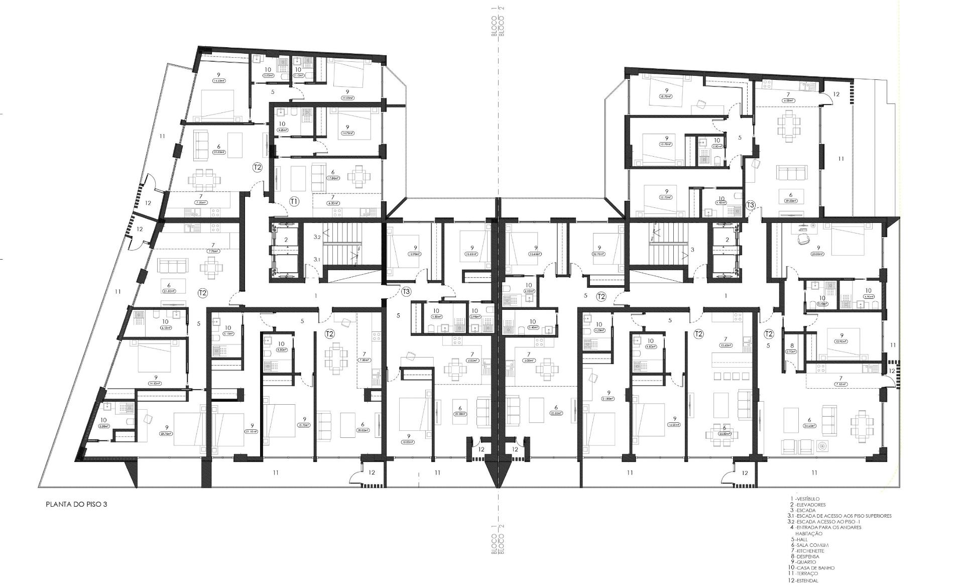
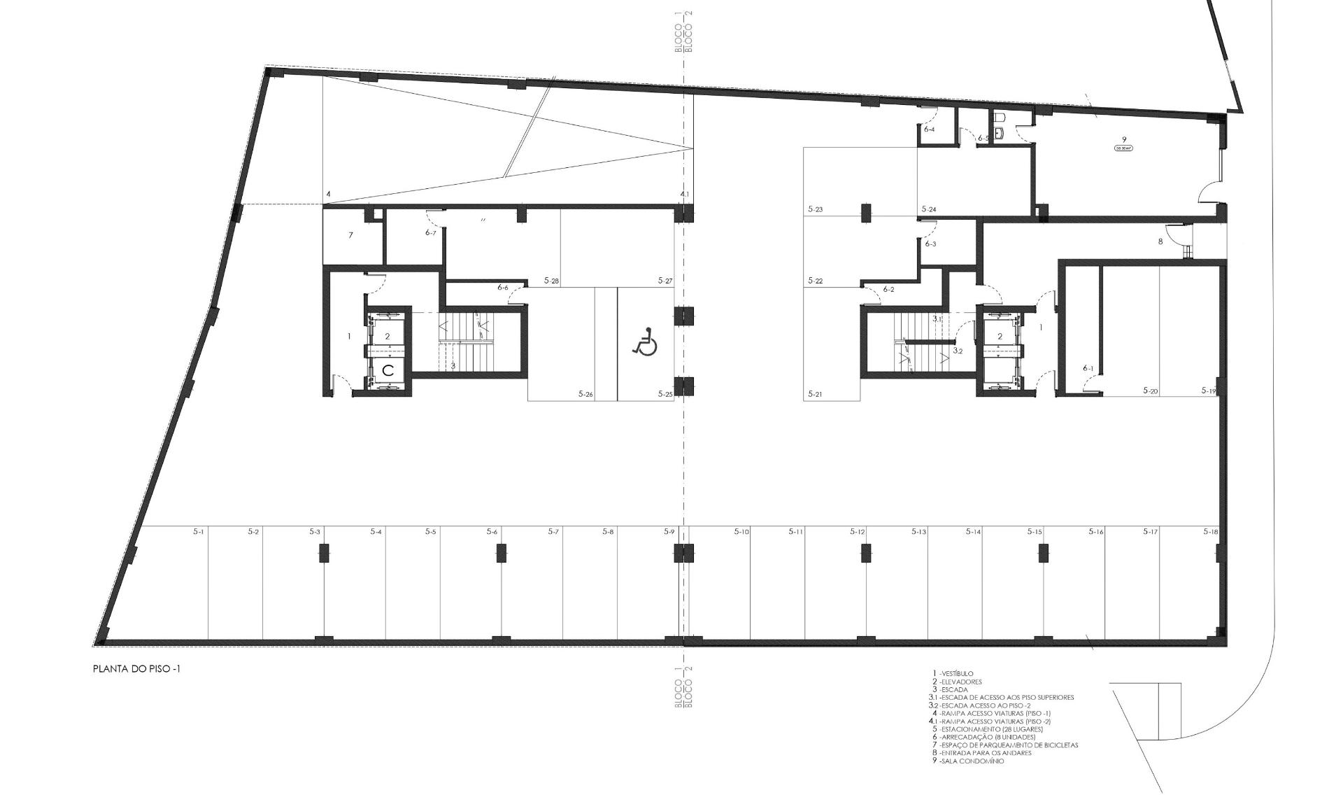
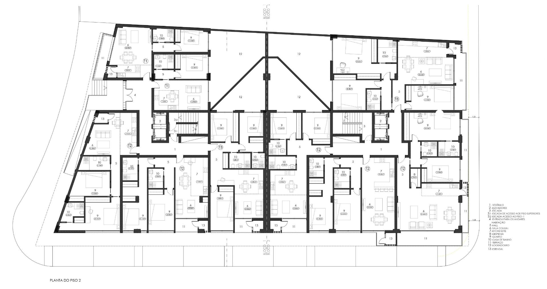
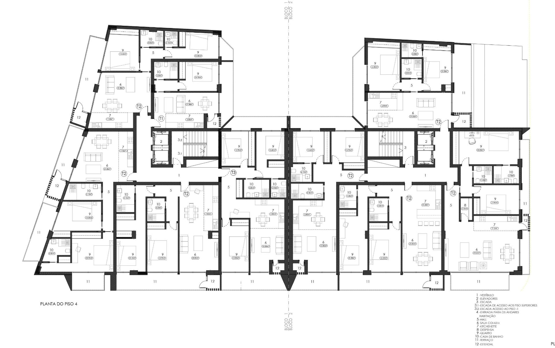
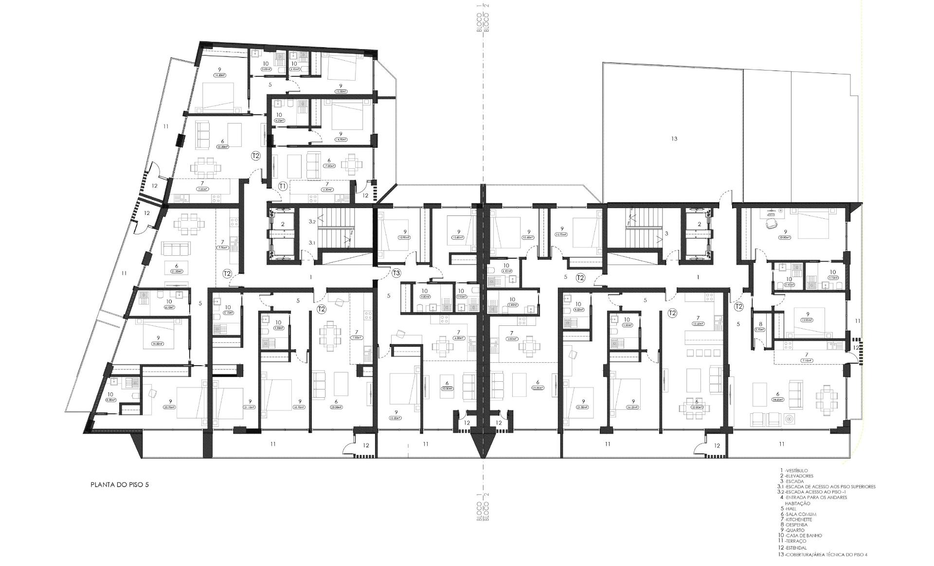
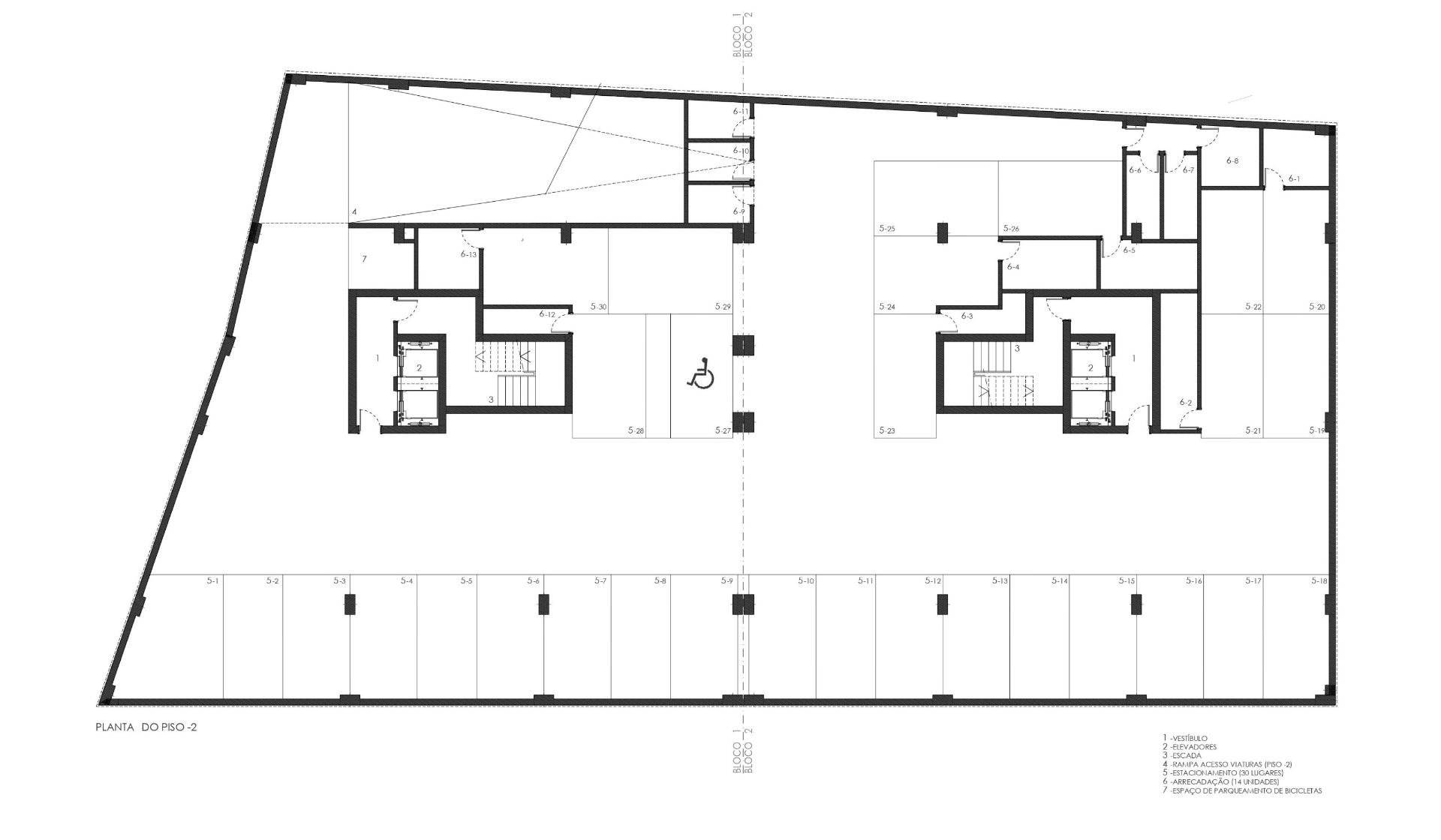
Projeto aprovado para 46 apartamentos em Quarteira, perto do Mar.

Excelente oportunidade de investimento em Quarteira, uma das zonas mais procuradas do Algarve.

Terreno com projeto aprovado para construção de edifício habitacional com 46 apartamentos, localizado a apenas 200 metros do mar. Inserido numa área consolidada, com forte procura tanto para residência permanente como para segunda habitação e investimento turístico.

A proximidade à praia, aliada à envolvente urbana com comércio, restauração, serviços e acessos facilitados, garante uma elevada atratividade para o mercado. Quarteira tem registado uma crescente valorização imobiliária, impulsionada pelo turismo e pela escassez de novos projetos bem localizados.

Este projeto representa um elevado potencial de rentabilidade, seja para venda das frações ou exploração no mercado de arrendamento de curta e longa duração.

Uma oportunidade sólida para investidores que procuram um ativo com localização premium e forte capacidade de valorização.

Contacte-nos para mais informações acerca do projeto.

Galeria do imóvel

Projeto Aprovado para 46 Apartamentos em Quarteira
Projeto Aprovado para 46 Apartamentos em Quarteira
Projeto Aprovado para 46 Apartamentos em Quarteira
Projeto Aprovado para 46 Apartamentos em Quarteira
Projeto Aprovado para 46 Apartamentos em Quarteira
Projeto Aprovado para 46 Apartamentos em Quarteira

Localização do imóvel

Faro, Loulé, Quarteira

Referência do anúncio: CS-LOTP-94494. Última atualização: 09 abril 2026.

Relatório de preços praticados nos últimos 8 meses

Faro, Loulé, Quarteira

Simule um Crédito Habitação

Os dados apresentados são meramente indicativos. Condições gerais
Seguir
Partilhar
Around The Sun - Unip Lda
AMI 10136
Nome
Email
Contacto
Formato inválido
Agende uma visita
Referência do anúncio: CS-LOTP-94494.
Última atualização: 09 abril 2026.
Contactar
Veja também
Anúncios na mesma zona
Terreno Rústico em Portimão
Faro, Portimão, Portimão
1 980 000 €
Terreno em Portimão
Faro, Portimão, Portimão
140 000 €
terreno para construção de Moradia- Vale Judeu
Faro, Loulé, Loulé (São Sebastião)
680 000 €
Terreno Urbano
Faro, Faro, Santa Bárbara de Nexe
300 000 €
Terreno Rustico
Faro, Faro, Santa Bárbara de Nexe
100 000 €
Terreno Urbano para construção de moradia.
Faro, Lagoa (Algarve), Lagoa e Carvoeiro
495 000 €
TERRENO RUSTICO COM 11.000 M2 - BONS ACESSOS - ALCARIAS GRANDES - CASTRO MARIM - ALGARVE
Faro, Castro Marim, Azinhal
19 900 €
TERRENO COM 8.760 M2 - COM POÇO - EM PISA BARRO - CASTRO MARIM - ALGARVE
Faro, Castro Marim, Altura
29 900 €
Terreno Rústico com 6840 m2
Faro, Olhão, Pechão
56 150 €
Terreno Rústico com 3230m2 e vista rio,para venda.
Faro, Castro Marim, Odeleite
57 500 €
Partilha o imóvel: Projeto Aprovado para 46 Apartamentos em Quarteira
Partilha este imóvel nas tuas redes sociais ou envia diretamente para o email dos teus amigos.
Partilhar por email
Adicione uma nota ao imóvel!
Só você é que vê as notas que adiciona. Os imóveis com notas ficam nos favoritos para os poder consultar mais tarde.
Excluíste o anúncio:
Projeto Aprovado para 46 Apartamentos em Quarteira