Pesquisar perto de mim
A aguardar a sua pesquisa
Voltar
PROJETO APROVADO | Casa geminada tradicional para renovação completa I 3 quartos I Pátio I Piscina I Açoteia I Olhão
PROJETO APROVADO | Casa geminada tradicional para renovação completa I 3 quartos I Pátio I Piscina I Açoteia I Olhão
PROJETO APROVADO | Casa geminada tradicional para renovação completa I 3 quartos I Pátio I Piscina I Açoteia I Olhão
PROJETO APROVADO | Casa geminada tradicional para renovação completa I 3 quartos I Pátio I Piscina I Açoteia I Olhão
Ver galeria (26)
Ver galeria (26)
Seguir
Partilhar

PROJETO APROVADO | Casa geminada tradicional para renovação completa I 3 quartos I Pátio I Piscina I Açoteia I Olhão

Faro, Olhão, Olhão Ver no mapa
220 000 €
3 Quartos
2 WC's
92m2
Área Útil: 92m2
Certificação Energética: D

Descrição do anúncio

Vende-se moradia tradicional a necessitar de remodelação completa, com projeto aprovado, situada na cidade de Olhão, numa rua muito agradável e tranquila, a Rua Joaquim Ribeiro, a 5 minutos da Baixa.

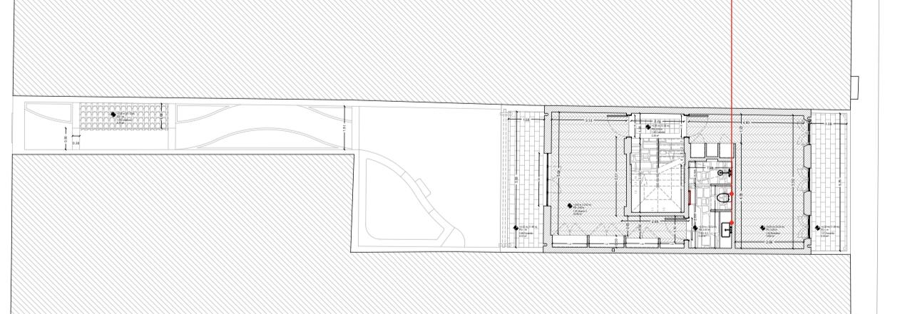
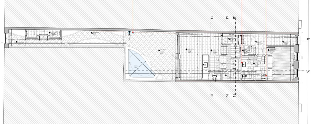
As obras no imóvel tinham sido iniciadas pelos anteriores proprietários, mas foram interrompidas. Desde então, um novo projeto de renovação e ampliação da casa com 132.06 m2 de area util total em dois níveis e quase 113 m2 de espaço exterior, foi elaborado pelo gabinete de arquitetura @Saudade Architecture & Interiors Studio e aprovado à Câmara Municipal de Olhão.

Prevê :

- Piso 0: um quarto, uma casa de banho, um WC de serviço, uma cozinha e despensa, aberta para a sala de estar/jantar com grandes janelas tendo accesso para um pátio de 23 m2 com piscina.
O pátio tem uma segunda porta de entrada no final de um corredor exterior com 26 m2, o que é prático para aceder à propriedade, especialmente para descarregar compras, sem ter de atravessar a casa para a cozinha. Existe também uma despensa e um espaço de arrumação.

- Piso 1: dois quartos com terraço de 8 m2 e uma grande casa de banho comum,

- Piso 2: um vasto terraço e uma cozinha de verão coberta.

As escadas para os diferentes pisos são todas interiores.
Há muito espaço de arrumação em todos os pisos.

Este preço não inclui o custo das obras. A casa está localizada na zona ARU, que oferece vantagens fiscais para a reabilitação urbana.

Se procura uma casa típica para renovar, com 3 quartos, um pátio com piscina, um grande terraço e uma cozinha de verão, num local tranquilo a apenas 5 minutos do centro histórico, então esta é a casa para si.

Não espere mais para vir descobrir esta oportunidade.

Galeria do imóvel

PROJETO APROVADO | Casa geminada tradicional para renovação completa I 3 quartos I Pátio I Piscina I Açoteia I Olhão
PROJETO APROVADO | Casa geminada tradicional para renovação completa I 3 quartos I Pátio I Piscina I Açoteia I Olhão
PROJETO APROVADO | Casa geminada tradicional para renovação completa I 3 quartos I Pátio I Piscina I Açoteia I Olhão
PROJETO APROVADO | Casa geminada tradicional para renovação completa I 3 quartos I Pátio I Piscina I Açoteia I Olhão
PROJETO APROVADO | Casa geminada tradicional para renovação completa I 3 quartos I Pátio I Piscina I Açoteia I Olhão
PROJETO APROVADO | Casa geminada tradicional para renovação completa I 3 quartos I Pátio I Piscina I Açoteia I Olhão

Localização do imóvel

Faro, Olhão, Olhão

Referência do anúncio: PALC_158. Última atualização: 24 setembro 2025.

Relatório de preços praticados nos últimos 8 meses

Faro, Olhão, Olhão

Simule um Crédito Habitação

Os dados apresentados são meramente indicativos. Condições gerais
Seguir
Partilhar
Portugal A La Carte Lda
AMI 15466
Nome
Email
Contacto
Formato inválido
Agende uma visita
Referência do anúncio: PALC_158.
Última atualização: 24 setembro 2025.
Contactar
Veja também
Anúncios na mesma zona
Moradia Isolada T3 Venda em Albufeira e Olhos de Água,Albufeira
Faro, Albufeira, Albufeira e Olhos de Água
850 000 €
3
3
Vale da lapa village resort
Faro, Lagoa (Algarve), Estômbar e Parchal
524 500 €
2
3
Moradia T4 - Piscina- Jardim- Bela Vista - Lagoa
Faro, Lagoa (Algarve), Estômbar e Parchal
950 000 €
4
4
1
Moradia Geminada T2 em empreendimento de renome
Faro, Silves, Silves
425 000 €
2
2
Moradia V2 em Santa Bárbara de Nexe
Faro, Faro, Santa Bárbara de Nexe
650 000 €
2
1
Moradia em banda T2, junto da praia.
Faro, Vila Real de Santo António, Vila Real de Santo António
345 000 €
2
2
Moradia T6 em empreendimento de luxo
Faro, Loulé, Loulé (São Clemente)
4 000 000 €
6
Excelente moradia T3 com grande espaço exterior , localizada nas Gambelas - Faro, Algarve
Faro, Faro, Montenegro
540 000 €
3
3
Moradia em banda T3, junto da praia.
Faro, Vila Real de Santo António, Vila Real de Santo António
389 000 €
3
2
Exclusiva moradia de 4 quartos e piscina, no campo de golfe de Vale do Lobo, Algarve
Faro, Loulé, Quarteira
4 200 000 €
4
5
Partilha o imóvel: PROJETO APROVADO | Casa geminada tradicional para renovação completa I 3 quartos I Pátio I Piscina I Açoteia I Olhão
Partilha este imóvel nas tuas redes sociais ou envia diretamente para o email dos teus amigos.
Partilhar por email
Adicione uma nota ao imóvel!
Só você é que vê as notas que adiciona. Os imóveis com notas ficam nos favoritos para os poder consultar mais tarde.
Excluíste o anúncio:
PROJETO APROVADO | Casa geminada tradicional para renovação completa I 3 quartos I Pátio I Piscina I Açoteia I Olhão