Pesquisar perto de mim
A aguardar a sua pesquisa
Voltar
Prédio para recuperar na Covilhã
Prédio para recuperar na Covilhã
Prédio para recuperar na Covilhã
Prédio para recuperar na Covilhã
Ver galeria (7)
Ver galeria (7)
Seguir
Partilhar

Prédio para recuperar na Covilhã

Castelo Branco, Covilhã, Covilhã e Canhoso Ver no mapa
85 000 €
4 Quartos
1 WC's
138m2
Área Útil: 138m2
Área Bruta: 150m2
Certificação Energética: Isento
Estado: Por Recuperar

Descrição do anúncio

Prédio – Covilhã

Uma oportunidade única de investimento na Covilhã!

Prédio para remodelação total, situado em plena zona central da Covilhã, a poucos minutos a pé da Universidade da Beira Interior (UBI).

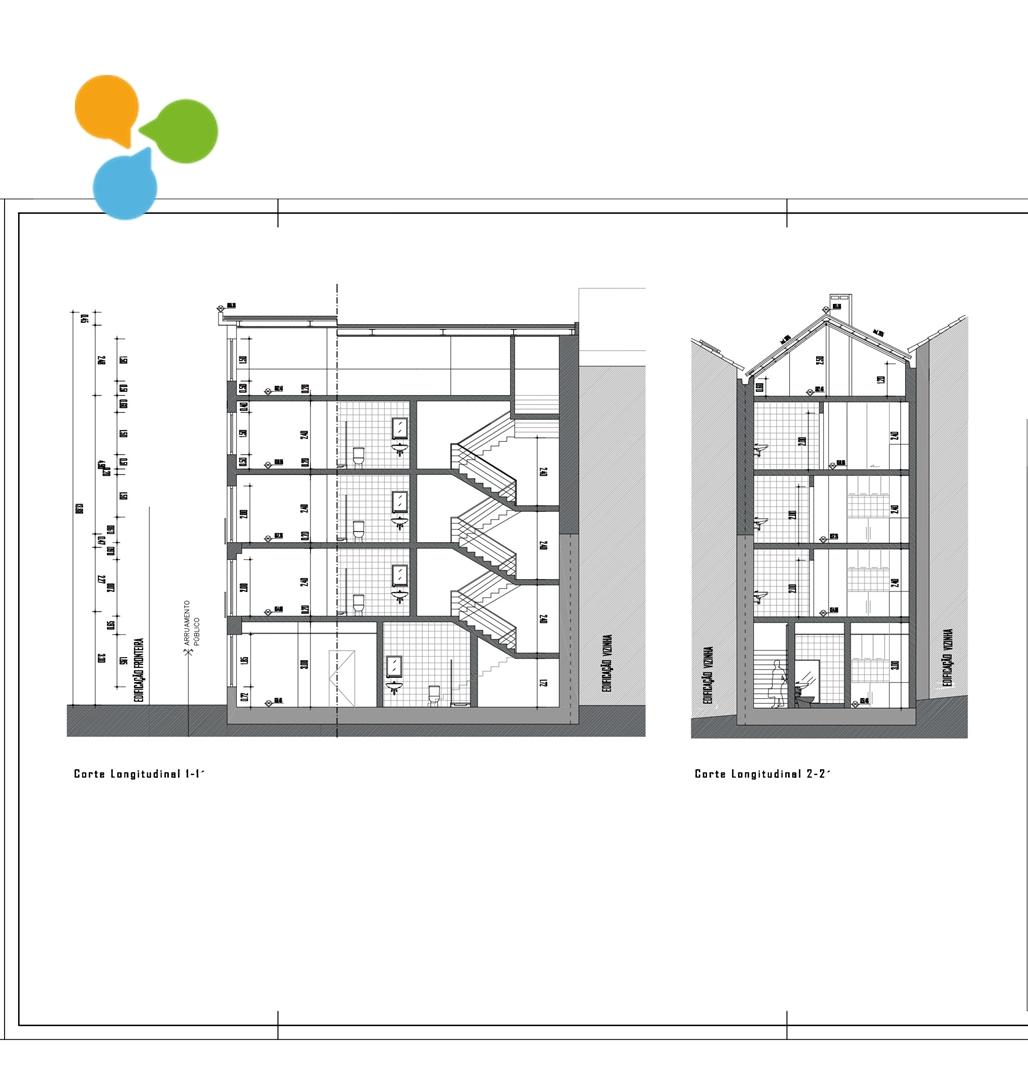
Com projeto aprovado para a criação de quatro apartamentos T0 e um piso de arrumos, este imóvel representa uma excelente oportunidade de investimento no mercado de arrendamento estudantil.

A sua localização privilegiada, próxima de serviços, comércio, restauração e transportes públicos, confere-lhe uma valorização segura.

Principais vantagens:
Localização central, junto aos polos principal e de engenharias da UBI;
Forte potencial de valorização;
Ideal para remodelação e adaptação a diferentes tipologias;
Excelente oportunidade para investimento de rendimento.Agende já a sua visita!

Já conhece todas as valências do GRUPO PRUMMO?

Nascemos para dar resposta às necessidades do setor imobiliário do nosso mercado geográfico. Acreditamos que o cliente necessita de um serviço transversal às três áreas em que operamos - Mediação Imobiliária, Gestão de Imóveis e Obras Construção - sem necessitar de administrar processos com três empresas distintas, convertendo com isso o tempo e preocupações em satisfeitas. 
Prestamos um acompanhamento constante em todo o processo de compra do seu imóvel. Sabemos que é importante mantê-lo/a informado, pois as decisões tomadas podem mudar a sua vida.

GRUPO PRUMO - A VIDA COMO DEVE SER!

Características Gerais

  • Varandas
  • Em Banda

Galeria do imóvel

Prédio para recuperar na Covilhã
Prédio para recuperar na Covilhã
Prédio para recuperar na Covilhã
Prédio para recuperar na Covilhã
Prédio para recuperar na Covilhã
Prédio para recuperar na Covilhã

Localização do imóvel

Castelo Branco, Covilhã, Covilhã e Canhoso

Referência do anúncio: C9657. Última atualização: 28 outubro 2025.

Relatório de preços praticados nos últimos 8 meses

Castelo Branco, Covilhã, Covilhã e Canhoso

Simule um Crédito Habitação

Os dados apresentados são meramente indicativos. Condições gerais
Seguir
Partilhar
Prummo
AMI 11653
275 ...
Chamada para a rede fixa nacional
Mostrar número
Nome
Email
Contacto
Formato inválido
Agende uma visita
Referência do anúncio: C9657.
Última atualização: 28 outubro 2025.
Contactar
Veja também
Anúncios na mesma zona
Moradia T3 Venda em Covilhã e Canhoso,Covilhã
Castelo Branco, Covilhã, Covilhã e Canhoso
40 000 €
3
1
Casa de campo, junto a Monsanto, em zona calma.
Castelo Branco, Idanha-a-Nova, Monsanto e Idanha-a-Velha
65 000 €
2
Moradia T5 Venda em Cantar-Galo e Vila do Carvalho,Covilhã
Castelo Branco, Covilhã, Cantar-Galo e Vila do Carvalho
130 000 €
5
1
Moradia p/ Recuperar - Atalaia do Teixoso - 10 min Covilhã
Castelo Branco, Covilhã, Teixoso e Sarzedo
49 900 €
3
1
Moradia em banda t12 à venda em aldeia são francisco assis, covilhã
Castelo Branco, Covilhã, Aldeia de São Francisco de Assis
65 000 €
12
1
Moradia p/ Recuperar - Aldeia de Souto
Castelo Branco, Covilhã, Vale Formoso e Aldeia do Souto
60 000 €
2
1
Moradia T1 Venda em Castelo Branco,Castelo Branco
Castelo Branco, Castelo Branco, Castelo Branco
41 000 €
1
1
1
Andar Moradia duplex T6 - CENTRO DE ALPEDRINHA
Castelo Branco, Fundão, Fundão, Valverde, Donas, Aldeia de Joanes e Aldeia Nova do Cabo
139 500 €
6
4
Moradia Geminada T3 - Covilhã
Castelo Branco, Covilhã, Covilhã e Canhoso
130 000 €
3
2
1
Moradia Rústica T4 Venda em Estreito-Vilar Barroco,Oleiros
Castelo Branco, Oleiros, Estreito-Vilar Barroco
236 000 €
4
1
Partilha o imóvel: Prédio para recuperar na Covilhã
Partilha este imóvel nas tuas redes sociais ou envia diretamente para o email dos teus amigos.
Partilhar por email
Adicione uma nota ao imóvel!
Só você é que vê as notas que adiciona. Os imóveis com notas ficam nos favoritos para os poder consultar mais tarde.
Excluíste o anúncio:
Prédio para recuperar na Covilhã