Pesquisar perto de mim
A aguardar a sua pesquisa
Voltar
Prédio para Reabilitação Residencial em Sacavém
Prédio para Reabilitação Residencial em Sacavém
Prédio para Reabilitação Residencial em Sacavém
Prédio para Reabilitação Residencial em Sacavém
Ver galeria (14)
Ver galeria (14)
Seguir
Partilhar

Prédio para Reabilitação Residencial em Sacavém

Lisboa, Loures, Sacavém e Prior Velho Ver no mapa
1 500 000 €
0 Quartos
0 WC's
656m2
Área Útil: 656m2
Área Bruta: 656m2
Certificação Energética: C
Estado: Por Recuperar

Descrição do anúncio

Vende-se Prédio em Sacavém, com pedido de informação prévia (PIP) aprovado, sobre a possibilidade de realização de obra de demolição de construção existente e subsequente edificação na parcela de terreno, nos termos do disposto no nº 2 do art.º 14º do D. L. 555/99 de 16 de dezembro, na redação dada pelo D. L. 136/2014, de 9 de setembro (RJUE).

O projeto pressupõe a demolição total do Edifício existente, que apresenta características que não se adequam ao uso de habitação.
Propõem-se a criação de um edifício de habitação,
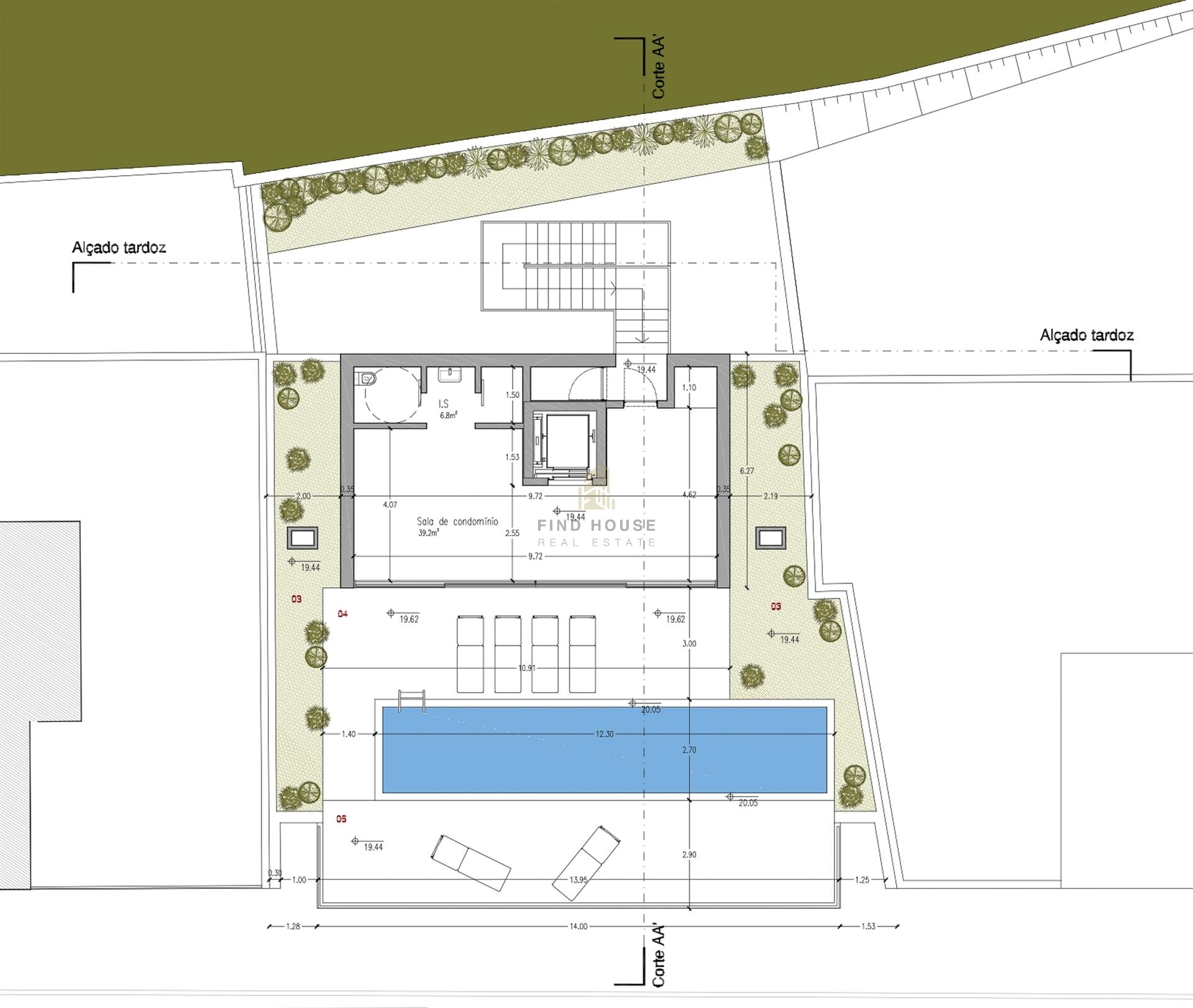
Área da parcela: 335,00 m2
Área de implantação: 246,62 m2
Superfície de pavimento: 785,84 m2
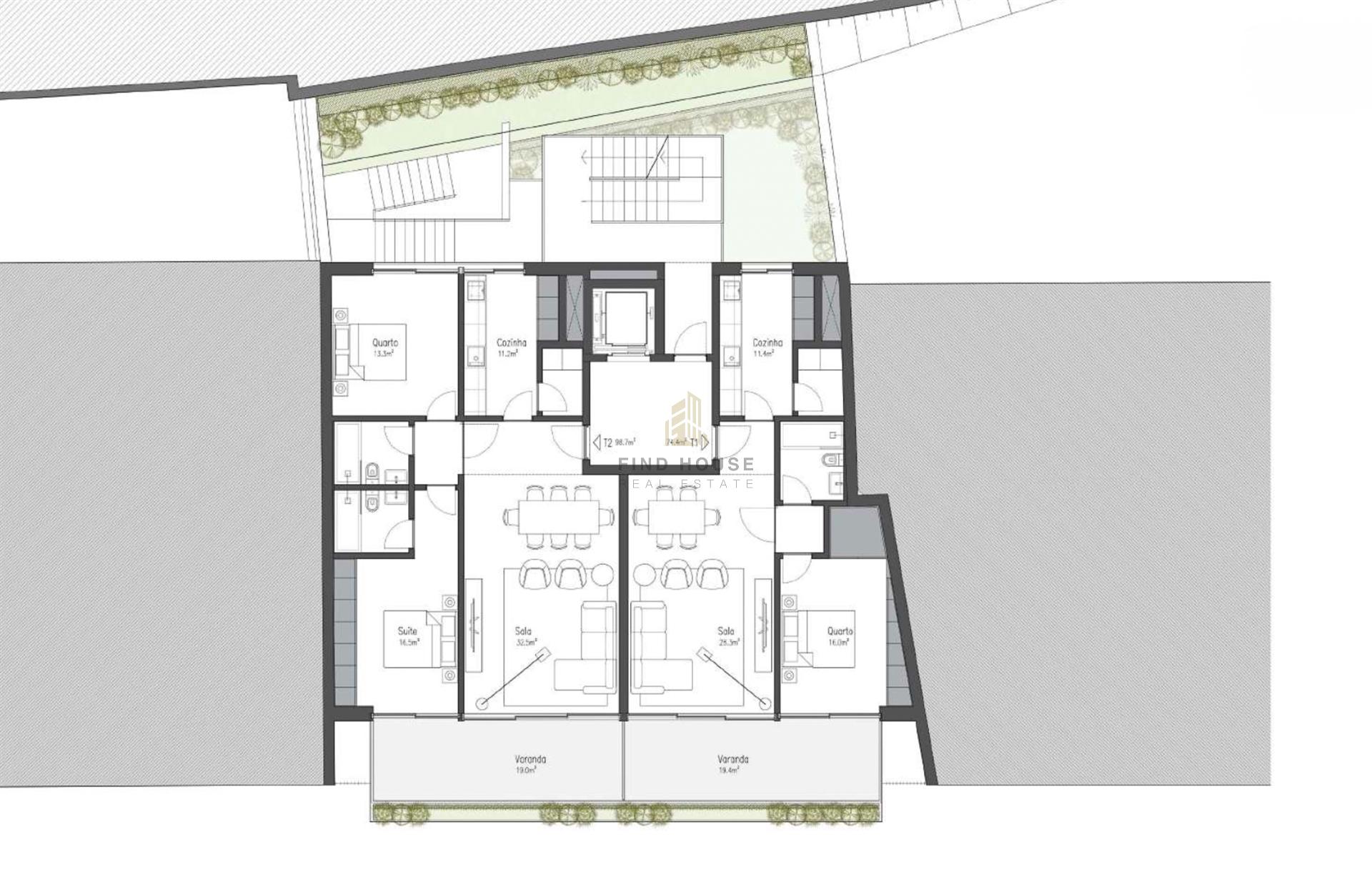
Nº de pisos: 6 acima da cota soleira. + 1 recuado (sala de condomínio)para 8 apartamentos, dos quais 4 são T2 e 4 T1.

Para dar resposta ás necessidades de estacionamento tornou-se necessário a criação de dois pisos de estacionamento, acima da cota soleira, com capacidade total de 12 lugares.

Em resumo, o piso 1 e piso 2, destina-se ao estacionamento, do piso 3 ao 6 destinam-se a apartamentos de habitação T1 e T2, com distribuição de 2 apartamentos por piso.
Por ultimo, o piso recuado, destina-se à sala de condomínio, ou ginásio, sauna/spa...., uma piscina e terraço para uso de todo condomínio.

Todos os pisos são dotados de generosas varandas orientadas para a via pública e Rio.

Não perca esta excelente oportunidade de negócio, com rentabilidade acima da média!

Galeria do imóvel

Prédio para Reabilitação Residencial em Sacavém
Prédio para Reabilitação Residencial em Sacavém
Prédio para Reabilitação Residencial em Sacavém
Prédio para Reabilitação Residencial em Sacavém
Prédio para Reabilitação Residencial em Sacavém
Prédio para Reabilitação Residencial em Sacavém

Localização do imóvel

Lisboa, Loures, Sacavém e Prior Velho

Referência do anúncio: 0585. Última atualização: 29 dezembro 2025.

Relatório de preços praticados nos últimos 8 meses

Lisboa, Loures, Sacavém e Prior Velho

Simule um Crédito Habitação

Os dados apresentados são meramente indicativos. Condições gerais
Seguir
Partilhar
COSTUMES URBANOS - LDA
AMI 17575
351 ...
Chamada para a rede fixa nacional
Mostrar número
Nome
Email
Contacto
Formato inválido
Agende uma visita
Referência do anúncio: 0585.
Última atualização: 29 dezembro 2025.
Contactar
Veja também
Anúncios na mesma zona
Excelente oportunidade em Odivelas!
Lisboa, Odivelas, Odivelas
488 000 €
Prédio
Lisboa, Lisboa, Arroios
2 800 000 €
Prédio com alto potencial de rentabilidade na Mouraria - Lisboa
Lisboa, Lisboa, Santa Maria Maior
3 000 000 €
Prédio com 2 apartamentos e área de armazém em alenquer
Lisboa, Alenquer, Alenquer (Santo Estêvão e Triana)
395 000 €
Prédio em Lisboa
Lisboa, Lisboa, Misericórdia
3 500 000 €
Prédio no Beato com vista para o Rio Tejo
Lisboa, Lisboa, Beato
750 000 €
Elegância contemporânea a estrear no coração de cascais
Lisboa, Cascais, Cascais e Estoril
4 670 000 €
1
Predio para remodelação - cacilhas / almada
Lisboa, Lisboa, Misericórdia
1 300 000 €
LISBOA PRIME EDIFÍCIO HISTÓRICO COM POTENCIAL PARA HOTEL BOUTIQUE OU RESIDÊNCIAS DE LUXO Chiado · Príncipe Real · Bairro Alto | 1.141,50 m² | Vista desafogada com vista de rio
Lisboa, Lisboa, Misericórdia
4 500 000 €
Prédio com projeto aprovado em Sacavém
Lisboa, Loures, Sacavém e Prior Velho
1 200 000 €
Partilha o imóvel: Prédio para Reabilitação Residencial em Sacavém
Partilha este imóvel nas tuas redes sociais ou envia diretamente para o email dos teus amigos.
Partilhar por email
Adicione uma nota ao imóvel!
Só você é que vê as notas que adiciona. Os imóveis com notas ficam nos favoritos para os poder consultar mais tarde.
Excluíste o anúncio:
Prédio para Reabilitação Residencial em Sacavém