Pesquisar perto de mim
A aguardar a sua pesquisa
Voltar
Prédio para construção no Porto
Prédio para construção no Porto
Prédio para construção no Porto
Prédio para construção no Porto
Ver galeria (23)
Ver galeria (23)
Seguir
Partilhar

Prédio para construção no Porto

Porto, Porto, Cedofeita, Santo Ildefonso, Sé, Miragaia, São Nicolau e Vitória Ver no mapa
750 000 €
0 Quartos
0 WC's
756m2
Área Útil: 756m2
Área Bruta: 756m2
Certificação Energética: N/A
Estado: Por Recuperar

Descrição do anúncio

Prédio para construção no Porto

Oportunidade Única de Investimento no Centro do Porto – Zona ARU
Apresentamos um ativo imobiliário com elevado potencial de valorização, localizado numa zona central do Porto, inserida em Área de Reabilitação Urbana (ARU), beneficiando de um contexto de forte requalificação e incentivos associados à reabilitação urbana.
De acordo com o PDM do Porto, o terreno encontra-se classificado como “espaços centrais” e integrado em “área de frente urbana contínua tipo II”, permitindo uma solução construtiva alinhada com a dinâmica urbana da cidade.
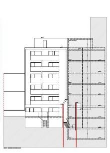
O imóvel dispõe de PIS com parecer favorável da Câmara Municipal do Porto, prevendo a construção de um edifício multifamiliar com:
6 pisos acima da cota de soleira, incluindo piso recuado destinado a habitação
2 pisos em cave, com possibilidade de usos diversificados (habitação, escritórios ou serviços, conforme enquadramento do PDM)O projeto contempla tipologias residenciais T0, T1 e T2, ajustadas à elevada procura urbana, ideais para habitação, arrendamento ou investimento.
A fachada tardoz integra espaços exteriores ajardinados em patamares, assegurando excelente ventilação e iluminação natural em todos os pisos, um elemento diferenciador em contexto urbano central.
Dados principais
Área total do terreno: 128 m²
Área de implantação: 91 m²
Área bruta de construção: 756 m²
Nº de pisos: 6 acima + 1 recuado / 2 cavesLocalização: Zona central do Porto, com excelentes acessos, proximidade a transportes, comércio, serviços e equipamentos urbanos.
Vantagens da Zona ARU
?? Potencial acesso a benefícios fiscais (IMI, IMT e IVA reduzido, mediante enquadramento legal)
?? Forte valorização futura
?? Elevada procura para habitação e arrendamento
Uma oportunidade sólida para promotores e investidores que procuram um ativo diferenciado, com enquadramento urbanístico favorável, no coração do Porto.
Visite-nos!

Características Gerais

  • Nº de Andares do Edifício 6

Galeria do imóvel

Prédio para construção no Porto
Prédio para construção no Porto
Prédio para construção no Porto
Prédio para construção no Porto
Prédio para construção no Porto
Prédio para construção no Porto

Localização do imóvel

Porto, Porto, Cedofeita, Santo Ildefonso, Sé, Miragaia, São Nicolau e Vitória

Referência do anúncio: R21818. Última atualização: 12 janeiro 2026.

Relatório de preços praticados nos últimos 8 meses

Porto, Porto, Cedofeita, Santo Ildefonso, Sé, Miragaia, São Nicolau e Vitória

Simule um Crédito Habitação

Os dados apresentados são meramente indicativos. Condições gerais
Seguir
Partilhar
PINTO LEITE & MACHADO VAZ - MEDIAÇÃO IMOBILIÁRIA, LDA
AMI 19489
351 ...
Chamada para a rede fixa nacional
Mostrar número
Nome
Email
Contacto
Formato inválido
Agende uma visita
Referência do anúncio: R21818.
Última atualização: 12 janeiro 2026.
Contactar
Veja também
Anúncios na mesma zona
Prédio urbano c/ elevado potencial de valorização — frente à estação de Valadares -Vila Nova de Gaia
Porto, Vila Nova de Gaia, Gulpilhares e Valadares
650 000 €
1
Maravilhoso edifício histórico situado numa das ruas mais conhecidas do Porto
Porto, Porto, Cedofeita, Santo Ildefonso, Sé, Miragaia, São Nicolau e Vitória
1 800 000 €
Casas para restauro
Porto, Vila Nova de Gaia, Oliveira do Douro
180 000 €
6
3
1
2 predios vendidos em conjunto muito perto do Marquês, com projecto aprovado
Porto, Porto, Cedofeita, Santo Ildefonso, Sé, Miragaia, São Nicolau e Vitória
1 550 000 €
Prédio comercial de 5 Pisos em Bonfim, Porto
Porto, Porto, Bonfim
1 650 000 €
Moradia para reconstruir e aumentar, Av Boavista
Porto, Porto, Ramalde
550 000 €
Prédio de uso misto no Cento do Porto.
Porto, Porto, Cedofeita, Santo Ildefonso, Sé, Miragaia, São Nicolau e Vitória
2 000 000 €
Bloco de apartamentos Boss Gardens
Porto, Porto, Paranhos
408 512 €
Investimento único: 11 apartamentos no centro histórico do Porto
Porto, Porto, Cedofeita, Santo Ildefonso, Sé, Miragaia, São Nicolau e Vitória
3 300 000 €
Prédio com potencial de construção, Boavista / Cedofeita / Porto
Porto, Porto, Cedofeita, Santo Ildefonso, Sé, Miragaia, São Nicolau e Vitória
498 500 €
Partilha o imóvel: Prédio para construção no Porto
Partilha este imóvel nas tuas redes sociais ou envia diretamente para o email dos teus amigos.
Partilhar por email
Adicione uma nota ao imóvel!
Só você é que vê as notas que adiciona. Os imóveis com notas ficam nos favoritos para os poder consultar mais tarde.
Excluíste o anúncio:
Prédio para construção no Porto