Pesquisar perto de mim
A aguardar a sua pesquisa
Voltar
Prédio Misto no Centro Histórico
Prédio Misto no Centro Histórico
Prédio Misto no Centro Histórico
Prédio Misto no Centro Histórico
Ver galeria (22)
Ver galeria (22)
Seguir
Partilhar

Prédio Misto no Centro Histórico

Portalegre, Elvas, Assunção, Ajuda, Salvador e Santo Ildefonso Ver no mapa
199 000 €
0 Quartos
0 WC's
440m2
Área Útil: 440m2
Certificação Energética: Isento

Descrição do anúncio

Situado numa das principais artérias do centro histórico de Elvas, este edifício misto de quatro pisos, que corresponde à antiga sede da PIDE em Elvas, é uma excelente oportunidade para quem procura investir numa das zonas mais emblemáticas, aliando valor histórico a um elevado potencial de valorização.

Este imóvel foi recentemente selecionado pela Câmara Municipal de Elvas e destacado como imóvel de elevado interesse, pela sua localização, valor histórico e potencial hoteleiro, no XXII Congresso da Associação dos Diretores de Hotéis de Portugal, realizado em março de 2026.

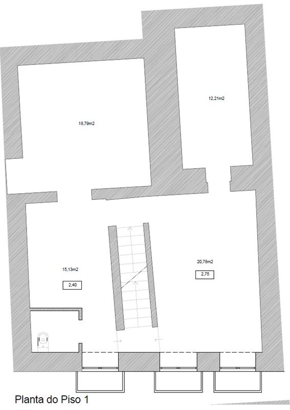
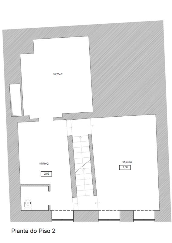
Ao nível do R/C é composto por dois espaços comerciais com entradas independentes: um espaço que poderá ser adaptado a comércio e o outro a restauração, uma vez que tem saída de fumos.

A zona de habitação também dispõe da sua própria entrada, dividida em diversas divisões nos restantes pisos (1º, 2º e 3º piso), com potencial para reconfiguração, adaptando-se a diferentes soluções, desde habitação própria a projetos turísticos.

No último piso, encontra-se um terraço com vistas sobre a cidade.

O telhado do edifício foi recuperado, encontrando-se o interior atualmente a necessitar de obras de renovação totais, o que permite uma remodelação personalizada, potenciando ainda mais as suas características únicas e o seu enquadramento histórico.

Com uma localização privilegiada, a poucos metros a pé da Praça da República, da Torre Fernandina, da ESBE (Escola Superior de Biociências de Elvas) e rodeado de uma vasta oferta de comércio local e serviços, este imóvel conjuga acessibilidade, centralidade e enorme potencial de valorização.

Não deixe escapar esta oportunidade e agende a sua visita.

Galeria do imóvel

Prédio Misto no Centro Histórico
Prédio Misto no Centro Histórico
Prédio Misto no Centro Histórico
Prédio Misto no Centro Histórico
Prédio Misto no Centro Histórico
Prédio Misto no Centro Histórico

Localização do imóvel

Portalegre, Elvas, Assunção, Ajuda, Salvador e Santo Ildefonso

Referência do anúncio: EDI_172. Última atualização: 13 maio 2026.

Relatório de preços praticados nos últimos 8 meses

Portalegre, Elvas, Assunção, Ajuda, Salvador e Santo Ildefonso

Simule um Crédito Habitação

Os dados apresentados são meramente indicativos. Condições gerais
Seguir
Partilhar
Fatima Ouro - Mediacao Imobiliaria, Unipessoal, Lda
AMI 20174
Nome
Email
Contacto
Formato inválido
Agende uma visita
Referência do anúncio: EDI_172.
Última atualização: 13 maio 2026.
Contactar
Veja também
Anúncios na mesma zona
Terreno com prédio elvas
Portalegre, Elvas, Assunção, Ajuda, Salvador e Santo Ildefonso
1 900 000 €
1
Moradia típica no centro histórico com dois pisos
Portalegre, Elvas, Assunção, Ajuda, Salvador e Santo Ildefonso
280 000 €
Prédio com excelente localização junto ao jardim em campo maior
Portalegre, Campo Maior, São João Baptista
180 000 €
Prédio >=T10 Venda em Sé e São Lourenço,Portalegre
Portalegre, Portalegre, Sé e São Lourenço
380 000 €
Restaurante em ponte de sôr
Portalegre, Ponte de Sor, Ponte de Sor, Tramaga e Vale de Açor
450 000 €
1
Moradia para investimento com projeto de arquitetura aprovado
Portalegre, Portalegre, Sé e São Lourenço
120 000 €
Prédio urbano para habitação e serviços
Portalegre, Portalegre, Alagoa
380 000 €
Moradia em construção em ervedal
Portalegre, Avis, Ervedal
125 000 €
1
Hotel de charme em imóvel HISTÓRICO, Portugal, Fronteira, Alto Alentejo
Portalegre, Fronteira, Fronteira
4 400 000 €
1
Prédio para recuperar centro histórico elvas
Portalegre, Elvas, Assunção, Ajuda, Salvador e Santo Ildefonso
320 000 €
1
Partilha o imóvel: Prédio Misto no Centro Histórico
Partilha este imóvel nas tuas redes sociais ou envia diretamente para o email dos teus amigos.
Partilhar por email
Adicione uma nota ao imóvel!
Só você é que vê as notas que adiciona. Os imóveis com notas ficam nos favoritos para os poder consultar mais tarde.
Excluíste o anúncio:
Prédio Misto no Centro Histórico