Pesquisar perto de mim
A aguardar a sua pesquisa
Voltar
Prédio c/ Projeto Aprovado! - Ao Centro do Porto (zona ARU - BOAVISTA)
Prédio c/ Projeto Aprovado! - Ao Centro do Porto (zona ARU - BOAVISTA)
Prédio c/ Projeto Aprovado! - Ao Centro do Porto (zona ARU - BOAVISTA)
Prédio c/ Projeto Aprovado! - Ao Centro do Porto (zona ARU - BOAVISTA)
Ver galeria (25)
Ver galeria (25)
Seguir
Partilhar

Prédio c/ Projeto Aprovado! - Ao Centro do Porto (zona ARU - BOAVISTA)

Porto, Porto, Cedofeita, Santo Ildefonso, Sé, Miragaia, São Nicolau e Vitória Ver no mapa
2 850 000 €
10 Quartos
0 WC's
1600m2
Área Útil: 1600m2
Área Bruta: 1600m2
Certificação Energética: F
Estado: Por Recuperar

Descrição do anúncio

Prédio c/ Projeto Aprovado! - Ao Centro do Porto (zona ARU - BOAVISTA)

Ref: 2700

Prédio localizado no centro do Porto, em zona ARU. 
Com área de cerca de 1600m²
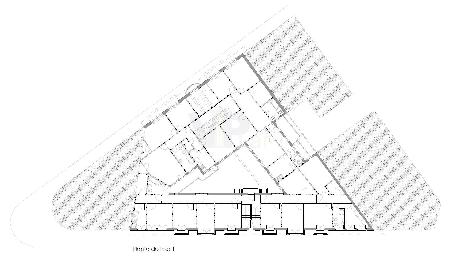
Com projeto aprovado para 15 frações (T1, T2, T3 e Duplex), pronto a começar!
Com excelente pátio interior, com luz natural e zona verde interior.
O prédio existente tem cave para garagens.
É atualmente r/c + 2 andares. No projeto aprovado, está previsto mais um piso.

Portanto, tratar-se-á de prédio para reconstrução, para 15 habitações,
Com cave + rés de chão + 3 andares.

Prédio com elevado potencial, dada a proximidade à Boavista e centro da Cidade.

A poucos minutos a pé das estações de metro da Casa da Música e do metro Carolina Micaelis.

Local de comércio, Supermercados, tudo nas proximidades, com transportes à porta.

Este projeto está concebido para o prédio já existente, que deverá manter a sua fachada que remonta aos anos 30, que muito valoriza as habitações para quem lá viver, uma vez que mantém a sua traça original, que faz parte da história da cidade do Porto.

Tem também a vantagem de manter as paredes exteriores, originando uma grande economia na construção do prédio

Excelente oportunidade de negócio!

*** Algumas das vantagens de investir em imóveis em zona ARU: ***
- Isenção de IMI por um período de três anos, incluindo o ano de conclusão das obras no imóvel.
- Isenção de IMT quando o comprador queira proceder a obras de reabilitação e as inicie no prazo máximo de 3 anos a contar da data de aquisição;
- Isenção de IMT na primeira transmissão do imóvel reabilitado, quando destinado em exclusivo para habitação própria e permanente ou arrendamento para habitação própria e permanente
- Aplica-se a taxa reduzida de 6% nas obras de reabilitação urbana executadas em imóveis localizados em ARU.
- As mais valias obtidas na primeira venda de imóvel localizada numa ARU e após obras de reabilitação são tributadas à taxa reduzida de 5%, sem prejuízo da opção pelo englobamento
- Os rendimentos prediais auferidos por proprietário, sujeito passivo de IRS e residente em Portugal, são tributados à taxa reduzida de 5% após a efetivação das obras de reabilitação.
- Redução de 50% das taxas devidas pela avaliação do estado de conservação
- Redução do valor das vária taxas municipais, como por exemplo a taxa de ocupação da via pública.

Marque já a sua Visita!
Para mais informações contacte-nos!

Características Gerais

  • Garagem

Galeria do imóvel

Prédio c/ Projeto Aprovado! - Ao Centro do Porto (zona ARU - BOAVISTA)
Prédio c/ Projeto Aprovado! - Ao Centro do Porto (zona ARU - BOAVISTA)
Prédio c/ Projeto Aprovado! - Ao Centro do Porto (zona ARU - BOAVISTA)
Prédio c/ Projeto Aprovado! - Ao Centro do Porto (zona ARU - BOAVISTA)
Prédio c/ Projeto Aprovado! - Ao Centro do Porto (zona ARU - BOAVISTA)
Prédio c/ Projeto Aprovado! - Ao Centro do Porto (zona ARU - BOAVISTA)

Localização do imóvel

Porto, Porto, Cedofeita, Santo Ildefonso, Sé, Miragaia, São Nicolau e Vitória

Referência do anúncio: 2700. Última atualização: 11 outubro 2025.

Relatório de preços praticados nos últimos 8 meses

Porto, Porto, Cedofeita, Santo Ildefonso, Sé, Miragaia, São Nicolau e Vitória

Simule um Crédito Habitação

Os dados apresentados são meramente indicativos. Condições gerais
Seguir
Partilhar
Viplar - Sociedade De Mediação Imobiliária, Lda
AMI 11665
228 ...
Chamada para a rede fixa nacional
Mostrar número
Nome
Email
Contacto
Formato inválido
Agende uma visita
Referência do anúncio: 2700.
Última atualização: 11 outubro 2025.
Contactar
Veja também
Anúncios na mesma zona
Prédio Venda em Lordelo do Ouro e Massarelos,Porto
Porto, Porto, Cedofeita, Santo Ildefonso, Sé, Miragaia, São Nicolau e Vitória
600 000 €
Prédio Venda em Santa Marinha e São Pedro da Afurada,Vila Nova de Gaia
Porto, Porto, Cedofeita, Santo Ildefonso, Sé, Miragaia, São Nicolau e Vitória
2 800 000 €
Prédio Venda em Cedofeita, Santo Ildefonso, Sé, Miragaia, São Nicolau e Vitória,Porto
Porto, Porto, Cedofeita, Santo Ildefonso, Sé, Miragaia, São Nicolau e Vitória
550 000 €
Prédio Venda em Gondomar (São Cosme), Valbom e Jovim,Gondomar
Porto, Gondomar, Gondomar (São Cosme), Valbom e Jovim
650 000 €
Prédio para recuperar, com elevador na Baixa do Porto
Porto, Porto, Cedofeita, Santo Ildefonso, Sé, Miragaia, São Nicolau e Vitória
850 000 €
7
1
Prédio com 7.000€/mês de rendimento expectável em cedofeita!
Porto, Porto, Cedofeita, Santo Ildefonso, Sé, Miragaia, São Nicolau e Vitória
925 000 €
Prédio Venda em Paranhos,Porto
Porto, Porto, Paranhos
950 000 €
Prédio Venda em Cedofeita, Santo Ildefonso, Sé, Miragaia, São Nicolau e Vitória,Porto
Porto, Porto, Cedofeita, Santo Ildefonso, Sé, Miragaia, São Nicolau e Vitória
550 000 €
Prédio no centro Histórico do Porto
Porto, Porto, Cedofeita, Santo Ildefonso, Sé, Miragaia, São Nicolau e Vitória
1 200 000 €
Prédio Venda em Cedofeita, Santo Ildefonso, Sé, Miragaia, São Nicolau e Vitória,Porto
Porto, Porto, Cedofeita, Santo Ildefonso, Sé, Miragaia, São Nicolau e Vitória
1 500 000 €
1
Partilha o imóvel: Prédio c/ Projeto Aprovado! - Ao Centro do Porto (zona ARU - BOAVISTA)
Partilha este imóvel nas tuas redes sociais ou envia diretamente para o email dos teus amigos.
Partilhar por email
Adicione uma nota ao imóvel!
Só você é que vê as notas que adiciona. Os imóveis com notas ficam nos favoritos para os poder consultar mais tarde.
Excluíste o anúncio:
Prédio c/ Projeto Aprovado! - Ao Centro do Porto (zona ARU - BOAVISTA)