Pesquisar perto de mim
A aguardar a sua pesquisa
Voltar
Penthouse com piscina e vistas fantásticas.
Penthouse com piscina e vistas fantásticas.
Penthouse com piscina e vistas fantásticas.
Penthouse com piscina e vistas fantásticas.
Ver galeria (25)
Ver galeria (25)
Seguir
Partilhar

Penthouse com piscina e vistas fantásticas.

Porto, Porto, Lordelo do Ouro e Massarelos Ver no mapa
2 900 000 €
3 Quartos
4 WC's
239m2
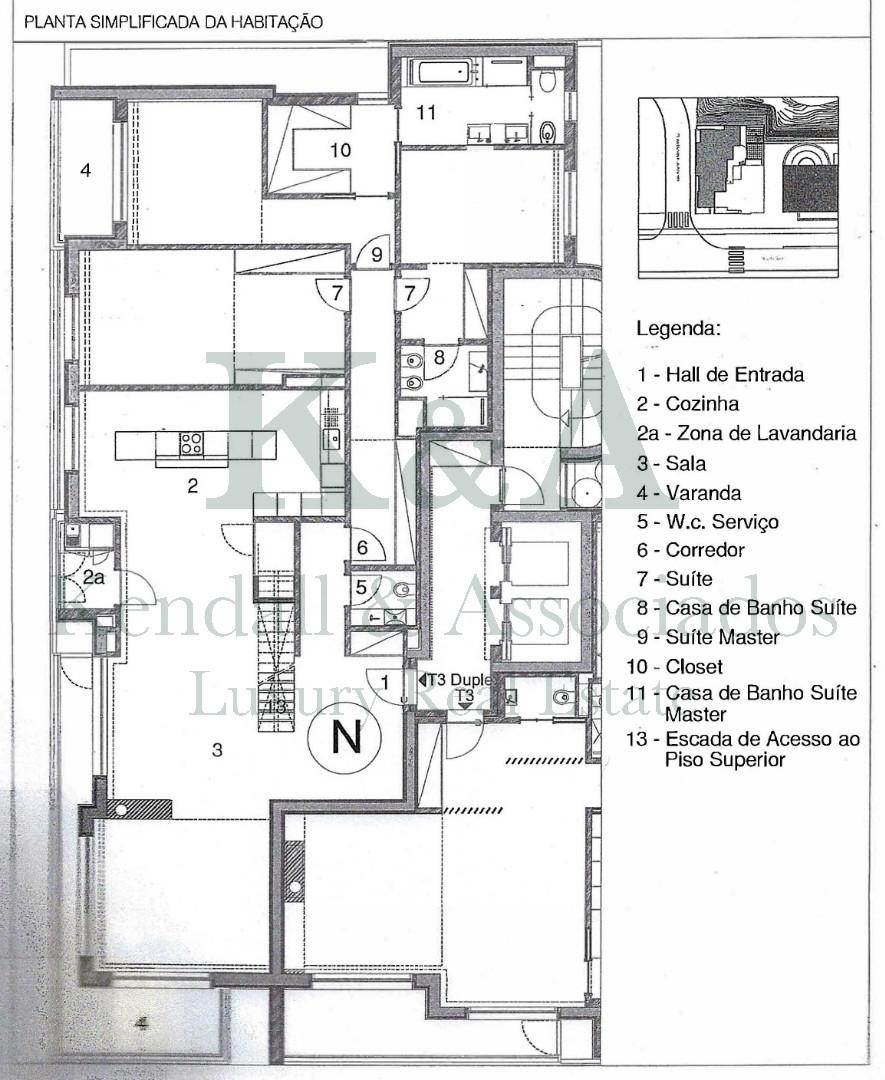
Área Útil: 239m2
Área Bruta: 506m2
Ano de Construção: 2020
Certificação Energética: A
Estado: Usado

Descrição do anúncio

Apartamento penthouse com terraço de 256m2, piscina privativa, e vistas únicas para a Foz do rio Douro.
Exclusivo KA.

A KA é uma empresa portuguesa, sediada na Foz, na cidade do Porto, desde 2005.

Estamos presentes em 4 áreas: Residencial, Lazer, Corporate, Hotéis e Resorts.

Na área do Residencial apostamos no mercado de luxo em zonas nobres, onde temos vendido os melhores imóveis.

Em 2007 decidimos investir também na Baixa do Porto e na sua reabilitação urbana.

Em 2008 fomos a primeira mediadora oficial portuguesa da SRU – Porto Vivo e ao longo destes anos temos dado o nosso contributo para a tão necessária reabilitação do centro histórico do Porto.

Em 2017 mudamos a nossa sede para a marginal da Foz, onde abrimos uma “flagship” da KA com grande visibilidade.

Em 2019, consolidamos a nossa equipa, participamos nos primeiros Salões Imobiliários e lançamos a primeira revista KA.

Em Janeiro de 2020 criamos o movimento de apoio a uma causa nobre: “Let’s help the homeless” - Vamos conseguir casa para os sem-abrigo do Porto.

Em Setembro de 2020 expandimos a marca KA para outras zonas do País, nomeadamente no Triangulo Dourado, Algarve.

Em 2022 abrimos um novo escritório no Algarve, localizado estrategicamente entre Vale de Lobo e Quinta do Lago.

Em 2023 iniciamos a nossa participação em feiras internacionais nomeadamente no MIPIM de Cannes.


 

Características Gerais

  • Garagem
  • Piscina
  • Terraço
  • Guarda Roupa
  • Varandas
  • Duplex

Galeria do imóvel

Penthouse com piscina e vistas fantásticas.
Penthouse com piscina e vistas fantásticas.
Penthouse com piscina e vistas fantásticas.
Penthouse com piscina e vistas fantásticas.
Penthouse com piscina e vistas fantásticas.
Penthouse com piscina e vistas fantásticas.

Localização do imóvel

Porto, Porto, Lordelo do Ouro e Massarelos

Referência do anúncio: KA3606. Última atualização: 03 dezembro 2025.

Relatório de preços praticados nos últimos 8 meses

Porto, Porto, Lordelo do Ouro e Massarelos

Simule um Crédito Habitação

Os dados apresentados são meramente indicativos. Condições gerais
Seguir
Partilhar
KENDALL & ASSOCIADO, MEDIAÇÃO IMOBILIÁRIA LDA / K & A Real Estate
AMI 6340
226 ...
Chamada para a rede fixa nacional
Mostrar número
Nome
Email
Contacto
Formato inválido
Agende uma visita
Referência do anúncio: KA3606.
Última atualização: 03 dezembro 2025.
Contactar
Veja também
Anúncios na mesma zona
Apartamento T3 Venda em Santa Marinha e São Pedro da Afurada,Vila Nova de Gaia
Porto, Porto, Lordelo do Ouro e Massarelos
575 000 €
3
3
1
Apartamento T3 Venda em Santa Marinha e São Pedro da Afurada,Vila Nova de Gaia
Porto, Porto, Lordelo do Ouro e Massarelos
635 000 €
3
3
1
Apartamento T3 Venda em Santa Marinha e São Pedro da Afurada,Vila Nova de Gaia
Porto, Porto, Lordelo do Ouro e Massarelos
815 000 €
3
3
1
Apartamento T3 Venda em Santa Marinha e São Pedro da Afurada,Vila Nova de Gaia
Porto, Porto, Lordelo do Ouro e Massarelos
795 000 €
3
3
1
Apartamento T4 Venda em Santa Marinha e São Pedro da Afurada,Vila Nova de Gaia
Porto, Porto, Lordelo do Ouro e Massarelos
1 600 000 €
4
3
1
Apartamento T3 Venda em Santa Marinha e São Pedro da Afurada,Vila Nova de Gaia
Porto, Porto, Lordelo do Ouro e Massarelos
865 000 €
3
3
1
Apartamento T3 Venda em Santa Marinha e São Pedro da Afurada,Vila Nova de Gaia
Porto, Porto, Lordelo do Ouro e Massarelos
620 000 €
3
3
1
Apartamento T4 Venda em Santa Marinha e São Pedro da Afurada,Vila Nova de Gaia
Porto, Porto, Lordelo do Ouro e Massarelos
1 700 000 €
4
3
1
Apartamento T3 Venda em Mafamude e Vilar do Paraíso,Vila Nova de Gaia
Porto, Vila Nova de Gaia, Mafamude e Vilar do Paraíso
440 000 €
3
3
1
Apartamento T3 Venda em Santa Marinha e São Pedro da Afurada,Vila Nova de Gaia
Porto, Porto, Lordelo do Ouro e Massarelos
665 000 €
3
3
1
Partilha o imóvel: Penthouse com piscina e vistas fantásticas.
Partilha este imóvel nas tuas redes sociais ou envia diretamente para o email dos teus amigos.
Partilhar por email
Adicione uma nota ao imóvel!
Só você é que vê as notas que adiciona. Os imóveis com notas ficam nos favoritos para os poder consultar mais tarde.
Excluíste o anúncio:
Penthouse com piscina e vistas fantásticas.