Pesquisar perto de mim
A aguardar a sua pesquisa
Voltar
OPORTUNIDADE ÚNICA: Moradia T3 com Projeto Aprovado em Infantas, Guimarães!
OPORTUNIDADE ÚNICA: Moradia T3 com Projeto Aprovado em Infantas, Guimarães!
OPORTUNIDADE ÚNICA: Moradia T3 com Projeto Aprovado em Infantas, Guimarães!
OPORTUNIDADE ÚNICA: Moradia T3 com Projeto Aprovado em Infantas, Guimarães!
Ver galeria (14)
Ver galeria (14)
Seguir
Partilhar

OPORTUNIDADE ÚNICA: Moradia T3 com Projeto Aprovado em Infantas, Guimarães!

Braga, Guimarães, Infantas Ver no mapa
127 000 €
3 Quartos
4 WC's
191m2
Área Útil: 191m2
Área Bruta: 228m2
Certificação Energética: Isento
Estado: Por Recuperar

Descrição do anúncio

OPORTUNIDADE ÚNICA: Moradia T3 com Projeto Aprovado em Infantas, Guimarães!

Esta é a oportunidade de construir a casa dos seus sonhos numa localização privilegiada em Infantas, Guimarães, perto da montanha da Penha. O projeto já está aprovado, oferecendo um T3 moderno e funcional.

- Tipologia T3: Moradia familiar com três quartos (duas suítes e um quarto adicional).
- Projeto Aprovado: A principal vantagem é ter um projeto já aprovado, o que acelera o processo de construção.
- Localização: Inserida na freguesia de Infantas, concelho de Guimarães.

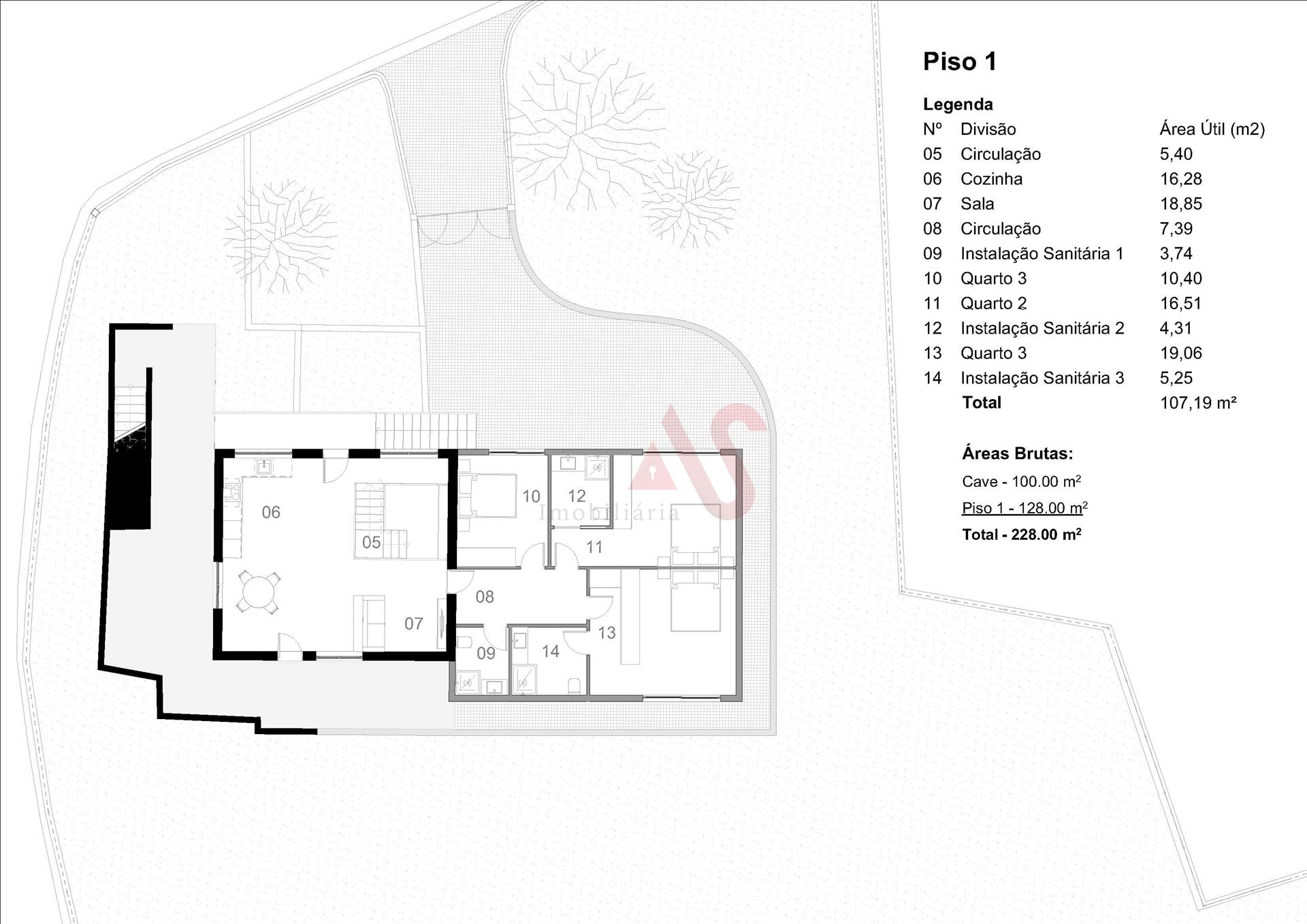
Áreas e Layout
A moradia dispõe de áreas generosas e um layout bem definido, conforme as plantas aprovadas:
- Área Bruta Total: 228.00 m²
- Área Útil Total: 190.90 m²
- Área Total do Terreno: 1303.50 m²

Layout Detalhado:
- Piso Cave (83,71 m² úteis): Inclui uma espaçosa garagem/arrumos (65,30 m²), WC completo, e áreas de circulação e arrumos adicionais.
- Piso 1 (107,19 m² úteis): Contempla cozinha (16,28 m²), sala (18,85 m²), hall dos quartos (7,39 m²), WC completo (3,74 m²), um quarto (10,40 m²), e duas suítes completas. A primeira suíte tem 16,51 m² de quarto e 4,31 m² de WC, enquanto a segunda oferece 19,06 m² de quarto e 5,25 m² de WC.

Distância ao Centro de Guimarães
- De carro: O trajeto demora cerca de 10 minutos.

Pontos de Interesse em Infantas e Arredores
- Proximidade ao Monte da Penha: A partir de Infantas, está a uma curta distância de carro, apenas a 6 minutos, do Santuário da Penha, que oferece as melhores vistas panorâmicas sobre a região e áreas de lazer arborizadas.
- Gastronomia Regional: Nas redondezas de Infantas e freguesias vizinhas (como Mesão Frio), existem vários restaurantes de comida tradicional minhota, conhecidos pelo cabrito e pelo arroz de pica-no-chão. 

Esta é a oportunidade perfeita para investir numa moradia com um projeto moderno e todas as comodidades necessárias, num local privilegiado de Guimarães.

Referência: ASG26029

Por sermos intermediários de crédito devidamente autorizados pelo Banco de Portugal (Reg. 2736), fazemos a gestão de todo o seu processo de financiamento, sempre com as melhores soluções de mercado.

Porquê escolher a AS Imobiliária?
Com mais de 16 anos no ramo imobiliário e milhares de famílias felizes, dispomos de 9 agências estrategicamente localizadas, para o servir com proximidade, corresponder à suas expectativas e ajudá-lo a adquirir a sua casa de sonho. Compromisso, Competência e Confiança são os nossos valores que entregamos aos nossos Clientes na hora de comprar, arrendar ou vender o seu imóvel.

A nossa prioridade é a sua Felicidade!

Na AS Imobiliária somos apaixonados por vender casas!

Especialistas imobiliários em Vizela ; Guimarães ;  Taipas ; Felgueiras ; Lousada ; Santo Tirso ; Barcelos ; São João da Madeira ; Porto ; Braga
 

Características Gerais

  • Garagem
  • Independente

Galeria do imóvel

OPORTUNIDADE ÚNICA: Moradia T3 com Projeto Aprovado em Infantas, Guimarães!
OPORTUNIDADE ÚNICA: Moradia T3 com Projeto Aprovado em Infantas, Guimarães!
OPORTUNIDADE ÚNICA: Moradia T3 com Projeto Aprovado em Infantas, Guimarães!
OPORTUNIDADE ÚNICA: Moradia T3 com Projeto Aprovado em Infantas, Guimarães!
OPORTUNIDADE ÚNICA: Moradia T3 com Projeto Aprovado em Infantas, Guimarães!
OPORTUNIDADE ÚNICA: Moradia T3 com Projeto Aprovado em Infantas, Guimarães!

Localização do imóvel

Braga, Guimarães, Infantas

Referência do anúncio: ASG26029. Última atualização: 28 janeiro 2026.

Relatório de preços praticados nos últimos 8 meses

Braga, Guimarães, Infantas

Simule um Crédito Habitação

Os dados apresentados são meramente indicativos. Condições gerais
Seguir
Partilhar
AS Imobiliária
AMI 13249
253 ...
Chamada para a rede fixa nacional
Mostrar número
Nome
Email
Contacto
Formato inválido
Agende uma visita
Referência do anúncio: ASG26029.
Última atualização: 28 janeiro 2026.
Contactar
Veja também
Anúncios na mesma zona
Moradia t4 c/ piscina - nova construção
Braga, Barcelos, Lama
550 000 €
4
3
Apartamento T3 em Este (São Pedro e São Mamede), Braga
Braga, Braga, Este (São Pedro e São Mamede)
195 000 €
3
1
Moradia T3 para venda
Braga, Vieira do Minho, Vieira do Minho
198 000 €
3
2
Moradia Individual T3 para restauro em Nespereira, Guimarães
Braga, Guimarães, Nespereira
239 000 €
3
1
Moradia para Alojamento Local na Vila de Caldelas, Amares
Braga, Amares, Caldelas, Sequeiros e Paranhos
525 000 €
16
1
Moradia T4 Venda em Esqueiros, Nevogilde e Travassós,Vila Verde
Braga, Vila Verde, Esqueiros, Nevogilde e Travassós
239 900 €
4
2
Moradia de Gaveto T3 em Tebosa , Braga
Braga, Braga, Tebosa
370 000 €
3
1
Moradia com possibilidade de construção de 3 habitações T3+1 em Nespereira, Guimarães
Braga, Guimarães, Nespereira
330 000 €
12
1
Moradia T3 Venda em Braga (São Vítor),Braga
Braga, Braga, Adaúfe
820 000 €
3
1
Moradia T3 para venda
Braga, Cabeceiras de Basto, Refojos de Basto, Outeiro e Painzela
319 000 €
3
3
Partilha o imóvel: OPORTUNIDADE ÚNICA: Moradia T3 com Projeto Aprovado em Infantas, Guimarães!
Partilha este imóvel nas tuas redes sociais ou envia diretamente para o email dos teus amigos.
Partilhar por email
Adicione uma nota ao imóvel!
Só você é que vê as notas que adiciona. Os imóveis com notas ficam nos favoritos para os poder consultar mais tarde.
Excluíste o anúncio:
OPORTUNIDADE ÚNICA: Moradia T3 com Projeto Aprovado em Infantas, Guimarães!