Pesquisar perto de mim
A aguardar a sua pesquisa
Voltar
Oportunidade - Restaurante à Venda em Santa Eulália.
Oportunidade - Restaurante à Venda em Santa Eulália.
Oportunidade - Restaurante à Venda em Santa Eulália.
Oportunidade - Restaurante à Venda em Santa Eulália.
Ver galeria (22)
Ver galeria (22)
Seguir
Partilhar

Oportunidade - Restaurante à Venda em Santa Eulália.

Faro, Albufeira, Albufeira e Olhos de Água Ver no mapa
400 000 €
0 Quartos
1 WC's
81m2
Área Útil: 81m2
Área Bruta: 81m2
Ano de Construção: 1986
Certificação Energética: B
Estado: Usado

Descrição do anúncio

Quem nunca imaginou ser proprietário de um restaurante de prestígio, onde criatividade, rentabilidade, clientes e amigos se juntam todos os dias no mesmo local. 
Venha conhecer esta oportunidade! Um restaurante totalmente equipado, com capacidade para aproximadamente 100 pessoas, localizado no coração de Santa Eulália, uma das áreas mais desejadas e movimentadas de Albufeira.

O espaço conta com terraços amplos perfeitos para os dias de sol, espaço interior e estacionamento à porta para maior conveniência dos seus clientes. 
Já possui uma clientela fiel e estabelecida, o que significa que terá resultados a partir do 1º dia.
O restaurante está situado numa pequena galeria com lojas e outros restaurantes, próximo de hotéis e da famosa rua da Oura, o que atrai um grande fluxo de pessoas.
Outro ponto forte é a equipe, que já conta com bons funcionários, garantindo a continuidade do serviço de qualidade.

Para mais informações, contacte-nos!

Galeria do imóvel

Oportunidade - Restaurante à Venda em Santa Eulália.
Oportunidade - Restaurante à Venda em Santa Eulália.
Oportunidade - Restaurante à Venda em Santa Eulália.
Oportunidade - Restaurante à Venda em Santa Eulália.
Oportunidade - Restaurante à Venda em Santa Eulália.
Oportunidade - Restaurante à Venda em Santa Eulália.

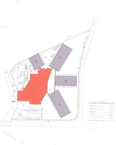
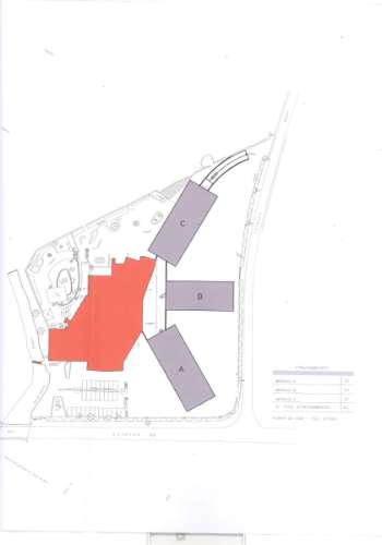
Localização do imóvel

Faro, Albufeira, Albufeira e Olhos de Água

Referência do anúncio: VMJ-1685. Última atualização: 19 março 2025.

Relatório de preços praticados nos últimos 8 meses

Faro, Albufeira, Albufeira e Olhos de Água

Simule um Crédito Habitação

Os dados apresentados são meramente indicativos. Condições gerais
Seguir
Partilhar
FLUXONOTÁVEL, UNIPESSOAL LDA. (Algarve Imóveis)
AMI 15253
289 ...
Chamada para a rede fixa nacional
Mostrar número
Nome
Email
Contacto
Formato inválido
Agende uma visita
Referência do anúncio: VMJ-1685.
Última atualização: 19 março 2025.
Contactar
Veja também
Anúncios na mesma zona
Estabelecimento para Comércio com 80 m2 na baixa de Olhão
Faro, Olhão, Olhão
215 000 €
2
Hotel de 18 + 20 quartos autorizados. Portugal, Algarve, Lagos.
Faro, Lagos, Lagos (São Sebastião e Santa Maria)
4 000 000 €
1
Restaurante em Quarteira
Faro, Loulé, Quarteira
850 000 €
Edifício Comercial em Alvor
Faro, Portimão, Alvor
690 000 €
2
Loja Venda em Vila Nova de Cacela,Vila Real de Santo António
Faro, Vila Real de Santo António, Vila Nova de Cacela
175 000 €
Terreno com Projeto para Hotel em Santa Bárbara de Nexe
Faro, Faro, Santa Bárbara de Nexe
3 500 000 €
Restaurante Venda em Olhão,Olhão
Faro, Olhão, Olhão
300 000 €
Restaurante pronto a utilizar – Histórico e no Coração de Lagos
Faro, Lagos, Lagos (São Sebastião e Santa Maria)
395 000 €
3
Fantástico terreno com início de construção hoteleira
Faro, Lagos, Luz
2 800 000 €
Espaço comercial ou armazém - santa eulália - albufeira oportunidade única.
Faro, Albufeira, Albufeira e Olhos de Água
710 000 €
Partilha o imóvel: Oportunidade - Restaurante à Venda em Santa Eulália.
Partilha este imóvel nas tuas redes sociais ou envia diretamente para o email dos teus amigos.
Partilhar por email
Adicione uma nota ao imóvel!
Só você é que vê as notas que adiciona. Os imóveis com notas ficam nos favoritos para os poder consultar mais tarde.
Excluíste o anúncio:
Oportunidade - Restaurante à Venda em Santa Eulália.