Pesquisar perto de mim
A aguardar a sua pesquisa
Voltar
Moradias em Projeto de Arquitetura
Moradias em Projeto de Arquitetura
Moradias em Projeto de Arquitetura
Moradias em Projeto de Arquitetura
Ver galeria (45)
Ver galeria (45)
Seguir
Partilhar

Moradias em Projeto de Arquitetura

Faro, Castro Marim, Odeleite Ver no mapa
90 000 €
1 Quartos
2 WC's
133,8m2
Área Útil: 133,8m2
Área Bruta: 111,2m2
Certificação Energética: Isento

Descrição do anúncio

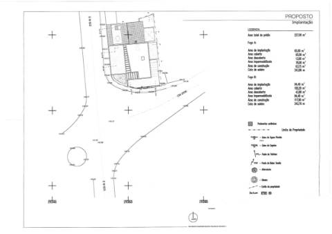
Oportunidade Imperdível de Investimento em Odeleite, Algarve: Dois Artigos com Projeto de Arquitetura Aprovado para Moradias!

Situadas na tranquila localidade da Tenência, em Odeleite, Algarve, estas duas propriedades oferecem um projeto aprovado para a construção de duas moradias distintas, sendo uma excelente oportunidade de investimento para habitação própria ou turismo rural.

- Moradia T1+1 com Projeto de Arquitetura Aprovado: Com um layout moderno e funcional, esta moradia destaca-se pela integração de áreas ao ar livre com dois logradouros no rés-do-chão, perfeito para desfrutar do clima algarvio. O interior inclui uma sala com cozinha em open space, um quarto espaçoso, casa de banho, além de uma mezzanine que pode servir como segundo quarto ou escritório, com acesso a um terraço exclusivo, ideal para momentos de lazer ao ar livre.

- Moradia T0+1 com Projeto de Arquitetura Aprovado: Perfeita para quem procura um espaço mais compacto, esta moradia apresenta um logradouro frontal acolhedor e uma disposição interna otimizada. Composta por uma sala com cozinha em open space no rés-do-chão, casa de banho, e uma mezzanine com terraço, esta moradia oferece uma charmosa solução para quem procura uma vida minimalista sem abrir mão do conforto.

Ambas as propriedades estão localizadas numa região tranquila e verdejante, proporcionando uma excelente qualidade de vida. Com projetos de Arquitetura já aprovados, esta é uma oportunidade ideal para desenvolver um espaço personalizado e exclusivo no coração do Algarve. Seja para habitação ou como investimento no setor turístico, estas moradias têm tudo para se tornar o refúgio perfeito.

Não perca esta oportunidade única!

Contacte-nos e saiba mais sobre este investimento em Odeleite.

Você Tem o Sonho... Nós Temos a Casa!

Galeria do imóvel

Moradias em Projeto de Arquitetura
Moradias em Projeto de Arquitetura
Moradias em Projeto de Arquitetura
Moradias em Projeto de Arquitetura
Moradias em Projeto de Arquitetura
Moradias em Projeto de Arquitetura

Localização do imóvel

Faro, Castro Marim, Odeleite

Referência do anúncio: 2024110. Última atualização: 06 agosto 2025.

Relatório de preços praticados nos últimos 8 meses

Faro, Castro Marim, Odeleite

Simule um Crédito Habitação

Os dados apresentados são meramente indicativos. Condições gerais
Seguir
Partilhar
D.M.E. Real State Mediacao Imobiliaria Lda
AMI 11885
Nome
Email
Contacto
Formato inválido
Agende uma visita
Referência do anúncio: 2024110.
Última atualização: 06 agosto 2025.
Contactar
Veja também
Anúncios na mesma zona
Moradia t2 em castro marim, no golf, a 10 min da praia
Faro, Castro Marim, Castro Marim
432 500 €
2
3
Moradia t2 em cabanas de tavira
Faro, Tavira, Luz de Tavira e Santo Estêvão
330 000 €
3
2
Moradia T3 em Resort de Luxo no Algarve!!
Faro, Castro Marim, Castro Marim
465 000 €
3
3
Moradia Isolada V4 com Piscina - O Refúgio de Luxo que Você Merece em Lagos
Faro, Lagos, Lagos (São Sebastião e Santa Maria)
2 400 000 €
4
4
Moradia Isolada V4 com Piscina - O Refúgio de Luxo que Você Merece em Lagos
Faro, Lagos, Lagos (São Sebastião e Santa Maria)
2 400 000 €
4
4
Moradia Isolada V4 com Piscina - O Refúgio de Luxo que Você Merece em Lagos
Faro, Lagos, Lagos (São Sebastião e Santa Maria)
2 400 000 €
4
4
Moradia Isolada V4 com Piscina - O Refúgio de Luxo que Você Merece em Lagos
Faro, Lagos, Lagos (São Sebastião e Santa Maria)
2 400 000 €
4
4
Moradia Isolada V4 com Piscina - O Refúgio de Luxo que Você Merece em Lagos
Faro, Lagos, Lagos (São Sebastião e Santa Maria)
2 400 000 €
4
4
Andar Moradia T2 Duplex em Vale do Lobo, Algarve
Faro, Loulé, Almancil
675 000 €
2
3
Moradia em Banda T3 Venda em Salir,Loulé
Faro, Loulé, Salir
115 000 €
3
1
Partilha o imóvel: Moradias em Projeto de Arquitetura
Partilha este imóvel nas tuas redes sociais ou envia diretamente para o email dos teus amigos.
Partilhar por email
Adicione uma nota ao imóvel!
Só você é que vê as notas que adiciona. Os imóveis com notas ficam nos favoritos para os poder consultar mais tarde.
Excluíste o anúncio:
Moradias em Projeto de Arquitetura