Pesquisar perto de mim
A aguardar a sua pesquisa
Voltar
Moradia V1 em Construção com lugar de estacionamento | Matosinhos Mercado
Moradia V1 em Construção com lugar de estacionamento | Matosinhos Mercado
Moradia V1 em Construção com lugar de estacionamento | Matosinhos Mercado
Moradia V1 em Construção com lugar de estacionamento | Matosinhos Mercado
Ver galeria (18)
Ver galeria (18)
Seguir
Partilhar

Moradia V1 em Construção com lugar de estacionamento | Matosinhos Mercado

Porto, Matosinhos, Matosinhos e Leça da Palmeira Ver no mapa
417 300 €
1 Quartos
1 WC's
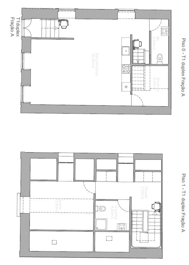
136m2
Área Útil: 136m2
Área Bruta: 148m2
Ano de Construção: 2026
Certificação Energética: A
Estado: Em Construção

Descrição do anúncio

Moradia V1 em Construção com lugar de estacionamento | Matosinhos Mercado
Inserida num novo empreendimento de excelência em Matosinhos Mercado, esta moradia V1 destaca-se pela sua localização privilegiada, a poucos minutos do mar e numa das zonas mais prestigiadas da cidade.
Este projeto foi cuidadosamente concebido para proporcionar conforto, modernidade e qualidade de vida, reunindo soluções habitacionais que se adaptam a diferentes estilos de vida.
O empreendimento é composto por 11 unidades:
Apartamentos T0, T1, T1 Duplex e T2 Duplex
Moradias independentes com maior privacidadeO edifício principal integra quatro apartamentos (todos com estacionamento, exceto o T0), enquanto as restantes sete unidades são moradias, ideais para quem valoriza espaço e tranquilidade.
? Destaques da Moradia:
Estacionamento privativo
Excelente exposição e luminosidade
Acabamentos de qualidade superiorO RM Villas combina uma localização exclusiva com uma arquitetura contemporânea e atenção ao detalhe, oferecendo um estilo de vida único, junto à costa e com todos os serviços essenciais nas proximidades.
#127754; Viver perto do mar com conforto e elegância
#128197; Conclusão prevista: 1º semestre de 2028


DOMUS TRIBUTO
Na Domus Tributo acreditamos que a mediação imobiliária deve ser exercida com método, responsabilidade e visão estratégica. Não somos uma imobiliária de promessas rápidas nem de discursos vazios. Somos uma empresa de processo, estrutura e acompanhamento real.
O nosso maior músculo no mercado não está no volume de imóveis, mas na forma como assumimos cada imóvel. Preferimos trabalhar com menos produto, mas com total responsabilidade sobre o seu posicionamento, divulgação, negociação e conclusão segura.
Atuamos sempre com base em dados reais, conhecimento profundo do mercado local e análise criteriosa de cada ativo. Não trabalhamos com achismos, valores inflacionados ou expectativas
irrealistas.
A Domus Tributo posiciona-se como um parceiro estratégico do proprietário e do investidor. O nosso papel não é pressionar decisões, mas baixar defesas, criar confiança e liderar o processo com profissionalismo.
Defendemos a exclusividade como ferramenta de proteção, nunca como imposição. Para nós, exclusividade significa responsabilidade total.
No trabalho com investidores, não prometemos lucros. Trabalhamos com localização, liquidez, procura comprovada e margem de segurança.
Na cedência de posição antes da escritura, assumimos um papel ativo na divulgação, na captação de interessados e na validação do negócio.
Internamente, acreditamos em consistência de discurso, formação contínua e método. Ser Domus Tributo é assumir postura, ética e responsabilidade.
 

Características Gerais

  • Cozinha Equipada
  • Garagem
  • Estacionamento
  • Guarda Roupa
  • Em Banda

Galeria do imóvel

Moradia V1 em Construção com lugar de estacionamento | Matosinhos Mercado
Moradia V1 em Construção com lugar de estacionamento | Matosinhos Mercado
Moradia V1 em Construção com lugar de estacionamento | Matosinhos Mercado
Moradia V1 em Construção com lugar de estacionamento | Matosinhos Mercado
Moradia V1 em Construção com lugar de estacionamento | Matosinhos Mercado
Moradia V1 em Construção com lugar de estacionamento | Matosinhos Mercado

Localização do imóvel

Porto, Matosinhos, Matosinhos e Leça da Palmeira

Referência do anúncio: DT2055/MT_A. Última atualização: 07 abril 2026.

Relatório de preços praticados nos últimos 8 meses

Porto, Matosinhos, Matosinhos e Leça da Palmeira

Simule um Crédito Habitação

Os dados apresentados são meramente indicativos. Condições gerais
Seguir
Partilhar
TRIBUTO PONTUAL - UNIPESSOAL LDA
AMI 16899
+35 ...
Chamada para a rede fixa nacional
Mostrar número
Nome
Email
Contacto
Formato inválido
Agende uma visita
Referência do anúncio: DT2055/MT_A.
Última atualização: 07 abril 2026.
Contactar
Veja também
Anúncios na mesma zona
Moradia T4 Venda em Touguinha e Touguinhó,Vila do Conde
Porto, Vila do Conde, Touguinha e Touguinhó
Sob consulta
4
4
Moradia de Luxo T3
Porto, Vila do Conde, Árvore
415 000 €
3
1
Moradia de luxo junto à Avenida da República, Vila Nova de Gaia
Porto, Vila Nova de Gaia, Mafamude e Vilar do Paraíso
650 000 €
4
6
Moradia em Banda T3 Venda em Fânzeres e São Pedro da Cova,Gondomar
Porto, Gondomar, Fânzeres e São Pedro da Cova
510 000 €
3
5
Moradia T3+1 em Nogueira da Maia, Maia
Porto, Maia, Nogueira e Silva Escura
980 000 €
4
3
1
Andar Moradia T3 Duplex em Pedrouços, Maia
Porto, Maia, Pedrouços
350 000 €
3
2
1
Moradia T3 para venda
Porto, Felgueiras, Vila Fria e Vizela (São Jorge)
280 000 €
3
2
Moradia de luxo T3 com piscina aquecida em Santa Eulália, Vizela
Porto, Felgueiras, Revinhade
795 000 €
3
6
1
Ótima oportunidade de moradia T3 Gondomar!
Porto, Gondomar, Fânzeres e São Pedro da Cova
530 000 €
3
3
Palacete T4 no Centro de Vila Nova de Gaia!!
Porto, Vila Nova de Gaia, Santa Marinha e São Pedro da Afurada
1 750 000 €
4
4
Partilha o imóvel: Moradia V1 em Construção com lugar de estacionamento | Matosinhos Mercado
Partilha este imóvel nas tuas redes sociais ou envia diretamente para o email dos teus amigos.
Partilhar por email
Adicione uma nota ao imóvel!
Só você é que vê as notas que adiciona. Os imóveis com notas ficam nos favoritos para os poder consultar mais tarde.
Excluíste o anúncio:
Moradia V1 em Construção com lugar de estacionamento | Matosinhos Mercado