Pesquisar perto de mim
A aguardar a sua pesquisa
Voltar
Moradia t4 nova com "piscina" em serzedelo, guimarães
Moradia t4 nova com "piscina" em serzedelo, guimarães
Moradia t4 nova com "piscina" em serzedelo, guimarães
Moradia t4 nova com "piscina" em serzedelo, guimarães
Ver galeria (35)
Ver galeria (35)
Seguir
Partilhar

Moradia t4 nova com "piscina" em serzedelo, guimarães

Braga, Guimarães, Serzedelo Ver no mapa
259 500 €
4 Quartos
3 WC's
246m2
Área Útil: 246m2
Área Bruta: 246m2
Certificação Energética: N/A
Estado: Novo

Descrição do anúncio

Moradia T4 em construção com piscina e terreno de arvores de fruto.
Próximo à entrada da Auto-Estrada de Serzedelo, com boa exposição solar e vistas desafogadas.  

Arquitetura moderna com excelentes áreas interiores e exteriores.

Descrição:Excelência construção
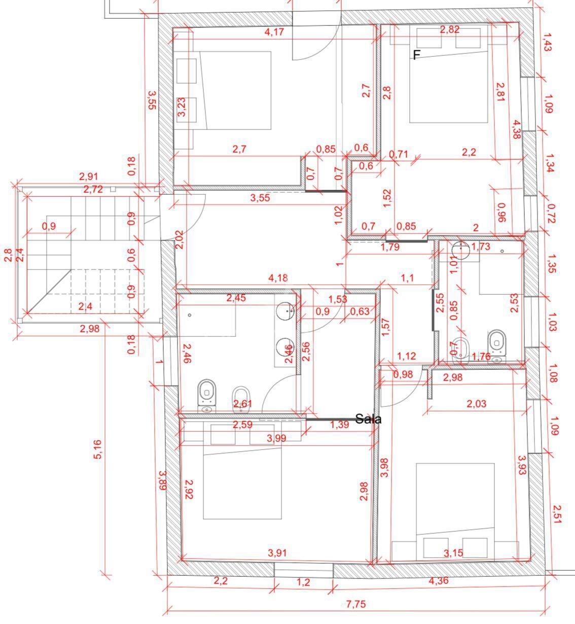
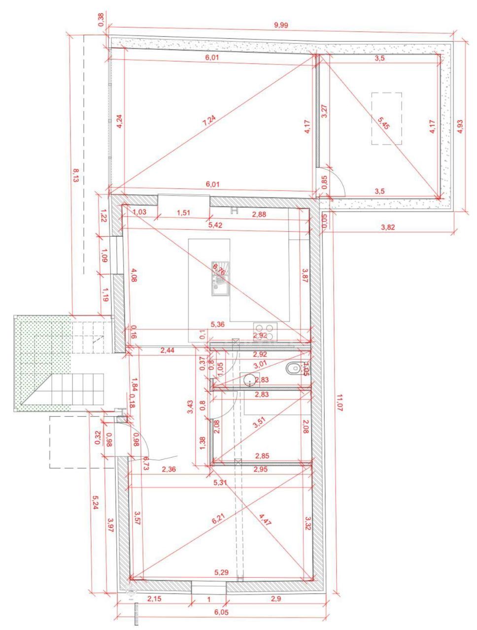
Área Terreno: 1 333m2 e 246m2 de Habitação distribuídos por dois pisos pelos seguintes cómodos:

1º Piso (possibilidade de acesso térreo):
4 quartos, um deles suite, 1 casa de balho de serviço, 

R/C:Cozinha e sala de jantar, sala de estar e uma  casa de banho de serviço, 
ANEXO:Garagem para 3 carros e WC 
A Moradia encontrar se na fase inicial de acabamentos e o preço de venda nesta fase, apresentado imagens de exemplos de conclusão.Possibilidade de terminar a obra com escolha de materiais apresentando o caderno de encargos. O valor aproximado de conclusão é de: 200.000 €

Moradia excelente em todas as opções com excelente exposição solar, arquitetura moderna, ideal para viver ou investir.

Localizada a 13 Km de Guimarães, a 40 Km do Aeroporto do Porto.
"Possibilidade de Crédito Auto-Construção, com benifico fiscal"
O meu nome é Orlando Silva e sou consultor imobiliário independente da Predimed Portugal.
Acompanho o cliente em todo processo da sua compra e o processo de financiamento com a melhor proposta de "Credito aprovado em 48 horas"!

Marque já a sua visita!!!
Orlando Silva - Consultor Predimed [email protected]. 911032776Predimed Portugal - AMI: 13558


Predimed Imobiliária, Mediação Imobiliária, Lda.
Avenida Brasil 43, 12º Andar, 1700-062 Lisboa
Licença AMI nº 22503
Pessoa Coletiva nº 517 239 345
Seguro Responsabilidade Civil: Nº de Apólice RC65379424 Fidelidade

Características Gerais

  • Nº de Estacionamentos 3

Galeria do imóvel

Moradia t4 nova com "piscina" em serzedelo, guimarães
Moradia t4 nova com "piscina" em serzedelo, guimarães
Moradia t4 nova com "piscina" em serzedelo, guimarães
Moradia t4 nova com "piscina" em serzedelo, guimarães
Moradia t4 nova com "piscina" em serzedelo, guimarães
Moradia t4 nova com "piscina" em serzedelo, guimarães

Localização do imóvel

Braga, Guimarães, Serzedelo

Referência do anúncio: 057818. Última atualização: 24 abril 2026.

Relatório de preços praticados nos últimos 8 meses

Braga, Guimarães, Serzedelo

Simule um Crédito Habitação

Os dados apresentados são meramente indicativos. Condições gerais
Seguir
Partilhar
Predimed Imobiliaria Mediacao Imobiliaria Lda
AMI 22503
Nome
Email
Contacto
Formato inválido
Agende uma visita
Referência do anúncio: 057818.
Última atualização: 24 abril 2026.
Contactar
Veja também
Anúncios na mesma zona
Moradia t3 - lage, vila verde
Braga, Vila Verde, Lage
475 000 €
3
3
Moradia T3 Venda em Ronfe,Guimarães
Braga, Guimarães, Ronfe
445 000 €
3
3
Moradia t3 - lage, vila verde
Braga, Vila Verde, Lage
215 000 €
3
3
Moradia individual térrea t3 (suítes) em braga
Braga, Braga, Mire de Tibães
750 000 €
3
4
Moradia t3 v n famalicão
Braga, Vila Nova de Famalicão, Vila Nova de Famalicão e Calendário
400 000 €
3
3
Moradia Individual Térrea T3+1
Braga, Vila Nova de Famalicão, Vila Nova de Famalicão e Calendário
Sob consulta
3
3
Moradias de Tipologia T4+1 Novas
Braga, Vila Nova de Famalicão, Vila Nova de Famalicão e Calendário
Sob consulta
4
5
Moradia - nova construção - distrito do porto
Braga, Barcelos, Lama
385 000 €
3
Moradia T3 Venda em Castelões,Vila Nova de Famalicão
Braga, Vila Nova de Famalicão, Castelões
395 000 €
3
3
1
Moradia T6 com piscina em S. João, Vizela
Braga, Vizela, Caldas de Vizela (São Miguel e São João)
330 000 €
6
5
1
Partilha o imóvel: Moradia t4 nova com "piscina" em serzedelo, guimarães
Partilha este imóvel nas tuas redes sociais ou envia diretamente para o email dos teus amigos.
Partilhar por email
Adicione uma nota ao imóvel!
Só você é que vê as notas que adiciona. Os imóveis com notas ficam nos favoritos para os poder consultar mais tarde.
Excluíste o anúncio:
Moradia t4 nova com "piscina" em serzedelo, guimarães