Pesquisar perto de mim
A aguardar a sua pesquisa
Voltar
Moradia t4, em construção - cuba
Moradia t4, em construção - cuba
Moradia t4, em construção - cuba
Moradia t4, em construção - cuba
Ver galeria (38)
Ver galeria (38)
Seguir
Partilhar

Moradia t4, em construção - cuba

Beja, Cuba, Cuba Ver no mapa
160 000 €
4 Quartos
3 WC's
180m2
Área Útil: 180m2
Área Bruta: 24665m2
Ano de Construção: 1986
Certificação Energética: N/D
Estado: Em Construção

Descrição do anúncio

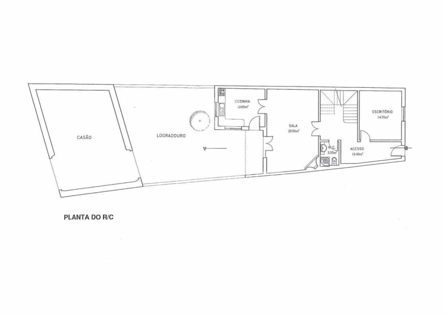
Moradia T4 em construção na Vila de Cuba com acesso a duas vias públicas, constituída ao nível do rés do chão por um hall, um quarto, uma casa de banho, sala, cozinha, logradouro e garagem e ao nível do primeiro andar por uma suite, dois quartos e uma casa de banho, sótão;
Moradia independente inserida numa zona tranquila da localidade de Cuba, com excelente exposição solar, proporciona ambiente calmo e vivência saudável;
A histórica vila de Cuba é um dos catorze concelhos do distrito de Beja situando-se a noroeste da capital de distrito, (https://www.cm-cuba.pt/index.php?option=com_content&view=article&id=66&Itemid=883 ); 
O atual proprietário exerce atividade no âmbito da construção civil, propondo-se a concluir a obra, mediante um valor extra a acertar com pretenso comprador; 
*O presente anúncio tem caráter informativo e não dispensa a visita ao imóvel nem a consulta dos respetivos documentos identificativos.



Predimed Imobiliária, Mediação Imobiliária, Lda.
Avenida Brasil 43, 12º Andar, 1700-062 Lisboa
Licença AMI nº 22503
Pessoa Coletiva nº 517 239 345
Seguro Responsabilidade Civil: Nº de Apólice RC65379424 Fidelidade

Características Gerais

  • Nº de Estacionamentos 4

Galeria do imóvel

Moradia t4, em construção - cuba
Moradia t4, em construção - cuba
Moradia t4, em construção - cuba
Moradia t4, em construção - cuba
Moradia t4, em construção - cuba
Moradia t4, em construção - cuba

Localização do imóvel

Beja, Cuba, Cuba

Referência do anúncio: 036832. Última atualização: 25 julho 2025.

Relatório de preços praticados nos últimos 8 meses

Beja, Cuba, Cuba

Simule um Crédito Habitação

Os dados apresentados são meramente indicativos. Condições gerais
Seguir
Partilhar
Predimed Imobiliaria Mediacao Imobiliaria Lda
AMI 22503
Nome
Email
Contacto
Formato inválido
Agende uma visita
Referência do anúncio: 036832.
Última atualização: 25 julho 2025.
Contactar
Veja também
Anúncios na mesma zona
Moradia T3 - Santa Luzia
Beja, Ourique, Garvão e Santa Luzia
110 000 €
3
1
Moradia geminada T3 em construção, com parqueamento.
Beja, Barrancos, Barrancos
372 000 €
3
2
Moradia bi-familiar t6 com espaço exterior - v.n. milfontes
Beja, Odemira, Vila Nova de Milfontes
590 000 €
6
5
Andar Moradia T1 Venda em Beja (Salvador e Santa Maria da Feira),Beja
Beja, Beja, Beja (Santiago Maior e São João Baptista)
125 000 €
1
1
Moradia T3 com Quintal Amplo e Garagem - Oportunidade para Remodelar ao Seu Gosto
Beja, Serpa, Vila Nova de São Bento e Vale de Vargo
145 000 €
3
1
Moradia Geminada T2 Venda em São Miguel do Pinheiro, São Pedro de Solis e São Sebastião dos Carros,Mértola
Beja, Mértola, São Miguel do Pinheiro, São Pedro de Solis e São Sebastião dos Carros
90 000 €
2
1
Moradia em Banda T3 Venda em Panoias e Conceição,Ourique
Beja, Ourique, Panoias e Conceição
75 000 €
3
1
Moradia T3 Venda em Vila Nova da Baronia,Alvito
Beja, Alvito, Vila Nova da Baronia
150 000 €
3
1
Moradia T2 em Mértola
Beja, Mértola, São João dos Caldeireiros
95 000 €
2
1
Moradia Rústica T1 Venda em São Martinho das Amoreiras,Odemira
Beja, Odemira, São Martinho das Amoreiras
40 000 €
1
1
Partilha o imóvel: Moradia t4, em construção - cuba
Partilha este imóvel nas tuas redes sociais ou envia diretamente para o email dos teus amigos.
Partilhar por email
Adicione uma nota ao imóvel!
Só você é que vê as notas que adiciona. Os imóveis com notas ficam nos favoritos para os poder consultar mais tarde.
Excluíste o anúncio:
Moradia t4, em construção - cuba