Pesquisar perto de mim
A aguardar a sua pesquisa
Voltar
Moradia t4 em construção
Moradia t4 em construção
Moradia t4 em construção
Moradia t4 em construção
Ver galeria (35)
Ver galeria (35)
Seguir
Partilhar

Moradia t4 em construção

Santarém, Ourém, Fátima Ver no mapa
390 000 €
4 Quartos
3 WC's
158,8m2
Área Útil: 158,8m2
Área Bruta: 297,2m2
Certificação Energética: N/A
Estado: Em Construção

Descrição do anúncio

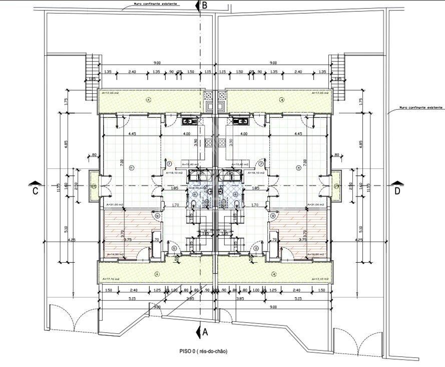
Duas Moradias Geminadas em Construção – FátimaApresentamos duas moradias de estilo arquitetónico moderno, atualmente em construção, localizadas numa zona tranquila e de excelente acessibilidade em Fátima. Projetadas com linhas contemporâneas e uma distribuição funcional, estas habitações oferecem conforto, luminosidade e qualidade de vida.✨ Características principais:

Tipologia: T4 (quatro quartos, sendo um em suíte com closet)


Pisos: Cave, rés do chão e primeiro andar


Arquitetura: Moderna, com acabamentos de elevada qualidade e design minimalista


Cave: Espaço amplo com garagem e zona técnica


Rés do chão: Sala de estar/jantar  e cozinha em open space, casa de banho social e acesso direto ao exterior


Primeiro andar: Três quartos, incluindo uma suíte com closet, todos com acesso a varanda e casa de banho


Exterior: Jardim privativo e área de lazer ideal para momentos em família

Localização:

Situa-se em Fátima, próximo de escolas, comércio e serviços, a poucos minutos do Santuário e com ótimos acessos às principais vias rodoviárias.Ideal para quem procura uma casa moderna, funcional e com uma excelente localização.







Para mais informações ou marcação de visita à obra, contacte-nos.
Predimed Avenida, a sua casa mora aqui!


Predimed Imobiliária, Mediação Imobiliária, Lda.
Avenida Brasil 43, 12º Andar, 1700-062 Lisboa
Licença AMI nº 22503
Pessoa Coletiva nº 517 239 345
Seguro Responsabilidade Civil: Nº de Apólice RC65379424 Fidelidade

Características Gerais

  • Video Porteiro
  • Nº de Estacionamentos 2
  • Bomba de Calor

Galeria do imóvel

Moradia t4 em construção
Moradia t4 em construção
Moradia t4 em construção
Moradia t4 em construção
Moradia t4 em construção
Moradia t4 em construção

Localização do imóvel

Santarém, Ourém, Fátima

Referência do anúncio: 056439. Última atualização: 12 fevereiro 2026.

Relatório de preços praticados nos últimos 8 meses

Santarém, Ourém, Fátima

Simule um Crédito Habitação

Os dados apresentados são meramente indicativos. Condições gerais
Seguir
Partilhar
Predimed Imobiliaria Mediacao Imobiliaria Lda
AMI 22503
Nome
Email
Contacto
Formato inválido
Agende uma visita
Referência do anúncio: 056439.
Última atualização: 12 fevereiro 2026.
Contactar
Veja também
Anúncios na mesma zona
Moradia com piscina em santarém
Santarém, Cartaxo, Cartaxo e Vale da Pinta
480 000 €
3
Moradia Centenária para Recuperar no Cartaxo
Santarém, Cartaxo, Cartaxo e Vale da Pinta
110 000 €
6
1
1
Moradia em construção no couço, coruche
Santarém, Santarém, Santarém (Marvila), Santa Iria da Ribeira de Santarém, Santarém (São Salvador) e Santarém (São Nicolau)
82 500 €
3
2
Moradia T4 com piscina
Santarém, Vila Nova da Barquinha, Vila Nova da Barquinha
531 000 €
4
4
Moradia t3 com piscina
Santarém, Salvaterra de Magos, Glória do Ribatejo e Granho
365 000 €
3
3
Moradia para restauro junto ao castelo de ourém
Santarém, Ourém, Nossa Senhora das Misericórdias
119 900 €
3
Moradia t3 em condomínio privado
Santarém, Vila Nova da Barquinha, Vila Nova da Barquinha
425 000 €
3
2
Moradia T3 independente em Santarém
Santarém, Santarém, Santarém (Marvila), Santa Iria da Ribeira de Santarém, Santarém (São Salvador) e Santarém (São Nicolau)
367 500 €
3
3
1
Moradia t4 -condomínio fechado éden entroncamento
Santarém, Entroncamento, São João Baptista
495 000 €
4
3
1
Quinta tradicional
Santarém, Mação, Cardigos
1 500 000 €
4
4
Partilha o imóvel: Moradia t4 em construção
Partilha este imóvel nas tuas redes sociais ou envia diretamente para o email dos teus amigos.
Partilhar por email
Adicione uma nota ao imóvel!
Só você é que vê as notas que adiciona. Os imóveis com notas ficam nos favoritos para os poder consultar mais tarde.
Excluíste o anúncio:
Moradia t4 em construção