Pesquisar perto de mim
A aguardar a sua pesquisa
Voltar
Moradia T4 de Arquitetura contemporânea em Pataias, Alcobaça
Moradia T4 de Arquitetura contemporânea em Pataias, Alcobaça
Moradia T4 de Arquitetura contemporânea em Pataias, Alcobaça
Moradia T4 de Arquitetura contemporânea em Pataias, Alcobaça
Ver galeria (21)
Ver galeria (21)
Seguir
Partilhar

Moradia T4 de Arquitetura contemporânea em Pataias, Alcobaça

Leiria, Alcobaça, Alcobaça e Vestiaria Ver no mapa
363 000 €
4 Quartos
2 WC's
143m2
Área Útil: 143m2
Área Bruta: 196m2
Ano de Construção: 2025
Certificação Energética: A
Estado: Novo

Descrição do anúncio

Contate-nos para conhecer a margem de negociação do preço deste imóvel.

Moradia T4 de linhas contemporâneas com acabamentos modernos, em fase de acabamentos, situada em Burinhosa Pataias .

Uma excelente habitação própria ou para residência sazonal/férias, beneficiando de uma boa exposição solar e implantação.
Cuidadosamente arquitetada, com churrasqueira e imenso espaço para lazer.
Construída num lote de 780 m2.

Com a possibilidade de construção de uma piscina de 8X4 m por um valor extra de 26.000€.

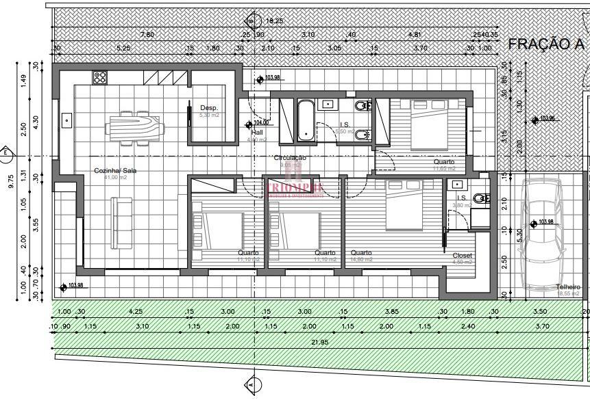
O interior é composto por um hall de entrada, uma espaçosa sala em open space com a cozinha, casa de banho de serviço, hall de acesso à zona privada, uma suite com closet e casa de banho privativa, três quartos com roupeiros embutidos e parqueamento para duas viaturas.

Em termos de equipamentos e acabamentos, a moradia oferece:

Cozinha equipada com placa, forno, cilindro, micro-ondas, máquina de lavar loiça e frigorífico;

Louças sanitárias suspensas;

Pré-instalação de ar condicionado e sistema de ventilação mecânica (VMC);

Aspiração central;

Bomba de calor;

Estores elétricos e iluminação LED;

Caixilharia com isolamento térmico e acústico;

Portões automatizados;

Revestimento exterior em capoto;

Situada numa zona tranquila e rodeada pela natureza, esta moradia oferece uma localização privilegiada: a 6 km da Vila da Maceira, a 10 km de Pataias e a 17 km da cidade de Leiria, a capital de distrito. O Aeroporto de Lisboa encontra-se a apenas 125 km.

Nas imediações, encontrará uma vasta gama de serviços essenciais, como farmácia, posto médico, veterinário e piscinas municipais.

Pataias é uma vila típica portuguesa, charmosa e acolhedora, situada na deslumbrante Costa de Prata. Além de ser a sede de freguesia, beneficia de rápidos acessos à autoestrada A8, o que garante uma excelente ligação às principais cidades e pontos de interesse da região.

A sua localização estratégica proporciona fácil acesso às praias da União de Freguesias de Pataias e Martingança, como Paredes da Vitória, Pedra do Ouro, Vale Furado, Légua, Polvoeira e Água de Madeiros, bem como às icónicas praias da Nazaré e São Pedro de Moel.

Pataias encontra-se também a uma curta distância de Marinha Grande e Leiria, duas cidades industriais e comerciais de grande relevância, que distam apenas alguns quilómetros. Para além disso, a vila está muito próxima de destinos de grande importância histórica e religiosa, como Fátima, Batalha, Alcobaça e o Sítio da Nazaré, tornando-a uma localização ideal para quem procura qualidade de vida, tranquilidade e proximidade a áreas culturais e turísticas de renome.

Agende já a sua visita!
Esta é a oportunidade ideal para viver com qualidade, conforto e tranquilidade, num imóvel moderno.

Contacte-nos de segunda a domingo das 10H às 20H. Tel: 210 999 489.

referência Triomphe Imo Invest TPH228-25

Galeria do imóvel

Moradia T4 de Arquitetura contemporânea em Pataias, Alcobaça
Moradia T4 de Arquitetura contemporânea em Pataias, Alcobaça
Moradia T4 de Arquitetura contemporânea em Pataias, Alcobaça
Moradia T4 de Arquitetura contemporânea em Pataias, Alcobaça
Moradia T4 de Arquitetura contemporânea em Pataias, Alcobaça
Moradia T4 de Arquitetura contemporânea em Pataias, Alcobaça

Localização do imóvel

Leiria, Alcobaça, Alcobaça e Vestiaria

Referência do anúncio: TPH228-25. Última atualização: 03 setembro 2025.

Relatório de preços praticados nos últimos 8 meses

Leiria, Alcobaça, Alcobaça e Vestiaria

Simule um Crédito Habitação

Os dados apresentados são meramente indicativos. Condições gerais
Seguir
Partilhar
Triomphe Imo Invest
AMI 13164
Nome
Email
Contacto
Formato inválido
Agende uma visita
Referência do anúncio: TPH228-25.
Última atualização: 03 setembro 2025.
Contactar
Veja também
Anúncios na mesma zona
Moradia T3 com piscina e terreno - a 6/7 minutos da cidade de Caldas da Rainha
Leiria, Caldas da Rainha, Salir de Matos
695 000 €
3
2
MORADIAS ECOLOGICAS A CONSTRUIR EM CAMPO DE GOLFE
Leiria, Óbidos, Vau
490 000 €
1
2
MORADIA COM PISCINA PRIVADA JUNTO À BARRAGEM DE A-DOS-NEGROS, ÓBIDOS
Leiria, Óbidos, A dos Negros
545 000 €
3
3
MORADIA DE LUXO T4 COM PISCINA AQUECIDA PERTO DE CALDAS DA RAINHA
Leiria, Caldas da Rainha, Tornada e Salir do Porto
630 000 €
4
3
MORADIA DE LUXO COM PISCINA NAS GAEIRAS
Leiria, Óbidos, Gaeiras
725 000 €
3
4
Moradia T4 com Piscina no Centro de Portugal, a 45 km das Praias
Leiria, Pombal, Abiul
550 000 €
4
4
Moradia Geminada T3, Leiria, Pombal, Pombal
Leiria, Pombal, Pombal
298 000 €
3
3
MORADIA TRADICIONAL PORTUGUESA DE 4 QUARTOS COM PISCINA AQUECIDA PERTO DE OBIDOS
Leiria, Óbidos, Santa Maria, São Pedro e Sobral da Lagoa
470 000 €
4
3
Moradia T3+1 em Construção
Leiria, Leiria, Milagres
137 500 €
1
Moradia T4 de Arquitetura contemporânea em Pataias, Alcobaça
Leiria, Alcobaça, Alcobaça e Vestiaria
363 000 €
4
2
Partilha o imóvel: Moradia T4 de Arquitetura contemporânea em Pataias, Alcobaça
Partilha este imóvel nas tuas redes sociais ou envia diretamente para o email dos teus amigos.
Partilhar por email
Adicione uma nota ao imóvel!
Só você é que vê as notas que adiciona. Os imóveis com notas ficam nos favoritos para os poder consultar mais tarde.
Excluíste o anúncio:
Moradia T4 de Arquitetura contemporânea em Pataias, Alcobaça