Pesquisar perto de mim
A aguardar a sua pesquisa
Voltar
Moradia t3 em condomínio fechado - arcozelo
Moradia t3 em condomínio fechado - arcozelo
Moradia t3 em condomínio fechado - arcozelo
Moradia t3 em condomínio fechado - arcozelo
Ver galeria (10)
Ver galeria (10)
Seguir
Partilhar

Moradia t3 em condomínio fechado - arcozelo

Porto, Vila Nova de Gaia, Arcozelo Ver no mapa
781 000 €
3 Quartos
3 WC's
179,23m2
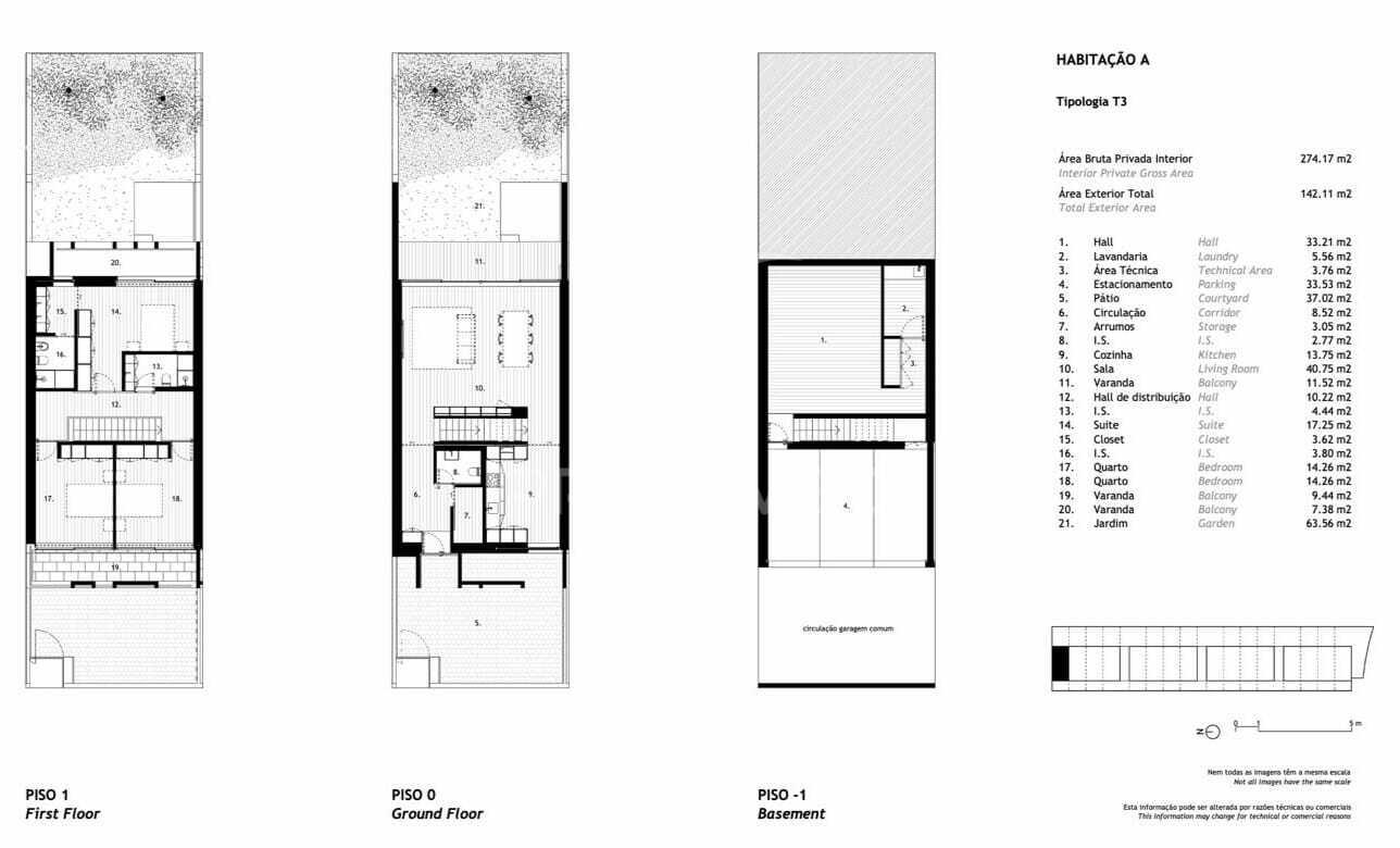
Área Útil: 179,23m2
Área Bruta: 274,17m2
Ano de Construção: 2027
Certificação Energética: A
Estado: Em Construção

Descrição do anúncio

Fração A - Nascente / Poente / Sul
O “Privilege Gaia” é um projeto inovador e inspirador que une arquitetura vanguardista à harmonia da natureza.São 16 moradias de estilo minimalista, definidas por linhas simples, espaços amplos e abertos, com 3 quartos e varandas com grandes janelas que proporcionam uma abundante entrada de luz natural. As moradias contam ainda com zona de lavandaria independente, arrumos e estacionamento privativo.Inspirado pelo ambiente natural e pela magnífica luz da costa atlântica, o Privilege Gaia nasce para oferecer um estilo de vida equilibrado entre conforto e tranquilidade.Localizado em Arcozelo, a apenas 10 km da cidade do Porto, o projeto encontra-se numa zona consolidada, rodeada de praias, parques, campos de golfe, e com todos os serviços essenciais ao dia a dia. Oferece ainda excelentes acessos às principais vias de comunicação, seja de carro ou de comboio.Possibilidade de instalação de piscina de 5mx4m, com estrutura em betão, por mais 30.000 € (sem aquecimento e, sem bomba de calor).Privilege Gaia é um lugar para viver... e para sonhar. InfraestruturasEspaços exteriores e conforto
Jardim privativo
Zona verde espaçosa
Estacionamento privado
Infraestrutura preparada para futura instalação de piscina
Pré-instalação para carregamento de viaturas elétricas
Funcionalidade e arrumação
Lavandaria
Arrumos
Armários embutidos
Acabamentos e equipamentos de qualidade
Pavimento multicamadas com acabamento em madeira nobre
Tetos falsos em gesso cartonado com iluminação integrada
Eletrodomésticos de gama alta
Toalheiros elétricos
Conforto térmico e segurança
Sistema de climatização com ar condicionado
Bomba de calor aerotérmica para aquecimento de águas
Porta de segurança
Sistema de videoporteiro
Sistema integrado de controlo de iluminação e estores
Proteção solar e privacidade
Telas interiores elétricas tipo “Blackout” com sistema de calhas nos quartosAcessibilidadesLigações rodoviárias e transportes públicos
Acesso rápido à A29
Estação Ferroviária de Miramar – 3 min
Cidade do Porto – 15 min
Pontos de interesse e lazer
Capela do Senhor da Pedra – 5 min
Miramar Golf Club – 4 min
Passadiços da Ribeira do Espírito Santo – 2 min
Serviços de saúde
Centro Hospitalar Vila Nova de Gaia / Espinho – 9 min




Predimed Imobiliária, Mediação Imobiliária, Lda.
Avenida Brasil 43, 12º Andar, 1700-062 Lisboa
Licença AMI nº 22503
Pessoa Coletiva nº 517 239 345
Seguro Responsabilidade Civil: Nº de Apólice RC65379424 Fidelidade

Características Gerais

  • Ar Condicionado
  • Video Porteiro
  • Cozinha Equipada
  • Guarda Roupa
  • Nº de Estacionamentos 2
  • Bomba de Calor

Galeria do imóvel

Moradia t3 em condomínio fechado - arcozelo
Moradia t3 em condomínio fechado - arcozelo
Moradia t3 em condomínio fechado - arcozelo
Moradia t3 em condomínio fechado - arcozelo
Moradia t3 em condomínio fechado - arcozelo
Moradia t3 em condomínio fechado - arcozelo

Localização do imóvel

Porto, Vila Nova de Gaia, Arcozelo

Referência do anúncio: 055749. Última atualização: 14 outubro 2025.

Relatório de preços praticados nos últimos 8 meses

Porto, Vila Nova de Gaia, Arcozelo

Simule um Crédito Habitação

Os dados apresentados são meramente indicativos. Condições gerais
Seguir
Partilhar
Predimed Imobiliaria Mediacao Imobiliaria Lda
AMI 22503
Nome
Email
Contacto
Formato inválido
Agende uma visita
Referência do anúncio: 055749.
Última atualização: 14 outubro 2025.
Contactar
Veja também
Anúncios na mesma zona
Moradia Geminada T2 Venda em Cedofeita, Santo Ildefonso, Sé, Miragaia, São Nicolau e Vitória,Porto
Porto, Porto, Cedofeita, Santo Ildefonso, Sé, Miragaia, São Nicolau e Vitória
215 000 €
2
1
Moradia t3 em perafita - matosinhos
Porto, Matosinhos, Perafita, Lavra e Santa Cruz do Bispo
120 000 €
2
1
Andar moradia t3
Porto, Santo Tirso, Negrelos (São Tomé)
275 000 €
3
2
Moradia de Excelência, V3, vista rio Douro. Portugal, Resende, Aregos.
Porto, Baião, Santa Cruz do Douro e São Tomé de Covelas
700 000 €
3
6
1
Moradia T3 Venda em Rebordosa,Paredes
Porto, Paredes, Rebordosa
490 000 €
3
4
Moradia Geminada T4 Venda em Gondomar (São Cosme), Valbom e Jovim,Gondomar
Porto, Gondomar, Gondomar (São Cosme), Valbom e Jovim
337 500 €
4
1
Moradia V4 -c/ piscina - 5 km do Porto
Porto, Gondomar, Gondomar (São Cosme), Valbom e Jovim
690 000 €
3
3
1
Andar Moradia T3 a 400 metros da Estação de Comboio de Coimbrões!
Porto, Vila Nova de Gaia, Santa Marinha e São Pedro da Afurada
210 000 €
3
1
Moradia em Banda T3 Venda em Gondomar (São Cosme), Valbom e Jovim,Gondomar
Porto, Gondomar, Gondomar (São Cosme), Valbom e Jovim
320 000 €
3
1
Moradia T3 Venda em Grilo,Baião
Porto, Baião, Grilo
45 000 €
3
1
Partilha o imóvel: Moradia t3 em condomínio fechado - arcozelo
Partilha este imóvel nas tuas redes sociais ou envia diretamente para o email dos teus amigos.
Partilhar por email
Adicione uma nota ao imóvel!
Só você é que vê as notas que adiciona. Os imóveis com notas ficam nos favoritos para os poder consultar mais tarde.
Excluíste o anúncio:
Moradia t3 em condomínio fechado - arcozelo