Pesquisar perto de mim
A aguardar a sua pesquisa
Voltar
Moradia T3 de Gaveto em construção em Idães, Felgueiras
Moradia T3 de Gaveto em construção em Idães, Felgueiras
Moradia T3 de Gaveto em construção em Idães, Felgueiras
Moradia T3 de Gaveto em construção em Idães, Felgueiras
Ver galeria (11)
Ver galeria (11)
Seguir
Partilhar

Moradia T3 de Gaveto em construção em Idães, Felgueiras

Porto, Felgueiras, Idães Ver no mapa
299 500 €
3 Quartos
3 WC's
199m2
Área Útil: 199m2
Área Bruta: 256m2
Ano de Construção: 2025
Certificação Energética: A
Estado: Em Construção

Descrição do anúncio

Moradia T3 de Gaveto em construção em Idães, Felgueiras

#128680; Valor de venda em campanha

#127969; Moradia Solar da Vila, Nova T3, com Garagem e Espaço Exterior – Barrosas, Felgueiras

Apresento-lhe esta moradia T3 de arquitetura moderna, inserida numa zona habitacional tranquila e bem localizada no centro urbano da Vila de Barrosas, Felgueiras.

Com linhas contemporâneas, excelente exposição solar e áreas bem distribuídas, esta moradia foi projetada para proporcionar conforto, funcionalidade e uma vivência familiar de qualidade. O espaço exterior permite a instalação de piscina e zona de lazer, ideal para momentos em família.

#128313; Principais características:

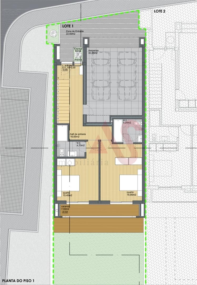
Lote com 232 m²

Área bruta de construção: 256 m²

Sala e cozinha em open space

3 quartos (dois com WC privativo)

3 casas de banho (2 privativas + 1 social)

Lavandaria

Garagem fechada para 2 viaturas com arrumos

Acesso lateral ao jardim

#128295; Equipamentos e acabamentos de qualidade:

Isolamento térmico e acústico

Caixilharia com corte térmico e vidros duplos

Estores elétricos

Portão automático de garagem

Pré-instalação de ar condicionado

Bomba de calor para águas quentes

Churrasqueira

Tetos falsos com iluminação embutida

Pavimento flutuante e cerâmico (à escolha dentro de gama definida)

Louças sanitárias incluídas

Possibilidade de personalização de materiais e acabamentos interiores

#128205; Localização privilegiada:

A 3 minutos da A11

A 10 minutos de Felgueiras, Vizela, Guimarães e Lousada

A 35 minutos do Porto e do Aeroporto Sá Carneiro

#128198; Prazo estimado de conclusão: 18 a 24 meses
#128209; Possibilidade de Compra em regime de Auto- Construção e Aquisição

Referência: ASV25059

Por sermos intermediários de crédito devidamente autorizados pelo Banco de Portugal (Reg. 2736) fazemos a gestão de todo o seu processo de financiamento, sempre com as melhores soluções de mercado.

Porquê escolher a AS Imobiliária
Com mais de 10 anos no ramo imobiliário e milhares de famílias felizes, dispomos de 8 agências estrategicamente localizadas, para o servir com proximidade, corresponder à suas expectativas e ajudá-lo a adquirir a sua casa de sonho. Compromisso, Competência e Confiança são os nossos valores que entregamos aos nossos Clientes na hora de comprar, arrendar ou vender o seu imóvel.

A nossa prioridade é a sua Felicidade!

Especialistas imobiliários em Vizela ; Guimarães ; Felgueiras ; Lousada ; Santo Tirso ; Barcelos ; São João da Madeira ; Porto ; Braga ; Trofa ; Lisboa ;

Características Gerais

  • Guarda Roupa
  • Geminada

Galeria do imóvel

Moradia T3 de Gaveto em construção em Idães, Felgueiras
Moradia T3 de Gaveto em construção em Idães, Felgueiras
Moradia T3 de Gaveto em construção em Idães, Felgueiras
Moradia T3 de Gaveto em construção em Idães, Felgueiras
Moradia T3 de Gaveto em construção em Idães, Felgueiras
Moradia T3 de Gaveto em construção em Idães, Felgueiras

Localização do imóvel

Porto, Felgueiras, Idães

Referência do anúncio: ASV25059. Última atualização: 23 janeiro 2026.

Relatório de preços praticados nos últimos 8 meses

Porto, Felgueiras, Idães

Simule um Crédito Habitação

Os dados apresentados são meramente indicativos. Condições gerais
Seguir
Partilhar
As Imobiliária
AMI 13249
253 ...
Chamada para a rede fixa nacional
Mostrar número
Nome
Email
Contacto
Formato inválido
Agende uma visita
Referência do anúncio: ASV25059.
Última atualização: 23 janeiro 2026.
Contactar
Veja também
Anúncios na mesma zona
Moradia em Banda T2 Venda em Campanhã,Porto
Porto, Porto, Campanhã
340 000 €
2
3
1
Moradia em Banda T3 Venda em Ramalde,Porto
Porto, Porto, Ramalde
299 000 €
3
1
Domicílio de prestígio no centro do Porto
Porto, Porto, Cedofeita, Santo Ildefonso, Sé, Miragaia, São Nicolau e Vitória
1 790 000 €
6
5
Moradia em Banda T2 Venda em Sandim, Olival, Lever e Crestuma,Vila Nova de Gaia
Porto, Vila Nova de Gaia, Sandim, Olival, Lever e Crestuma
330 000 €
2
3
1
🏗️ Oportunidade em Gondar: Moradia T3 em...
Porto, Amarante, Gondar
139 000 €
3
Moradia em Banda T2 Venda em Sandim, Olival, Lever e Crestuma,Vila Nova de Gaia
Porto, Vila Nova de Gaia, Sandim, Olival, Lever e Crestuma
310 000 €
2
3
1
Moradia T3 com Restaurante, em Alfena, Valongo
Porto, Valongo, Alfena
495 000 €
3
2
1
Moradia p/ venda com Jardim e Pátio Exterior | Campo Alegre, Porto
Porto, Porto, Lordelo do Ouro e Massarelos
880 000 €
4
2
Moradia Isolada T3+3 Venda em Campo (São Martinho), São Salvador do Campo e Negrelos (São Mamede),Santo Tirso
Porto, Santo Tirso, Campo (São Martinho), São Salvador do Campo e Negrelos (São Mamede)
300 000 €
1
Oportunidade de Restauro com Vistas Desafogadas em Lamoso
Porto, Paços de Ferreira, Sanfins Lamoso Codessos
250 000 €
2
1
1
Partilha o imóvel: Moradia T3 de Gaveto em construção em Idães, Felgueiras
Partilha este imóvel nas tuas redes sociais ou envia diretamente para o email dos teus amigos.
Partilhar por email
Adicione uma nota ao imóvel!
Só você é que vê as notas que adiciona. Os imóveis com notas ficam nos favoritos para os poder consultar mais tarde.
Excluíste o anúncio:
Moradia T3 de Gaveto em construção em Idães, Felgueiras