Pesquisar perto de mim
A aguardar a sua pesquisa
Voltar
Moradia T1+1 com Quintal em Fuzeta
Moradia T1+1 com Quintal em Fuzeta
Moradia T1+1 com Quintal em Fuzeta
Moradia T1+1 com Quintal em Fuzeta
Ver galeria (29)
Ver galeria (29)
Seguir
Partilhar

Moradia T1+1 com Quintal em Fuzeta

Faro, Olhão, Moncarapacho e Fuseta Ver no mapa
250 000 €
1 Quartos
2 WC's
72m2
Área Útil: 72m2
Área Bruta: 85m2
Ano de Construção: 1951
Certificação Energética: E

Descrição do anúncio

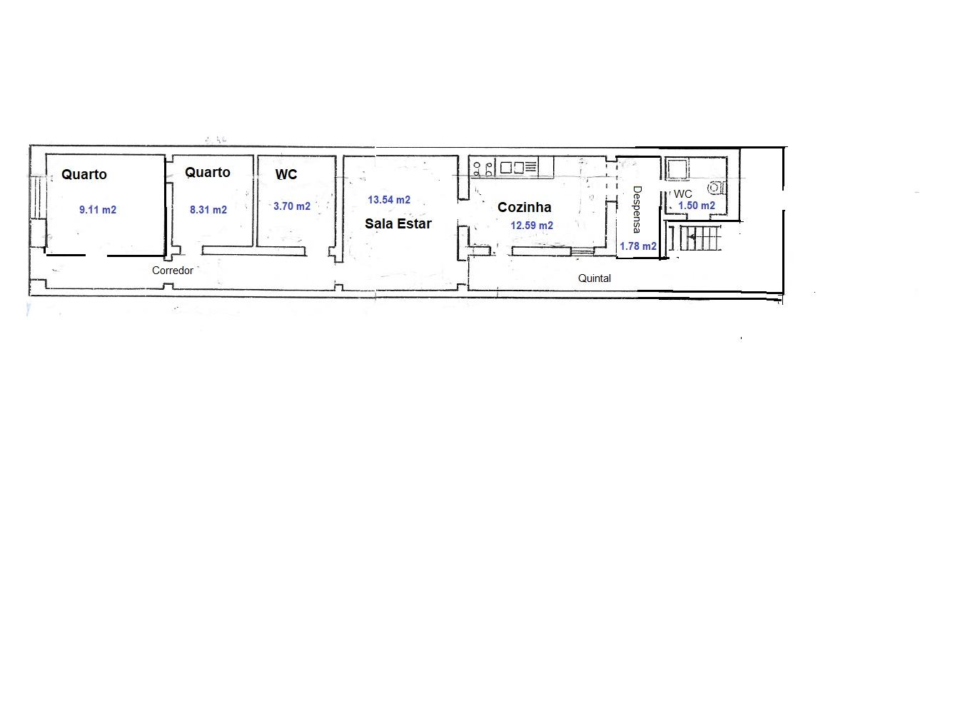
Moradia T1+1 com Quintal em Fuzeta. Em bom estado de conservação esta típica moradia é composta por rés-do-chão e terraço acessível, estende-se de rua a rua e dispõe de duas entradas. E constituída por dois quartos, sendo um interior, por uma ampla e luminosa sala de estar, por uma agradável cozinha, por duas casas de banho e por um quintal acessível pela cozinha e pela rua. Está equipada com ar condicionado nos dois quartos. Situa-se numa rua tranquila e a apenas 150 m do centro e a 450 m da praia. Está orientada para sul e desfruta de muita luminosidade natural. Nas imediações pode encontrar comércio local, serviços, mercado, zonas verdes, zonas de lazer, zonas desportivas e outras comodidades. Uma excelente opção para quem procura um imóvel perto do mar com potencial para viver e/ou rentabilizar. Contacte-nos para mais informações e marcação de visitas.

A Vila da Fuzeta é uma tradicional vila piscatória situada à beira mar e inserida na inigualável Ria Formosa, uma das 7 maravilhas naturais de Portugal. O Sol predomina praticamente todo o ano e as temperaturas são agradáveis em todas as estações. Dispõe de 2 formidáveis praias com águas de excelente qualidade e é maioritariamente constituída por moradias tipicamente algarvias.

Precisa de crédito habitação? Nós ajudamos em todo o processo, incluindo nos seguros obrigatórios. Respostas em curto prazo. Sem custos. (Intermediários de Crédito Lic. nº 4844)

Galeria do imóvel

Moradia T1+1 com Quintal em Fuzeta
Moradia T1+1 com Quintal em Fuzeta
Moradia T1+1 com Quintal em Fuzeta
Moradia T1+1 com Quintal em Fuzeta
Moradia T1+1 com Quintal em Fuzeta
Moradia T1+1 com Quintal em Fuzeta

Localização do imóvel

Faro, Olhão, Moncarapacho e Fuseta

Referência do anúncio: 6423033. Última atualização: 04 maio 2025.

Relatório de preços praticados nos últimos 8 meses

Faro, Olhão, Moncarapacho e Fuseta

Simule um Crédito Habitação

Os dados apresentados são meramente indicativos. Condições gerais
Seguir
Partilhar
Domus Capri Imobiliária ®
AMI 12127
Nome
Email
Contacto
Formato inválido
Agende uma visita
Referência do anúncio: 6423033.
Última atualização: 04 maio 2025.
Contactar
Veja também
Anúncios na mesma zona
Encantadora casa tradicional, com piscina, localizada numa aldeia tranquila no coração do Algarve.
Faro, Lagos, Odiáxere
1 500 000 €
6
7
Bonita moradia T4 com piscina e vista mar perto de Vale da Telha
Faro, Aljezur, Aljezur
900 000 €
4
4
Moradia de luxo 300m2 - na ponta de piedade - lagos - algarve
Faro, Lagos, Lagos (São Sebastião e Santa Maria)
2 400 000 €
4
4
1
Moradia T2 com Piscina Privativa - Vista Golfe | Silves
Faro, Silves, Silves
425 000 €
Moradia Rústica Venda em Santa Bárbara de Nexe,Faro
Faro, Faro, Santa Bárbara de Nexe
230 000 €
1
Moradia em banda T2, junto da praia.
Faro, Vila Real de Santo António, Vila Real de Santo António
360 000 €
2
2
Moradia T4 com quintal e garagem - Olhão, Algarve
Faro, Olhão, Quelfes
480 000 €
4
4
Moradia geminada T3 nova, com terraço e garagem.
Faro, Vila Real de Santo António, Vila Real de Santo António
553 000 €
3
3
Moradia T4 em Mijas, Málaga
Faro, Vila Real de Santo António, Vila Real de Santo António
672 000 €
4
3
Moradia T6 Venda em Odiáxere,Lagos
Faro, Lagos, Odiáxere
995 000 €
6
5
Partilha o imóvel: Moradia T1+1 com Quintal em Fuzeta
Partilha este imóvel nas tuas redes sociais ou envia diretamente para o email dos teus amigos.
Partilhar por email
Adicione uma nota ao imóvel!
Só você é que vê as notas que adiciona. Os imóveis com notas ficam nos favoritos para os poder consultar mais tarde.
Excluíste o anúncio:
Moradia T1+1 com Quintal em Fuzeta