Pesquisar perto de mim
A aguardar a sua pesquisa
Voltar
Moradia T0 para venda
Moradia T0 para venda
Moradia T0 para venda
Moradia T0 para venda
Ver galeria (18)
Ver galeria (18)
Seguir
Partilhar

Moradia T0 para venda

Braga, Celorico de Basto, Britelo, Gémeos e Ourilhe Ver no mapa
30 000 €
0 Quartos
1 WC's
88m2
Área Útil: 88m2
Área Bruta: 88m2
Ano de Construção: 1940
Certificação Energética: Isento

Descrição do anúncio


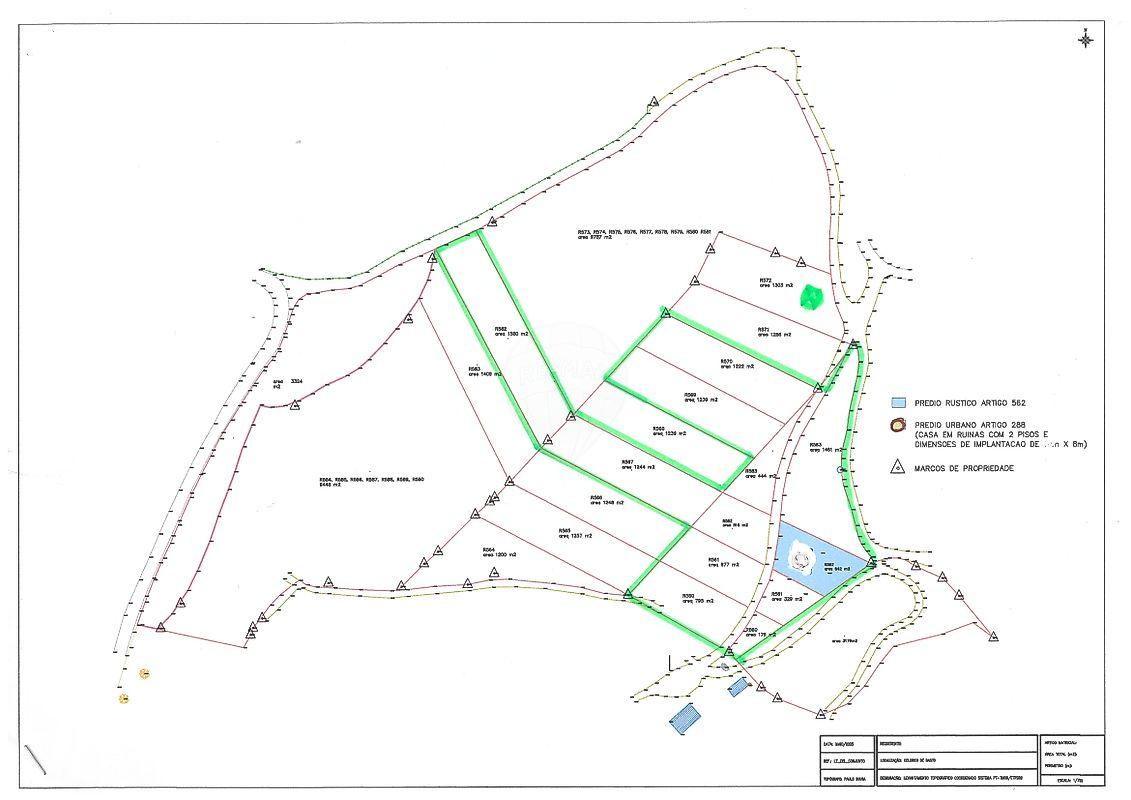
Propriedade composta por 9 prédios, 1 urbano e 8 rústicos
Habitação em ruínas, composta por rés-do-chão e andar, com 88m2 de área bruta de construção 
Terreno florestal com 11.200m2, composta por 8 glebas de 1.400m2/cada
Localizada a 1.500m da Igreja de Molares
A 5 minutos do centro da Vila de Celorico de Basto ;ID RE/MAX: 126221008-436

Características Gerais

  • Independente

Galeria do imóvel

Moradia T0 para venda
Moradia T0 para venda
Moradia T0 para venda
Moradia T0 para venda
Moradia T0 para venda
Moradia T0 para venda

Localização do imóvel

Braga, Celorico de Basto, Britelo, Gémeos e Ourilhe

Referência do anúncio: 126221008-436. Última atualização: 23 janeiro 2026.

Relatório de preços praticados nos últimos 8 meses

Braga, Celorico de Basto, Britelo, Gémeos e Ourilhe

Simule um Crédito Habitação

Os dados apresentados são meramente indicativos. Condições gerais
Seguir
Partilhar
Grupo Move
AMI 8968
Nome
Email
Contacto
Formato inválido
Agende uma visita
Referência do anúncio: 126221008-436.
Última atualização: 23 janeiro 2026.
Contactar
Veja também
Anúncios na mesma zona
Moradia T3 Venda em Requião,Vila Nova de Famalicão
Braga, Vila Nova de Famalicão, Requião
950 000 €
3
1
Moradia t4 com piscina em zona premium
Braga, Braga, Palmeira
475 000 €
4
5
1
Moradia T3 em Santa Maria de Arnoso, Famalicão, Onde o Luxo Encontra o Refúgio Perfeito!
Braga, Vila Nova de Famalicão, Arnoso (Santa Maria e Santa Eulália) e Sezures
560 000 €
3
5
1
Moradia T2 em São Faustino, Guimarães - Excelente Oportunidade de Investimento
Braga, Guimarães, Tabuadelo e São Faustino
99 500 €
2
1
Moradia Isolada T2 Venda em Caldas de Vizela (São Miguel e São João),Vizela
Braga, Vizela, Caldas de Vizela (São Miguel e São João)
265 000 €
2
1
Moradia T3 Venda em Antas,Esposende
Braga, Esposende, Antas
450 000 €
3
1
Luxuosa Moradia T4 com Piscina e Campo de ténis
Braga, Vizela, Infias
455 000 €
4
5
Moradia t3
Braga, Vila Nova de Famalicão, Oliveira (Santa Maria)
374 500 €
3
3
1
Moradia Venda em Silva,Barcelos
Braga, Barcelos, Silva
440 000 €
1
Moradia T3 Venda em Braga (São Vítor),Braga
Braga, Braga, Adaúfe
820 000 €
3
1
Partilha o imóvel: Moradia T0 para venda
Partilha este imóvel nas tuas redes sociais ou envia diretamente para o email dos teus amigos.
Partilhar por email
Adicione uma nota ao imóvel!
Só você é que vê as notas que adiciona. Os imóveis com notas ficam nos favoritos para os poder consultar mais tarde.
Excluíste o anúncio:
Moradia T0 para venda