Pesquisar perto de mim
A aguardar a sua pesquisa
Voltar
Moradia para Restaurar, Miranda do Douro
Moradia para Restaurar, Miranda do Douro
Moradia para Restaurar, Miranda do Douro
Moradia para Restaurar, Miranda do Douro
Ver galeria (14)
Ver galeria (14)
Seguir
Partilhar

Moradia para Restaurar, Miranda do Douro

Bragança, Miranda do Douro, Miranda do Douro Ver no mapa
35 000 €
3 Quartos
1 WC's
72m2
Área Útil: 72m2
Área Bruta: 93m2
Certificação Energética: Isento
Estado: Por Recuperar

Descrição do anúncio

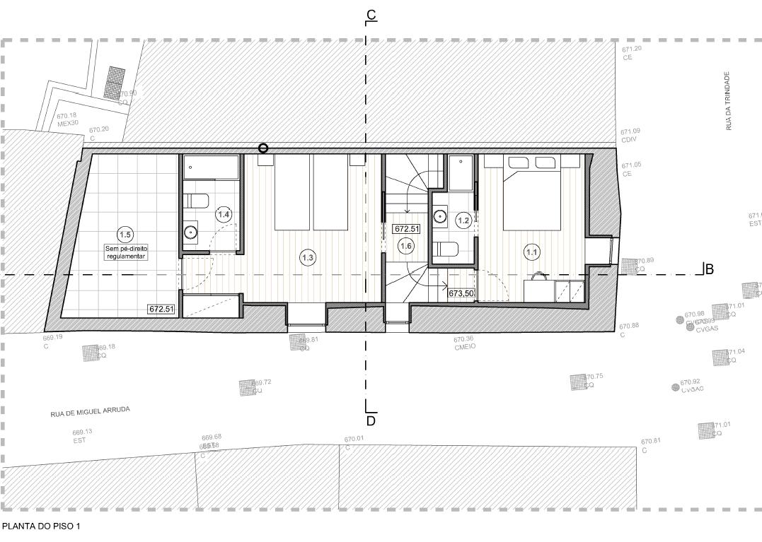
Imóvel para restaurar na zona histórica de Miranda do Douro.
Imóvel localizado na Rua da Trindade, bem no centro da zona histórica da cidade, próximo à Sé Catedral, Igreja dos Frades Trinos, Câmara Municipal, Museu, outros monumentos, comércio e serviços. Possui projeto aprovado com licença de Obras de Reconstrução válida até Agosto de 2026, constituído por 2 pisos, com acrescento de entradas de luz (janelas) e aumento da dimensão das portas. No piso térreo com cozinha, wc de serviço, sala de estar e suite e o 1º piso com duas suites.
Com uma localização excelente, o imóvel é apropriado para o Turismo.
 

Características Gerais

  • Garagem
  • Independente

Galeria do imóvel

Moradia para Restaurar, Miranda do Douro
Moradia para Restaurar, Miranda do Douro
Moradia para Restaurar, Miranda do Douro
Moradia para Restaurar, Miranda do Douro
Moradia para Restaurar, Miranda do Douro
Moradia para Restaurar, Miranda do Douro

Localização do imóvel

Bragança, Miranda do Douro, Miranda do Douro

Referência do anúncio: AMC230125. Última atualização: 30 junho 2025.

Relatório de preços praticados nos últimos 8 meses

Bragança, Miranda do Douro, Miranda do Douro

Simule um Crédito Habitação

Os dados apresentados são meramente indicativos. Condições gerais
Seguir
Partilhar
Pladouro Mediação Imobiliária, Lda
AMI 11757
927 ...
Chamada para a rede fixa nacional
Mostrar número
Nome
Email
Contacto
Formato inválido
Agende uma visita
Referência do anúncio: AMC230125.
Última atualização: 30 junho 2025.
Contactar
Veja também
Anúncios na mesma zona
Moradia T4 Venda em Fonte Longa,Carrazeda de Ansiães
Bragança, Carrazeda de Ansiães, Fonte Longa
68 000 €
4
1
Penthouse de luxo renovada de 2 quartos com um terraço na cobertura em Monte - Carlo
Bragança, Miranda do Douro, Constantim e Cicouro
7 700 000 €
2
2
Moradia em banda T4 , perto da praia.
Bragança, Miranda do Douro, Ifanes e Paradela
755 000 €
3
3
Moradia Independente para Venda nas Aguieiras - Mirandela
Bragança, Mirandela, Aguieiras
285 000 €
4
4
Moradia geminada T3 , perto da praia.
Bragança, Miranda do Douro, Ifanes e Paradela
850 000 €
3
3
Moradia para Restaurar T3 Venda em Póvoa,Miranda do Douro
Bragança, Miranda do Douro, Póvoa
40 000 €
3
1
Moradia mascarenhas a 10 min. de (mirandela)
Bragança, Mirandela, Mascarenhas
50 000 €
3
2
Moradia Rústica T2 Venda em Ferradosa e Sendim da Serra,Alfândega da Fé
Bragança, Alfandega da Fé, Ferradosa e Sendim da Serra
47 500 €
2
1
Luxo totalmente renovado e muito brilhante penthouse/telhado de 3 quartos em Monte - Carlo
Bragança, Miranda do Douro, Constantim e Cicouro
14 500 000 €
3
3
Moradia Geminada T6 Venda em Miranda do Douro,Miranda do Douro
Bragança, Miranda do Douro, Miranda do Douro
160 000 €
6
2
Partilha o imóvel: Moradia para Restaurar, Miranda do Douro
Partilha este imóvel nas tuas redes sociais ou envia diretamente para o email dos teus amigos.
Partilhar por email
Adicione uma nota ao imóvel!
Só você é que vê as notas que adiciona. Os imóveis com notas ficam nos favoritos para os poder consultar mais tarde.
Excluíste o anúncio:
Moradia para Restaurar, Miranda do Douro