Pesquisar perto de mim
A aguardar a sua pesquisa
Voltar
Moradia Isolada T3 Venda em São Félix da Marinha,Vila Nova de Gaia
Moradia Isolada T3 Venda em São Félix da Marinha,Vila Nova de Gaia
Moradia Isolada T3 Venda em São Félix da Marinha,Vila Nova de Gaia
Moradia Isolada T3 Venda em São Félix da Marinha,Vila Nova de Gaia
Ver galeria (11)
Ver galeria (11)
Seguir
Partilhar

Moradia Isolada T3 Venda em São Félix da Marinha,Vila Nova de Gaia

Porto, Vila Nova de Gaia, São Félix da Marinha Ver no mapa
895 000 €
3 Quartos
4 WC's
320m2
Área Útil: 320m2
Área Bruta: 440m2
Ano de Construção: 2027
Certificação Energética: Isento
Estado: Novo

Descrição do anúncio

Moradia T3 térrea com piscina para venda em São Félix da Marinha com vista de mar.

Atualmente em construção, situada em São Félix da Marinha, numa zona calma e consolidada, rodeada por moradias de referência.
 
Trata-se de um imóvel com uma qualidade de construção e acabamentos invulgar, pensado ao detalhe para proporcionar conforto, eficiência e bem-estar. A localização oferece excelentes acessos, permitindo chegar a Espinho em poucos minutos, a Vila Nova de Gaia em cerca de 10 minutos, ao Porto em 15 minutos e ao Aeroporto em aproximadamente 25 minutos.

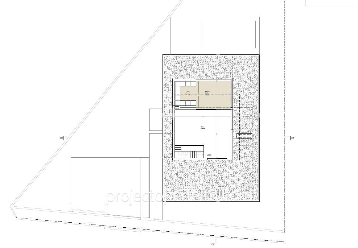
A área social desenvolve-se em open space, integrando sala e cozinha num ambiente amplo, moderno e luminoso. A cozinha será totalmente equipada e complementada por lavandaria e despensa, garantindo máxima funcionalidade no dia a dia. A zona privada é composta por três suites, todas com casa de banho privativa, assegurando conforto e privacidade a toda a família. No primeiro piso encontra-se um salão espaçoso com acesso a um terraço, onde poderá desfrutar de uma vista desafogada e de um agradável enquadramento de mar.

No exterior, a moradia dispõe de garagem fechada para dois carros, logradouro e piscina com cobertura de proteção, ideal para utilização segura e prolongada ao longo do ano.

A qualidade dos acabamentos destaca-se desde o primeiro olhar: pavimentos exteriores em granito e cerâmico, sistema de piso radiante preparado para quente e frio através de bomba de calor, aspiração central, estores elétricos e caixilharia em alumínio com corte térmico (RAL 8016). A ventilação mecânica controlada (VMC) garante renovação constante do ar, enquanto o isolamento térmico pelo exterior (ETICS) e os revestimentos modernos em tons neutros (cinza claro RAL 7047) reforçam o conforto e a estética contemporânea. A fachada integra ainda detalhes em ripado de madeira compósita e a cobertura plana é finalizada com gravilha, conferindo um toque arquitetónico elegante e atual.

A envolvente oferece todas as comodidades essenciais: escolas, supermercados, farmácias, comércio, serviços e diversos espaços de lazer, tornando esta moradia uma opção equilibrada entre tranquilidade e conveniência.

A conclusão da obra está prevista para o final de 2027.

Marque a sua visita e descubra pessoalmente a qualidade e o potencial desta moradia excecional.

Excluído do SCE, ao abrigo da alínea g), do nº2 do artigo 18º, do Decreto-Lei nº 101-D/2020, de 07 de Dezembro

Características Gerais

  • Cozinha Equipada
  • Garagem
  • Jardim
  • Estacionamento
  • Piscina
  • Terraço
  • Guarda Roupa
  • Varandas
  • Independente

Galeria do imóvel

Moradia Isolada T3 Venda em São Félix da Marinha,Vila Nova de Gaia
Moradia Isolada T3 Venda em São Félix da Marinha,Vila Nova de Gaia
Moradia Isolada T3 Venda em São Félix da Marinha,Vila Nova de Gaia
Moradia Isolada T3 Venda em São Félix da Marinha,Vila Nova de Gaia
Moradia Isolada T3 Venda em São Félix da Marinha,Vila Nova de Gaia
Moradia Isolada T3 Venda em São Félix da Marinha,Vila Nova de Gaia

Localização do imóvel

Porto, Vila Nova de Gaia, São Félix da Marinha

Referência do anúncio: 4452. Última atualização: 16 abril 2026.

Relatório de preços praticados nos últimos 8 meses

Porto, Vila Nova de Gaia, São Félix da Marinha

Simule um Crédito Habitação

Os dados apresentados são meramente indicativos. Condições gerais
Seguir
Partilhar
Projecto Perfeito - Espinho
AMI 8481
220 ...
Chamada para a rede fixa nacional
Mostrar número
Nome
Email
Contacto
Formato inválido
Agende uma visita
Referência do anúncio: 4452.
Última atualização: 16 abril 2026.
Contactar
Veja também
Anúncios na mesma zona
Exelente moradia t3 em mindelo a 350 metros da praia
Porto, Vila do Conde, Mindelo
530 000 €
3
4
Moradia T3 Nova em Fânzeres
Porto, Gondomar, Fânzeres e São Pedro da Cova
403 000 €
3
4
1
Moradia projeto aprovado avenida Boavista
Porto, Porto, Cedofeita, Santo Ildefonso, Sé, Miragaia, São Nicolau e Vitória
549 900 €
5
3
Casa Senhorial na Zona Histórica de Matosinhos | Junto ao Metro
Porto, Matosinhos, Matosinhos e Leça da Palmeira
1 600 000 €
5
1
Moradia no Centro de Amarante
Porto, Amarante, Amarante (São Gonçalo), Madalena, Cepelos e Gatão
Sob consulta
4
4
Moradia Geminada T3 Venda em Amarante (São Gonçalo), Madalena, Cepelos e Gatão,Amarante
Porto, Amarante, Amarante (São Gonçalo), Madalena, Cepelos e Gatão
335 000 €
3
1
Moradia T3 Exclusiva em Miramar
Porto, Vila Nova de Gaia, Arcozelo
759 000 €
3
3
1
Onde o Minimalismo encontra o Mar: Moradia T3 Exclusiva em Miramar;
Porto, Vila Nova de Gaia, Arcozelo
781 000 €
3
3
1
Moradia Isolada T2+2 Venda em Aves,Santo Tirso
Porto, Santo Tirso, Aves
290 000 €
4
1
Moradia Geminada T3 Venda em Lomba,Amarante
Porto, Amarante, Lomba
323 500 €
3
4
Partilha o imóvel: Moradia Isolada T3 Venda em São Félix da Marinha,Vila Nova de Gaia
Partilha este imóvel nas tuas redes sociais ou envia diretamente para o email dos teus amigos.
Partilhar por email
Adicione uma nota ao imóvel!
Só você é que vê as notas que adiciona. Os imóveis com notas ficam nos favoritos para os poder consultar mais tarde.
Excluíste o anúncio:
Moradia Isolada T3 Venda em São Félix da Marinha,Vila Nova de Gaia