Pesquisar perto de mim
A aguardar a sua pesquisa
Voltar
Moradia Geminada T3 Venda em Fernão Ferro,Seixal
Moradia Geminada T3 Venda em Fernão Ferro,Seixal
Moradia Geminada T3 Venda em Fernão Ferro,Seixal
Moradia Geminada T3 Venda em Fernão Ferro,Seixal
Ver galeria (24)
Ver galeria (24)
Seguir
Partilhar

Moradia Geminada T3 Venda em Fernão Ferro,Seixal

Setúbal, Seixal, Fernão Ferro Ver no mapa
425 000 €
3 Quartos
1 WC's
Certificação Energética: A
Estado: Novo

Descrição do anúncio

Moradia Nova pronta a escriturar.

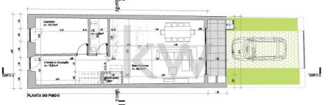
Esta moradia, com uma área útil de 160m2, encontra-se implantada num terreno de 499m2.

No piso 0, deparamo-nos com um acolhedor hall de entrada com 7m2. A sala, com generosos 27m2, apresenta pavimento flutuante e uma lareira equipada com recuperador de calor, proporcionando um ambiente caloroso e convidativo. O WC social, com 3m2, dispõe de uma base de duche e uma janela que permite a entrada de luz natural, conferindo-lhe um toque luminoso. A cozinha, com 15m2, encontra-se semi-equipada com eletrodomésticos TEKA, incluindo placa vitrocerâmica, exaustor, forno e microondas. Destaca-se ainda a presença de escadas que conduzem ao piso superior.

O primeiro piso compreende uma suite espaçosa de 22m2, dotada de um WC de 5m2 com base de duche, janela com luz natural, roupeiro e uma varanda generosa de 18m2. Dois quartos, ambos com 14m2 e roupeiros, partilham uma varanda e têm acesso a um WC com base de duche e janela com luz natural.

No exterior, a propriedade oferece um agradável logradouro, complementado por uma zona de alpendre equipada com churrasqueira, ideal para momentos de convívio. Existe, igualmente, a possibilidade de construir uma garagem BOX ou anexo no limite do terreno, tornando-a um V3+1.

Principais vantagens desta moradia incluem janelas em PVC com oscilobatentes, estores elétricos, pavimento flutuante em todas as divisões, exceto nos WC's e cozinha, pré-instalação de Ar Condicionado, pré-instalação de aspiração central, painéis solares, porta de entrada blindada, escadas de acesso ao piso superior em pedra mármore, muro com iluminação até ao portão, e uma favorável exposição solar Nascente/Poente.





 

Características Gerais

  • Geminada

Galeria do imóvel

Moradia Geminada T3 Venda em Fernão Ferro,Seixal
Moradia Geminada T3 Venda em Fernão Ferro,Seixal
Moradia Geminada T3 Venda em Fernão Ferro,Seixal
Moradia Geminada T3 Venda em Fernão Ferro,Seixal
Moradia Geminada T3 Venda em Fernão Ferro,Seixal
Moradia Geminada T3 Venda em Fernão Ferro,Seixal

Localização do imóvel

Setúbal, Seixal, Fernão Ferro

Referência do anúncio: SXL/00090. Última atualização: 05 fevereiro 2024.

Relatório de preços praticados nos últimos 8 meses

Setúbal, Seixal, Fernão Ferro

Simule um Crédito Habitação

Os dados apresentados são meramente indicativos. Condições gerais
Seguir
Partilhar
Chave Nova - Mediação Imobiliária, Lda
AMI 7142
223 ...
Chamada para a rede fixa nacional
Mostrar número
Nome
Email
Contacto
Formato inválido
Agende uma visita
Referência do anúncio: SXL/00090.
Última atualização: 05 fevereiro 2024.
Contactar
Veja também
Anúncios na mesma zona
Moradia t2 com grande terraço e espaço exterior
Setúbal, Alcochete, Alcochete
190 000 €
2
1
Fantástica moradia na herdade da aroeira
Setúbal, Almada, Charneca de Caparica e Sobreda
1 890 000 €
4
4
Magnifica Moradia Inserida num lote de 500 m2.
Setúbal, Almada, Charneca de Caparica e Sobreda
390 000 €
4
2
1
Moradia T2 Venda em Setúbal (São Julião, Nossa Senhora da Anunciada e Santa Maria da Graça),Setúbal
Setúbal, Setúbal, Setúbal (São Julião, Nossa Senhora da Anunciada e Santa Maria da Graça)
399 000 €
2
1
Moradia Isolada T3+2 Venda em Sesimbra (Castelo),Sesimbra
Setúbal, Sesimbra, Sesimbra (Castelo)
645 000 €
3
4
1
Moradia nova T4 com piscina em Azeitão - zona calma e verde, com certificação energética A
Setúbal, Setúbal, Azeitão (São Lourenço e São Simão)
850 000 €
4
4
Moradia Geminada T3 Venda em Barreiro e Lavradio,Barreiro
Setúbal, Barreiro, Barreiro e Lavradio
395 000 €
3
1
Moradia Geminada T3 com piscina - Fernão Ferro
Setúbal, Seixal, Fernão Ferro
445 000 €
3
3
1
Moradia isolada feijó t5
Setúbal, Seixal, Corroios
575 000 €
5
4
Terreno urbano com benfeitoras em azeitão
Setúbal, Setúbal, Azeitão (São Lourenço e São Simão)
540 000 €
4
2
Partilha o imóvel: Moradia Geminada T3 Venda em Fernão Ferro,Seixal
Partilha este imóvel nas tuas redes sociais ou envia diretamente para o email dos teus amigos.
Partilhar por email
Adicione uma nota ao imóvel!
Só você é que vê as notas que adiciona. Os imóveis com notas ficam nos favoritos para os poder consultar mais tarde.
Excluíste o anúncio:
Moradia Geminada T3 Venda em Fernão Ferro,Seixal