Pesquisar perto de mim
A aguardar a sua pesquisa
Voltar
Moradia Geminada T3 em Fragosela, Viseu
Moradia Geminada T3 em Fragosela, Viseu
Moradia Geminada T3 em Fragosela, Viseu
Moradia Geminada T3 em Fragosela, Viseu
Ver galeria (16)
Ver galeria (16)
Seguir
Partilhar

Moradia Geminada T3 em Fragosela, Viseu

Viseu, Viseu, Fragosela Ver no mapa
450 000 €
3 Quartos
1 WC's
199m2
Área Útil: 199m2
Área Bruta: 199m2
Certificação Energética: Isento

Descrição do anúncio

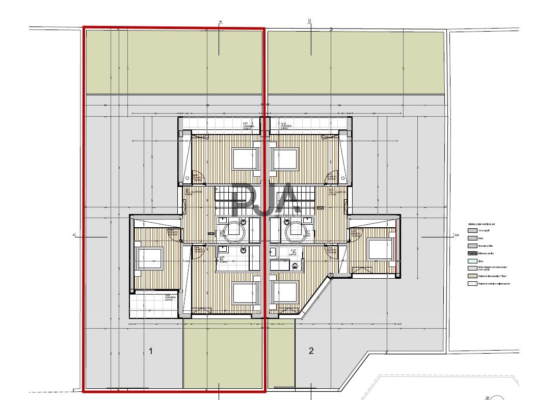
Moradias T3 Geminadas, em fase de construção.
Atualmente com a estrutura em betão concluída

Localizado em Fragosela muito próximo do Parque Industrial de Coimbrões, a 2 Km do Retail Park (3 min.) e a 6 km da cidade de Viseu (9 min.), 

A moradia é composta por 2 pisos e constituída por 3 quartos (um deles suite ), 2 casas de banho comuns, cozinha, sala de estar e de jantar (openspace). Conta ainda com garagem.
Encontrando-se em fase projeto, existe ainda a possibilidade de escolha de alguns acabamentos: iluminação LED, a definir em obra; paredes e tetos em gesso; casas de banho revestidas a mosaico, pasta única retificado e loiças sanitárias suspensas; caixilharias das janelas em alumínio de corte térmico e vidro duplo; aquecimento a ar condicionado ou radiadores com recuperador a lenha; os revestimentos dos pavimentos podem ser em flutuante, ou mosaico (à escolha do cliente)!

Dispõe de excelentes acesso e localização

Encontre aqui o local ideal a sua casa de sonho!

Características Gerais

  • Geminada

Galeria do imóvel

Moradia Geminada T3 em Fragosela, Viseu
Moradia Geminada T3 em Fragosela, Viseu
Moradia Geminada T3 em Fragosela, Viseu
Moradia Geminada T3 em Fragosela, Viseu
Moradia Geminada T3 em Fragosela, Viseu
Moradia Geminada T3 em Fragosela, Viseu

Localização do imóvel

Viseu, Viseu, Fragosela

Referência do anúncio: #MG_V009A. Última atualização: 27 fevereiro 2026.

Relatório de preços praticados nos últimos 8 meses

Viseu, Viseu, Fragosela

Simule um Crédito Habitação

Os dados apresentados são meramente indicativos. Condições gerais
Seguir
Partilhar
PJAFERREIRA, UNIPESSOAL LDA
AMI 15113
232 ...
Chamada para a rede fixa nacional
Mostrar número
Nome
Email
Contacto
Formato inválido
Agende uma visita
Referência do anúncio: #MG_V009A.
Última atualização: 27 fevereiro 2026.
Contactar
Veja também
Anúncios na mesma zona
Moradia Isolada T3+1 Venda em Faíl e Vila Chã de Sá,Viseu
Viseu, Viseu, Faíl e Vila Chã de Sá
795 000 €
3
1
Moradia Isolada T4 - Viseu, Mangualde, Fornos de Maceira Dão
Viseu, Mangualde, Fornos de Maceira Dão
540 000 €
4
1
Moradia para Restaurar Venda em Ranhados,Viseu
Viseu, Viseu, Ranhados
74 900 €
1
Moradia em Banda T3 em Viseu
Viseu, Viseu, Ranhados
487 500 €
5
5
Projeto de moradia T2 em Rio de Loba - Viseu
Viseu, Viseu, Rio de Loba
180 000 €
2
1
Moradia devoluta para venda em marzovelos - Viseu
Viseu, Viseu, Viseu
95 000 €
3
1
Moradia devoluta em pedra, para reconstruir em Viseu.
Viseu, Viseu, Rio de Loba
80 000 €
1
Moradia T2 Venda em Mangualde, Mesquitela e Cunha Alta,Mangualde
Viseu, Mangualde, Mangualde, Mesquitela e Cunha Alta
140 000 €
2
1
Moradia Geminada T4 Venda em Ranhados,Viseu
Viseu, Viseu, Ranhados
319 900 €
4
1
Moradia T3 Venda em Abrunhosa-a-Velha,Mangualde
Viseu, Mangualde, Abrunhosa-a-Velha
97 500 €
3
1
Partilha o imóvel: Moradia Geminada T3 em Fragosela, Viseu
Partilha este imóvel nas tuas redes sociais ou envia diretamente para o email dos teus amigos.
Partilhar por email
Adicione uma nota ao imóvel!
Só você é que vê as notas que adiciona. Os imóveis com notas ficam nos favoritos para os poder consultar mais tarde.
Excluíste o anúncio:
Moradia Geminada T3 em Fragosela, Viseu