Pesquisar perto de mim
A aguardar a sua pesquisa
Voltar
Moradia em Banda T3+1 Venda em Madalena,Vila Nova de Gaia
Moradia em Banda T3+1 Venda em Madalena,Vila Nova de Gaia
Moradia em Banda T3+1 Venda em Madalena,Vila Nova de Gaia
Moradia em Banda T3+1 Venda em Madalena,Vila Nova de Gaia
Ver galeria (24)
Ver galeria (24)
Seguir
Partilhar

Moradia em Banda T3+1 Venda em Madalena,Vila Nova de Gaia

Porto, Vila Nova de Gaia, Madalena Ver no mapa
640 000 €
3 Quartos
2 WC's
156m2
Área Útil: 156m2
Área Bruta: 448m2
Ano de Construção: 2025
Certificação Energética: B
Estado: Usado

Descrição do anúncio

Moradias em construção para venda na Madalena, Vila Nova de Gaia
 
Este projecto engloba 3 moradias, duas de três frentes e uma de duas frentes.
Moradias compostas por três pisos, cave, rés-do-chão e primeiro andar.

Compostas por materiais de qualidade, cuidadosamente projetados de modo a minimizar o consumo de energia e maximizar o conforto, com uma eficiência energética de A+ (classificação prevista aquando da conclusão).
 
 
Moradia T3 de duas frentes com uma área de bruta de 291,2 m2
Fracção B - 499.000,00€
Área útil = 135,20m2
Cave = 52 m2
Varanda = 5,20m2
Terraço = 36,50m2
Logradouro = 32,00m
 
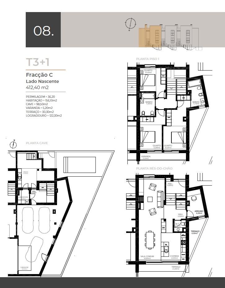
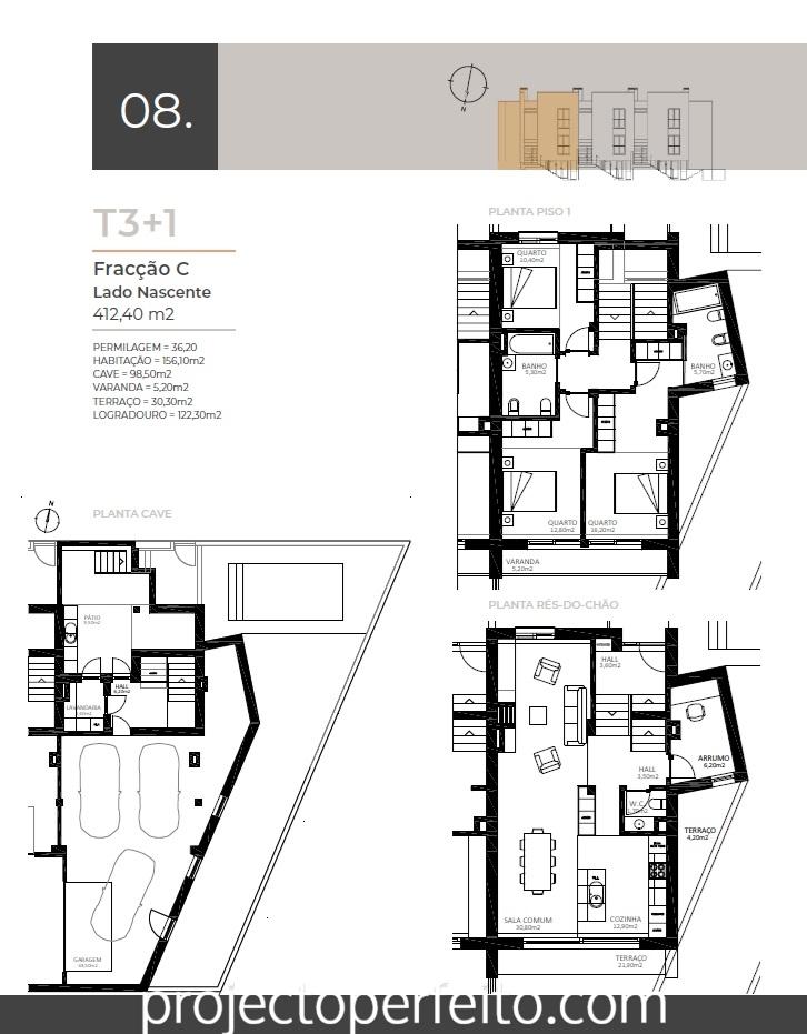
Moradia de três frentes com uma área bruta de 448,6 m2
T3+1 - 640.000,00€
Fracção C
Área útil = 156 m2
Cave = 98 m2
Varanda = 5,20m2
Terraço = 30,30m2
Logradouro = 122 m2


MAPA DE ACABAMENTOS

GERAL
1.Paredes interiores e tetos tinta com branca;
2.Paredes exteriores pintados cor branca, garagem em betão pavimento latejas de cerâmica;
3.Tetos falsos em gesso cartonado com projetor LED embutidos;
4.Pisos interiores em vinil carvalho europeu;
5.Iluminação led embutida;
6.Portas interiores até ao teto lacadas branco;
7.Roupeiros com portas até ao teto lacadas branco com interior modelares em laminado linho Cancum;
8.Caixilharias em Alumínio com corte térmico, vidro duplo, estores elétricos,
9.Rodapés lacados à cor;
10.Bomba de calor para AQS;
11.Ar condicionado Daikin ou equivalente,
12.Torneiras monocomando;
13.Porta da garagem com abertura automática;
14.Videoporteiro;

WC`S
16.Pisos em cerâmica;
17.Paredes em cerâmica;
18.Louças sanitárias suspensas;

COZINHA
19.Móveis com frentes em termolaminado branco;
20.Eletrodomésticos tipo Bosch;
21.Tampo silestone branco Norte 20 mm;
22.Teto em gesso cartonado;
23.Paredes tinta na cor branca;

GERAL

CAIXILHARIA
Sistema de caixilharia em alumínio com corte térmico e vidros duplos.

ILUMINAÇÃO
Projetores LED instalados nos tetos falsos e nas sancas de iluminação dos tetos falsos.

CLIMATIZAÇÃO
Bomba de calor para AQS;
Recuperador de calor na sala;
Ar condicionado Daikin ou equivalente;
Ventilação mecânica nas casas de banho;
Extrator mecânico na cozinha.

OUTROS
Porta de entrada em madeira maciça com fechadura de segurança;
Portas interiores lacadas a branco até ao teto com puxador em inox;
Escadas interiores em carvalho europeu e guardas em vidro;
Estacionamento na garagem com tomada de alimentação para veículos eletricos;
Guarda em vidro nas varandas;
Estores elétricos;
Intercomunicador com vídeo porteiro;
Portão de garagem secionado com abertura automática;
Portão de correr comum de entrada de garagem metálico, abertura automática;
Revestimento exterior sistema ETICS;
Aspiração central;
Pré-instalação para jacuzzi no terraço (Opcional não incluído);
Opção de não instalar piscina nas moradias T3+1 com redução de 18.000€ ao preço;
Piscina com água aquecida a bomba de calor (Opcional não incluído);
Páteo da cave com zona com chaminé, bancada e lava-louças;
Zonas verdes previstas, esta contemplada regularização das terras
(Jardim não incluído);
Pérgola terraço (Opcional não incluído).

Muito bem localizadas, junto de serviços, escolas e próximas da praia.

Para mais informações entre em contacto e agende já a sua visita a este imóvel.

Características Gerais

  • Ar Condicionado
  • Cozinha Equipada
  • Garagem
  • Jardim
  • Estacionamento
  • Terraço
  • Guarda Roupa
  • Lareira
  • Em Banda

Galeria do imóvel

Moradia em Banda T3+1 Venda em Madalena,Vila Nova de Gaia
Moradia em Banda T3+1 Venda em Madalena,Vila Nova de Gaia
Moradia em Banda T3+1 Venda em Madalena,Vila Nova de Gaia
Moradia em Banda T3+1 Venda em Madalena,Vila Nova de Gaia
Moradia em Banda T3+1 Venda em Madalena,Vila Nova de Gaia
Moradia em Banda T3+1 Venda em Madalena,Vila Nova de Gaia

Localização do imóvel

Porto, Vila Nova de Gaia, Madalena

Referência do anúncio: 3907-C. Última atualização: 28 outubro 2025.

Relatório de preços praticados nos últimos 8 meses

Porto, Vila Nova de Gaia, Madalena

Simule um Crédito Habitação

Os dados apresentados são meramente indicativos. Condições gerais
Seguir
Partilhar
Projecto Perfeito - Espinho
AMI 8481
220 ...
Chamada para a rede fixa nacional
Mostrar número
Nome
Email
Contacto
Formato inválido
Agende uma visita
Referência do anúncio: 3907-C.
Última atualização: 28 outubro 2025.
Contactar
Veja também
Anúncios na mesma zona
Luxo e espaço no centro da cidade de Paredes
Porto, Penafiel, Irivo
Sob consulta
6
4
Moradia em Banda T3 Venda em Amarante (São Gonçalo), Madalena, Cepelos e Gatão,Amarante
Porto, Amarante, Amarante (São Gonçalo), Madalena, Cepelos e Gatão
335 000 €
3
1
Moradia em Banda T3 Venda em Amarante (São Gonçalo), Madalena, Cepelos e Gatão,Amarante
Porto, Amarante, Amarante (São Gonçalo), Madalena, Cepelos e Gatão
335 000 €
3
1
Moradia projeto aprovado avenida Boavista
Porto, Porto, Cedofeita, Santo Ildefonso, Sé, Miragaia, São Nicolau e Vitória
549 900 €
5
3
Moradia Geminada T3 Venda em Lomba,Amarante
Porto, Amarante, Lomba
323 500 €
3
4
Moradia Geminada T3 Venda em Amarante (São Gonçalo), Madalena, Cepelos e Gatão,Amarante
Porto, Amarante, Amarante (São Gonçalo), Madalena, Cepelos e Gatão
335 000 €
3
1
Moradia Isolada T2+2 Venda em Aves,Santo Tirso
Porto, Santo Tirso, Aves
290 000 €
4
1
Moradia T9 com Jardim em São Félix da Marinha a 500m do Mar
Porto, Vila Nova de Gaia, São Félix da Marinha
895 000 €
9
7
1
Moradia em Banda T3 Venda em Amarante (São Gonçalo), Madalena, Cepelos e Gatão,Amarante
Porto, Amarante, Amarante (São Gonçalo), Madalena, Cepelos e Gatão
335 000 €
3
1
Moradia para Restaurar T3+3 Venda em Campo (São Martinho), São Salvador do Campo e Negrelos (São Mamede),Santo Tirso
Porto, Santo Tirso, Campo (São Martinho), São Salvador do Campo e Negrelos (São Mamede)
130 000 €
6
1
Partilha o imóvel: Moradia em Banda T3+1 Venda em Madalena,Vila Nova de Gaia
Partilha este imóvel nas tuas redes sociais ou envia diretamente para o email dos teus amigos.
Partilhar por email
Adicione uma nota ao imóvel!
Só você é que vê as notas que adiciona. Os imóveis com notas ficam nos favoritos para os poder consultar mais tarde.
Excluíste o anúncio:
Moradia em Banda T3+1 Venda em Madalena,Vila Nova de Gaia