Pesquisar perto de mim
A aguardar a sua pesquisa
Voltar
Moradia com Projeto Aprovado no Centro de Tavira
Moradia com Projeto Aprovado no Centro de Tavira
Moradia com Projeto Aprovado no Centro de Tavira
Moradia com Projeto Aprovado no Centro de Tavira
Ver galeria (17)
Ver galeria (17)
Seguir
Partilhar

Moradia com Projeto Aprovado no Centro de Tavira

Faro, Tavira, Tavira (Santa Maria e Santiago) Ver no mapa
165 000 €
1 Quartos
2 WC's
55m2
Área Útil: 55m2
Área Bruta: 61m2
Certificação Energética: Isento

Descrição do anúncio

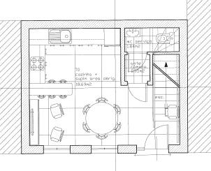
Ruina em uma das zonas mais procuradas de Tavira, com projeto aprovado para Moradia .

O projeto prevê a construção de uma Moradia de dois pisos, no R/C iremos encontrar uma sala espaçosa, uma cozinha elegante e uma casa de banho de serviço.
No primeiro andar, com a opção de acesso com plataforma elevatória, haverá uma casa de banho e um quarto com bastante espaço com entrada para 3 varandas onde poderá desfrutar de um ambiente relaxante e tranquilo.

Esta é a oportunidade perfeita para aqueles que desejam desfrutar dos encantos que esta encantadora cidade tem para oferecer. Com uma localização privilegiada e um projeto moderno e bem pensado, esta casa promete oferecer todo o conforto e comodidade que você procura em um novo lar.

A zona onde esta casa está localizada é conhecida por sua tranquilidade e proximidade com as principais atrações da cidade, como restaurantes, lojas, praias e muito mais. Além disso, o projeto aprovado garante que você terá um espaço bem distribuído, com acabamentos de alta qualidade e todas as comodidades necessárias para uma vida confortável.

Se procura uma oportunidade única de adquirir uma casa ou um projeto de renovação em um dos locais mais procurados e desejados de Tavira. Entre em contato connosco para mais informações e agende uma visita para conhecer este maravilhoso investimento.

Sobre a Cidade de Tavira:

Tavira é uma pequena cidade na costa algarvia de Portugal. Estende-se ao longo do rio Gilão, que chega ao mar através das entradas das lagoas do Parque Natural da Ria Formosa.

A Ilha de Tavira tem uma longa praia arenosa e salinas que atraem flamingos, colhereiros e outras aves pernaltas.

Tavira é cidade de uma história muito marcada pela reconquista cristã sendo que alguns dos seus marcos refletem essa mesma história: o castelo medieval de Tavira que oferece vistas para a cidade, a Ponte Romana que atravessa o rio Gilão, e as suas igrejas que guardam verdadeiros tesouros.

Todas estas características apaixonam aqueles que visitam esta cidade fazendo com que queiram por cá ficar.

Viver em Tavira é nunca mais querer morar noutro lugar.


A Casas do Sotavento é uma empresa familiar, reconhecida no país e no estrangeiro, por clientes, colaboradores, investidores, pela qualidade das nossas ações e dos nossos projeto. A nossa missão é de proporcionar uma experiência fácil e tranquila. A nossa preocupação, tratar toda a gente como gostaríamos de ser tratados.

Galeria do imóvel

Moradia com Projeto Aprovado no Centro de Tavira
Moradia com Projeto Aprovado no Centro de Tavira
Moradia com Projeto Aprovado no Centro de Tavira
Moradia com Projeto Aprovado no Centro de Tavira
Moradia com Projeto Aprovado no Centro de Tavira
Moradia com Projeto Aprovado no Centro de Tavira

Localização do imóvel

Faro, Tavira, Tavira (Santa Maria e Santiago)

Referência do anúncio: CS-MOR-91625. Última atualização: 09 agosto 2024.

Relatório de preços praticados nos últimos 8 meses

Faro, Tavira, Tavira (Santa Maria e Santiago)

Simule um Crédito Habitação

Os dados apresentados são meramente indicativos. Condições gerais
Seguir
Partilhar
Around The Sun - Unip Lda
AMI 10136
Nome
Email
Contacto
Formato inválido
Agende uma visita
Referência do anúncio: CS-MOR-91625.
Última atualização: 09 agosto 2024.
Contactar
Veja também
Anúncios na mesma zona
Moradia t5 em estombar
Faro, Lagoa (Algarve), Estômbar e Parchal
529 000 €
5
2
Casa para Reconstrução em Loulé - Reabilite, Transforme, Valorize
Faro, Faro, Santa Bárbara de Nexe
195 000 €
4
Palacete para Rentabilização
Faro, Portimão, Portimão
650 000 €
8
3
Moradias deluxe t3 com piscina e garagem - patã de cima
Faro, Loulé, Boliqueime
785 000 €
3
3
Encantadora casa tradicional para renovar I 3 quartos I Jardim de 600 m2 I Vista mar I Santa Barbara de Nexe
Faro, Faro, Santa Bárbara de Nexe
370 000 €
3
1
Para venda em Carvoeiro, moradia com piscina privada apenas a 250m da praia
Faro, Lagoa (Algarve), Lagoa e Carvoeiro
595 000 €
3
3
1
Moradia para Restaurar T3 Venda em Tavira (Santa Maria e Santiago),Tavira
Faro, Tavira, Tavira (Santa Maria e Santiago)
140 000 €
3
2
Moradia Moderna com Vista Mar em Santa Bárbara de Nexe
Faro, Faro, Santa Bárbara de Nexe
1 075 000 €
3
3
Moradia T2 Venda em Moncarapacho e Fuseta,Olhão
Faro, Olhão, Moncarapacho e Fuseta
280 000 €
2
1
Moradia V5 - Vista Mar com Piscina e 12.710m² de Privacidade em Loulé
Faro, Loulé, Loulé (São Clemente)
2 495 000 €
5
7
Partilha o imóvel: Moradia com Projeto Aprovado no Centro de Tavira
Partilha este imóvel nas tuas redes sociais ou envia diretamente para o email dos teus amigos.
Partilhar por email
Adicione uma nota ao imóvel!
Só você é que vê as notas que adiciona. Os imóveis com notas ficam nos favoritos para os poder consultar mais tarde.
Excluíste o anúncio:
Moradia com Projeto Aprovado no Centro de Tavira