Pesquisar perto de mim
A aguardar a sua pesquisa
Voltar
Moradia com garagem lateral em Palmeira, Braga
Moradia com garagem lateral em Palmeira, Braga
Moradia com garagem lateral em Palmeira, Braga
Moradia com garagem lateral em Palmeira, Braga
Ver galeria (12)
Ver galeria (12)
Seguir
Partilhar

Moradia com garagem lateral em Palmeira, Braga

Braga, Braga, Palmeira Ver no mapa
575 000 €
3 Quartos
5 WC's
330m2
Área Útil: 330m2
Área Bruta: 332m2
Ano de Construção: 2025
Certificação Energética: A

Descrição do anúncio

Se procura uma moradia nova, de qualidade, temos a opção perfeita para si!

Moradia idealizada para maximizar o conforto que as famílias podem usufruir na utilização dos seus espaços interiores e exteriores.

Localizada numa zona privilegiada pela existência de espaços verdes e luz natural, proporcionam uma vivência agradável, sendo complementada pela privacidade com as moradias contíguas devido à separação física dos espaços de utilização mais importante.
O segundo piso encontra-se completamente individualizado garantindo um descanso imperturbável. O rés-do-chão une-se com as moradias adjacentes apenas pela garagem, salvaguardando a intimidade familiar.

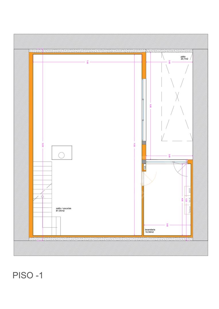
Moradia de 3 pisos composta por:

Piso 0: Composto por hall de entrada, wc de serviço, sala/cozinha em open space, garagem e jardim.

Piso 1: Composto por hall dos quartos, suíte com closet, wc suíte, varanda, suíte, wc suíte, suíte, wc suíte. 

Piso cave: Composto por salão com recuperador de calor, lavandaria e zona de secagem de roupa.

Equipamento:

- Bomba de calor GAMP BCN ou equivalente para aquecimento de águas quentes sanitárias;
- Recuperador de calor ELOS 98 Vitrus; 
- Pavimento radiante elétrico nas instalações sanitárias das suítes;
- Extratores para as instalações sanitárias;
- Vídeo porteiro digital a cores com WI-FI; 
- Tomada Legrand green`up para carregamento de carros elétricos com circuito direto ao quadro elétrico; 
- Rega automática do jardim; 
- Ar condicionado inverter Splits Samsung; 
- Pré-instalação para aspiração central; 
- Pré-instalação para painéis fotovoltaicos;
- Pré-instalação para segurança contra intrusão – alarme e vídeo vigilância.

As imagens apresentadas poderão não corresponder na integra à moradia em questão, no entanto serão muito semelhantes.

Assemelha-se a uma moradia individual e está inserida num contexto de bem-estar, permitindo que a vida social de cada família se desenrole no exterior, proporcionando uma excelente qualidade de vida!

Quer esteja no mercado para comprar, ou vender um imóvel, trabalharemos consigo, de forma personalizada, para que consigamos, juntos, o melhor negócio.
A nossa equipa de consultores imobiliários é experiente, formada e orientada para a obtenção de resultados e serviço ao cliente. 
Sabemos que não basta uma ótima carteira de imóveis para atender às necessidades de quem procura uma casa. Preocupamo-nos em estudar o mercado local para que lhe possamos dar as melhores recomendações. 
Diga-nos o que procura, e nós iremos ajudá-lo/a.    
 

Características Gerais

  • Ar Condicionado
  • Cozinha Equipada
  • Garagem
  • Estacionamento
  • Guarda Roupa
  • Varandas
  • Lareira
  • Em Banda

Galeria do imóvel

Moradia com garagem lateral em Palmeira, Braga
Moradia com garagem lateral em Palmeira, Braga
Moradia com garagem lateral em Palmeira, Braga
Moradia com garagem lateral em Palmeira, Braga
Moradia com garagem lateral em Palmeira, Braga
Moradia com garagem lateral em Palmeira, Braga

Localização do imóvel

Braga, Braga, Palmeira

Referência do anúncio: MP365. Última atualização: 07 outubro 2025.

Relatório de preços praticados nos últimos 8 meses

Braga, Braga, Palmeira

Simule um Crédito Habitação

Os dados apresentados são meramente indicativos. Condições gerais
Seguir
Partilhar
Primeiro Degrau Imobiliária
AMI 20927
910 ...
Chamada para a rede fixa nacional
Mostrar número
Nome
Email
Contacto
Formato inválido
Agende uma visita
Referência do anúncio: MP365.
Última atualização: 07 outubro 2025.
Contactar
Veja também
Anúncios na mesma zona
Moradia em construção - esposende
Braga, Esposende, Esposende, Marinhas e Gandra
375 000 €
3
1
Moradias em construção - esposende
Braga, Esposende, Esposende, Marinhas e Gandra
375 000 €
4
3
1
Moradia Isolada T2 Venda em Caldas de Vizela (São Miguel e São João),Vizela
Braga, Vizela, Caldas de Vizela (São Miguel e São João)
185 000 €
2
1
Moradias em construção - esposende
Braga, Esposende, Esposende, Marinhas e Gandra
375 000 €
4
3
1
Moradia T3 para restaurar com terreno em Seidões, Fafe
Braga, Fafe, Silvares (São Martinho)
151 000 €
3
1
Moradia T5 Venda em Moreira de Cónegos,Guimarães
Braga, Guimarães, Moreira de Cónegos
1 490 000 €
5
5
Moradia em construção - esposende
Braga, Esposende, Esposende, Marinhas e Gandra
375 000 €
3
1
Moradia em construção - esposende
Braga, Esposende, Esposende, Marinhas e Gandra
375 000 €
3
1
Moradias em construção - esposende
Braga, Esposende, Esposende, Marinhas e Gandra
375 000 €
3
3
1
Moradias em construção - esposende
Braga, Esposende, Esposende, Marinhas e Gandra
375 000 €
4
3
1
Partilha o imóvel: Moradia com garagem lateral em Palmeira, Braga
Partilha este imóvel nas tuas redes sociais ou envia diretamente para o email dos teus amigos.
Partilhar por email
Adicione uma nota ao imóvel!
Só você é que vê as notas que adiciona. Os imóveis com notas ficam nos favoritos para os poder consultar mais tarde.
Excluíste o anúncio:
Moradia com garagem lateral em Palmeira, Braga