Pesquisar perto de mim
A aguardar a sua pesquisa
Voltar
Magnifico terreno com vista mar
Magnifico terreno com vista mar
Magnifico terreno com vista mar
Magnifico terreno com vista mar
Ver galeria (18)
Ver galeria (18)
Seguir
Partilhar

Magnifico terreno com vista mar

Ilha da Madeira, Funchal, São Gonçalo Ver no mapa
400 000 €
0 Quartos
0 WC's
Certificação Energética: A
Estado: Em Projecto

Descrição do anúncio

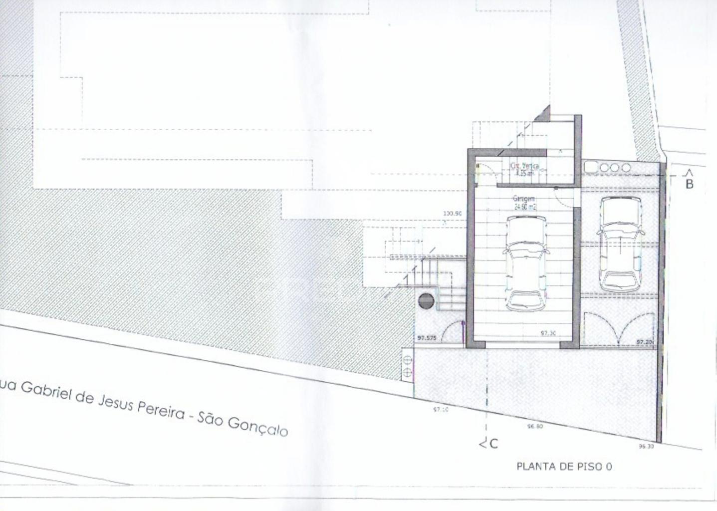
Descubra a oportunidade única de adquirir um terreno com 830 metros quadrados, deslumbrante com vista mar na procurada Zona das Neves, no Funchal. Este terreno é ideal para a construção de uma casa isolada, oferecendo um ambiente tranquilo, cercado pela beleza natural da região.
Com licenciamento já aprovado para construção, você poderá começar o projeto dos seus sonhos sem demora. Além disso, já dispomos de projetos de especialidade elaborados, facilitando ainda mais o processo de construção.
Não perca esta chance de investir na sua futura casa, com a possibilidade de desfrutar de vistas espetaculares e uma localização privilegiada. Entre em contato para mais informações e para agendar uma visita!



Predimed Imobiliária, Mediação Imobiliária, Lda.
Avenida Brasil 43, 12º Andar, 1700-062 Lisboa
Licença AMI nº 22503
Pessoa Coletiva nº 517 239 345
Seguro Responsabilidade Civil: Nº de Apólice RC65379424 Fidelidade

Galeria do imóvel

Magnifico terreno com vista mar
Magnifico terreno com vista mar
Magnifico terreno com vista mar
Magnifico terreno com vista mar
Magnifico terreno com vista mar
Magnifico terreno com vista mar

Localização do imóvel

Ilha da Madeira, Funchal, São Gonçalo

Referência do anúncio: 053469. Última atualização: 11 outubro 2025.

Relatório de preços praticados nos últimos 8 meses

Ilha da Madeira, Funchal, São Gonçalo

Simule um Crédito Habitação

Os dados apresentados são meramente indicativos. Condições gerais
Seguir
Partilhar
Predimed Imobiliaria Mediacao Imobiliaria Lda
AMI 22503
Nome
Email
Contacto
Formato inválido
Agende uma visita
Referência do anúncio: 053469.
Última atualização: 11 outubro 2025.
Contactar
Veja também
Anúncios na mesma zona
✨ terreno premium na rochinha | vista mar ✨
Ilha da Madeira, Machico, Caniçal
290 000 €
Terreno Venda em Estreito de Câmara de Lobos,Câmara de Lobos
Ilha da Madeira, Câmara de Lobos, Estreito de Câmara de Lobos
75 000 €
Terreno Urbano em São Martinho
Ilha da Madeira, Funchal, São Martinho
1 300 000 €
Terreno no Pico das Romeiras em Santo António - Funchal
Ilha da Madeira, Funchal, Santo António
165 000 €
Terreno 7.220 m² plano no santo da serra – ideal para turismo rural, quintas e cavalos
Ilha da Madeira, Machico, Santo António da Serra
210 000 €
Terreno urbano com vista mar, no livramento, funchal
Ilha da Madeira, Funchal, Funchal (Santa Luzia)
125 000 €
Terreno no Pico das Romeiras em Santo António - Funchal
Ilha da Madeira, Funchal, Santo António
154 000 €
Vendo terreno com 7.100m2 na fajã da ovelha
Ilha da Madeira, Calheta (Madeira), Fajã da Ovelha
1 350 000 €
Lote de Terreno Venda em Faial,Santana
Ilha da Madeira, Santana, Faial
61 500 €
Terreno no Pico das Romeiras em Santo António - Funchal
Ilha da Madeira, Funchal, Santo António
148 500 €
Partilha o imóvel: Magnifico terreno com vista mar
Partilha este imóvel nas tuas redes sociais ou envia diretamente para o email dos teus amigos.
Partilhar por email
Adicione uma nota ao imóvel!
Só você é que vê as notas que adiciona. Os imóveis com notas ficam nos favoritos para os poder consultar mais tarde.
Excluíste o anúncio:
Magnifico terreno com vista mar