Pesquisar perto de mim
A aguardar a sua pesquisa
Voltar
Magnífica moradia geminada para renovar I 287,10 m² I terreno 305 m² I Pátio I 4 quartos I Projeto aprovado I Centro histórico de Estoi
Magnífica moradia geminada para renovar I 287,10 m² I terreno 305 m² I Pátio I 4 quartos I Projeto aprovado I Centro histórico de Estoi
Magnífica moradia geminada para renovar I 287,10 m² I terreno 305 m² I Pátio I 4 quartos I Projeto aprovado I Centro histórico de Estoi
Magnífica moradia geminada para renovar I 287,10 m² I terreno 305 m² I Pátio I 4 quartos I Projeto aprovado I Centro histórico de Estoi
Ver galeria (72)
Ver galeria (72)
Seguir
Partilhar

Magnífica moradia geminada para renovar I 287,10 m² I terreno 305 m² I Pátio I 4 quartos I Projeto aprovado I Centro histórico de Estoi

Faro, Olhão, Pechão Ver no mapa
590 000 €
4 Quartos
2 WC's
287,1m2
Área Útil: 287,1m2
Certificação Energética: E

Descrição do anúncio

Localizada no coração histórico de Estoi, esta moradia é um verdadeiro manifesto da arquitetura tradicional portuguesa, testemunhando com elegância o património local.

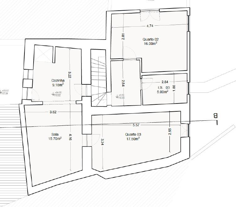
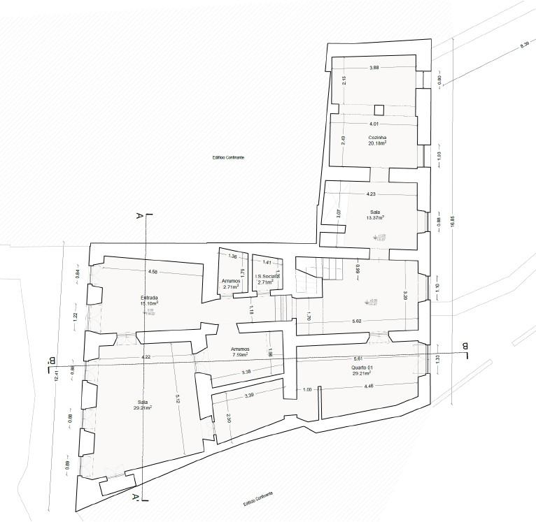
Com uma superfície generosa de 287,10 m² distribuída por dois níveis num terreno de 305 m², esta propriedade oferece volumes raros. É composta atualmente por quatro quartos, duas casas de banho, um WC de serviço, um hall de entrada acolhedor, uma vasta sala de estar, bem como uma cozinha prolongada por uma zona de refeições que se abre para um amplo pátio traseiro de 93 m².

A disposição é otimizada: uma suite ocupa o piso térreo. O piso superior alberga os outros três quartos, dois dos quais se prolongam para terraços privativos, oferecendo vistas encantadoras sobre a vila e os seus arredores.

Embora a casa tenha sido totalmente renovada há alguns anos, convida agora a uma atualização personalizada. É vendida com um projeto de licenciamento aprovado pela Câmara Municipal de Faro para remodelação interior, ampliação de um quarto e construção de uma piscina, cujo potencial é perfeitamente ilustrado pelo visual 3D anexo ao anúncio.

A propriedade preserva os atributos nobres do artesanato regional, conferindo uma alma única a cada divisão: autênticos pavimentos em tijoleira de Santa Catarina, tetos altos em madeira, abóbadas com carácter ou tijolo aparente, carpintarias interiores originais, impostas trabalhadas, lareira tradicional pronta a receber um recuperador de calor, e uma fachada magnificamente ritmada pelas suas molduras de pedra esculpidas.

Água da rede e saneamento ligados.

Desfruta de uma localização privilegiada numa praceta arborizada e tranquila da vila de Estoi, a poucos passos da prestigiada Pousada do Palácio.

Estoi é uma vila autêntica, um verdadeiro conservatório de história, onde as ruas calcetadas e as fachadas tradicionais compõem um cenário de vida sereno. Uma atmosfera acolhedora que convida à doçura de viver, mantendo-se a apenas 15 minutos do Aeroporto Internacional de Faro e das praias.

A arquitetura desta casa, os seus volumes generosos e a sua localização fazem dela uma oportunidade rara para quem deseja criar uma residência familiar com carácter ou um refúgio de férias único.

Contacte-nos para qualquer pedido de visita.

Galeria do imóvel

Magnífica moradia geminada para renovar I 287,10 m² I terreno 305 m² I Pátio I 4 quartos I Projeto aprovado I Centro histórico de Estoi
Magnífica moradia geminada para renovar I 287,10 m² I terreno 305 m² I Pátio I 4 quartos I Projeto aprovado I Centro histórico de Estoi
Magnífica moradia geminada para renovar I 287,10 m² I terreno 305 m² I Pátio I 4 quartos I Projeto aprovado I Centro histórico de Estoi
Magnífica moradia geminada para renovar I 287,10 m² I terreno 305 m² I Pátio I 4 quartos I Projeto aprovado I Centro histórico de Estoi
Magnífica moradia geminada para renovar I 287,10 m² I terreno 305 m² I Pátio I 4 quartos I Projeto aprovado I Centro histórico de Estoi
Magnífica moradia geminada para renovar I 287,10 m² I terreno 305 m² I Pátio I 4 quartos I Projeto aprovado I Centro histórico de Estoi

Localização do imóvel

Faro, Olhão, Pechão

Referência do anúncio: PALC_180. Última atualização: 23 abril 2026.

Relatório de preços praticados nos últimos 8 meses

Faro, Olhão, Pechão

Simule um Crédito Habitação

Os dados apresentados são meramente indicativos. Condições gerais
Seguir
Partilhar
Portugal A La Carte Lda
AMI 15466
Nome
Email
Contacto
Formato inválido
Agende uma visita
Referência do anúncio: PALC_180.
Última atualização: 23 abril 2026.
Contactar
Veja também
Anúncios na mesma zona
Moradia Geminada T1 Venda em Quelfes,Olhão
Faro, Olhão, Quelfes
250 000 €
1
1
Casinha dos Avós a 10 minutos da Meia Praia, M. Grande, Portimão
Faro, Portimão, Portimão
320 000 €
3
1
Moradia t4 com vista mar em alporchinhos , porches algarve
Faro, Faro, Conceição e Estoi
1 300 000 €
4
5
1
Moradia T4 Venda em São Brás de Alportel,São Brás de Alportel
Faro, São Brás de Alportel, São Brás de Alportel
975 000 €
4
4
Acolhedora moradia no coração de vilamoura
Faro, Loulé, Quarteira
750 000 €
4
4
1
Elegante moradia v2+2 em Vilamoura - piscina, jardim & ambiente prestigiado
Faro, Loulé, Quarteira
680 000 €
2
5
Moradia Isolada T4 Venda em Vila Nova de Cacela,Vila Real de Santo António
Faro, Vila Real de Santo António, Vila Nova de Cacela
950 000 €
4
3
Vila T4 em Silves
Faro, Silves, Silves
417 000 €
4
3
Moradia T3 em Resort de Luxo no Algarve!!
Faro, Castro Marim, Castro Marim
465 000 €
3
3
Moradia Rústica Venda em Santa Bárbara de Nexe,Faro
Faro, Faro, Santa Bárbara de Nexe
260 000 €
1
Partilha o imóvel: Magnífica moradia geminada para renovar I 287,10 m² I terreno 305 m² I Pátio I 4 quartos I Projeto aprovado I Centro histórico de Estoi
Partilha este imóvel nas tuas redes sociais ou envia diretamente para o email dos teus amigos.
Partilhar por email
Adicione uma nota ao imóvel!
Só você é que vê as notas que adiciona. Os imóveis com notas ficam nos favoritos para os poder consultar mais tarde.
Excluíste o anúncio:
Magnífica moradia geminada para renovar I 287,10 m² I terreno 305 m² I Pátio I 4 quartos I Projeto aprovado I Centro histórico de Estoi